
被消隐的记忆
北京的胡同,不仅仅是一种特有的居住方式,更是很多人儿时曾经的记忆,随着现代化与城市化的进程,许多人搬离了胡同,但是胡同生活的那一份烟火气,却永远的留存在了记忆里。
岁月给人也给建筑留下了时光的印记,老去的房子、腐烂的柱子、杂草丛生的院子……胡同的生活模式,在城市发展进程中不断的“被动的”消失着。这种被动导致的是人们记忆的断层,仿佛儿时的回忆还在昨天,但是今天却已经生活在现代化的建筑中,人与人的隔阂、人与建筑的隔阂也越来越大。如何把这种被动产生的消隐重现、让历史与美好的记忆重新回归并且让更新后的建筑与自然环境结合,产生一种历史与当下的对话,是我们在这座胡同小宅改造中一直探讨的问题。
改造并不是对老建筑的“维修”与“复刻”,而是要将一种新的生活方式与旧有的历史叠加并且产生新的对比与融合。

△ 施工过程
整个改造过程仅仅只有14天的施工时间,两周的时间浓缩了很多人的辛苦付出,设计也不仅仅是纸上谈兵,落地施工,往往比方案本身更具有挑战性。
重现与再消隐
这座小院是业主儿时与爷爷奶奶一起生活居住的房子,由于多年的在外漂泊,房子已经破败不堪,小时候的种种回忆也随之而去,如今想要搬回到胡同中生活,但是房子的现状已经不适合居住。此次改造的目的,就是要给女业主营造一个适应现代生活方式的居住空间,并且唤醒曾经“被消失”的那些胡同生活印记。


△ 入口与镜面院子

△ 轴测图
镜与万花筒
在院子的地面与墙面上,采用了镜面玻璃,材料特有的反射性,可以让周围的胡同、树木、天空都映射到院子的地面中,给空间带来了更多的可能性,也让这种虚实的互动性更加凸显,人在景中、人在镜中,在层层叠叠的反射与通透的对景之中,给人一种如梦如幻的空间体验感。



△ 院子中的镜面反射效果
镜面反射的自然环境每时每刻都在变化着,与镜面组合形成了一种类似于“万花筒”的效果。万花筒的英语名称KALEIDOSCOPE,集合了希腊语的KALOS(美丽),EIDOS(形状)和SCOPE(观看)等词汇,其实也是概括了万花筒的几大特点。
随着反射与周围环境的不断变化,镜面的小院展现出了一种瞬息万变之美,每一个瞬间都是独一无二的,就像时间一样,不能被记录,只能被感受。院子中这种“有形”反射出的“无形”的状态,也让观者与环境、环境与建筑、建筑与人之间都产生一种对视的关系,这种关系消隐了空间的边界,也消隐了人与空间之间的距离感。
反射
院子仅有12平米左右,呈狭长状,地面与墙面的玻璃镜面让小院的面积在视觉上得到扩大。当业主踏入大门的一瞬间,就会被镜面反射的透视效果包围,增加了空间的通透感,给人以双倍的景观体验。


△ 反射细节

△ 镜面折射分析
隐院
镜面的设计赋予建筑与周围环境一个有趣的关系:镜面地面映射出周围环境,建筑被树木、天空所包围,仿佛消失在环境之中。业主可以在房间内一窥周围环境的变化,地面化作一幅巨大的画卷,映射出自然界的风吹草动、风云变幻。同时镜面也模糊了内外空间的界限、模糊了虚实之间的界限。
在镜面上流动着的景象让原本静止的院子动了起来,以无形胜有形的诗意沁润着人们的心灵。人们的视线仿佛迷失在遥不可及的景观中,而反射在镜面中的景色又近在咫尺。

△ 院子鸟瞰
通透空间
胡同住宅的改造过程其实就是现代生活方式与传统空间的一种融合。在改造中,将有年久失修的木结构进行了结构加固,将外立面改为玻璃幕墙的形式。通透的幕墙给室内空间增加了采光,让视线在院子两侧可以互相穿透,营造出对外内向,对内内向型的庭院空间。



△ 院子两侧视线通透

△ 主卧与透明的卫生间
业主卧室的外侧布置了一个专属的卫生间,满足业主独自使用卫生间的需求,通透的玻璃幕墙,让光线可以穿过卫生间达到卧室内部,改善了采光环境的同时,也将院子内的景观引入室内,丰富了空间的体验感。


△ 卧室
卧室区域则采用简约的设计语言,运用黑白两种色彩,让空间显得简约冷静,与外侧通透灵动的空间体验感形成对比,给卧室营造一种更加静谧的感觉。

△ 客厅与客卫

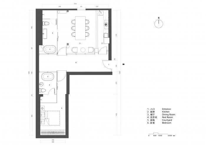
△ 平面图
项目信息项目名称:宝钞胡同隐院设计公司:北京大观建筑设计设计团队:申江海,刘羽,曾怡君,李绍懿,余小雨,高瑜泽
设计顾问:刘天萌
项目类型:改造、建筑、室内设计
建筑面积: 57.5㎡设计时间:2020年6月
建造时间: 2020年6月15日—2020年6月29日摄影师:金伟琦
合作方:湖南卫视
撰文:刘羽

BIM建筑网





评论前必须登录!
注册