01 项目概况
项目位于河北沧州任丘市渤海路与燕山道交汇处。任丘市位于河北省中部,地处京津冀经济圈,属环京津、环渤海经济开放带。本项目建筑体总共二十四层,一到五层作为为商业空间功能在使用,六至十八层作为酒店、十八至二十四层作为办公及集团总部功能在使用。酒店整体入住和运营良好,但是商业空间业绩不太理想。
初次进行交流时,业主对于这样一个商业空间怎样去改造及使用还是有点模糊。但是也是下定决心想进行一次整体的调整与改变,希望能把整个空间重新激活与利用起来。以一个全新的形象面对市场。经过几次沟通,我们对现有的业态重新进行了梳理与分析。把业绩不太理想的楼层与业态全部拿掉,重新植入和规划新的业态。而原本经营良好的餐饮等业态则建议进行保留和稍加改造。希望在有翻天覆地改变的同时,尽量减少投入和控制造价。

△ 项目区位

△ 项目外观
02 商业业态与动线的重新整合
首次来到场地,虽然整个商业空间的环境有点杂乱。但是对整个建筑内部的空间条件还是印象深刻,尤其是内部挑高的采光中庭空间给予了我很多想象空间。于是我们决定围绕着几个中庭作为空间主要发展策略来进行利用及重点设计。

△ 改造前空间状况
首先从业态分布上我们希望能在两个中庭的空间内植入书店空间,通过不同层次阶梯/楼梯的形式将一楼与二楼串联、两个中庭与中庭形成一条完整的垂直空间游走与参观动线。在有限的空间场地里制造丰富与具有趣味性的空间视觉与体验感。与此同时我们也将整个商场空间的动线重新进行了梳理,让空间的到达性及目的性更强。2F原本为儿童空间,我们在保留原来儿童娱乐的基础上,进行整体的梳理及升级。3F/4F保留原本经营良好的餐饮空间。5F也保留原有的宴会厅功能。但是4F-5F由于没有直达楼梯,原本需要经过消防楼梯空间。在宴会人流聚集时容易造成堵塞,业主希望可以有直达的垂直动线。我们经过研究决定在中庭上空增设空中楼梯,在解决空间动线的同时,也让空间更具层次与雕塑感。

△ 空间轴测图

△ 空间剖面图 ©y.ad studio

△ 空间剖面图 ©y.ad studio
03 书店作为精神及文化空间的导入
对于当初在中庭中植入一个书店作为整个商业空间的主要核心空间,在提议之初也有不同的声音。大家认为书店本身很难盈利,花巨资投入后,其中存在一定的运营风险。但是团队认为书店的存在不应该仅仅是从盈利角度来看,应当让他具备一定的精神和文化属性。甚至让他可以成为一个城市或社区的延伸,随着时间成为城市或是社区人们的记忆空间…
从商业角度上来看我们认为也可以为商场空间的新业态植入创造条件和为其它业态导流,增强商业空间的整体氛围、关联性和文化气息。因为本身是自持物业,其意义不仅仅是从单个的商业业态是否能盈利去衡量,而应当从整体商业布局上来平衡。不过我们也认同业主提出的应当在空间比例、面积和资金上进行合理的分配和控制。
经过几轮的讨论业主决定拿出其中两个采光中庭的空间作为书店的使用空间。于是我们将整个一楼空间围绕着书店作为核心来延伸酒店大堂吧、咖啡厅、儿童阅读、多功能展厅、面对年轻消费群体的新中餐餐饮空间等相关功能业态。
原本中庭与走道处于一种开放状态,因为书店在中庭的植入,也因为书店需要安静的氛围。我们用一层朦胧的聚碳酸酯板幕墙表皮将空间独立出来,避免空间在使用时的相互干扰。为了避免由于隔绝而造成的闭塞感与单调性,在表皮的形式与分割上进行了虚实转换与变化。中庭上空用一层穿孔铝板吊顶来引导与过滤阳光的直接射入,希望可以使的空间的光影更加丰富与氛围。

△ 设计分析图 ©y.ad studio

△ 空间剖面图 ©y.ad studio

△ 空间剖面图 ©y.ad studio

△ 空间剖面图 ©y.ad studio

△ 改造后的书店入口 ©y.ad studio

△ 改造后的书店入口门厅 ©y.ad studio

△ 改造后的大堂吧空间 ©y.ad studio

△ 改造后书店空间 ©Peter Dixie(英)/洛唐建筑摄影

△ 光影下的书店中庭空间 ©y.ad studio

△ 书店阅读阶梯 ©Peter Dixie(英)/洛唐建筑摄影

△ 书店阅读阶梯 ©Peter Dixie(英)/洛唐建筑摄

△ 书店阅读阶梯 ©Peter Dixie(英)/洛唐建筑摄影

△ 仰望中庭 ©Peter Dixie(英)/洛唐建筑摄影

△ 仰望中庭 ©y.ad studio

△ 中庭与玻璃廊道 ©Peter Dixie(英)/洛唐建筑摄影

△ 玻璃廊道 ©y.ad studio

△ 阅读阶梯中的阅读盒子 ©Peter Dixie(英)/洛唐建筑摄影

△ 阅读阶梯中的阅读盒子 ©Peter Dixie(英)/洛唐建筑摄影

△ 阶梯层叠的书店区 ©Peter Dixie(英)/洛唐建筑摄影

△ 文创产品销售区 ©y.ad studio

△ 书柜峡缝 ©Peter Dixie(英)/洛唐建筑摄影


△ 书塔下的平台 ©Peter Dixie(英)/洛唐建筑摄影

△ 仰望书塔 ©Peter Dixie(英)/洛唐建筑摄影

△ 书塔下的阶梯 ©Peter Dixie(英)/洛唐建筑摄影

△ 书店阅读区 ©Peter Dixie(英)/洛唐建筑摄影

△ 书店阅读区 ©Peter Dixie(英)/洛唐建筑摄影

△ 具有发布会/签售活动/画展等多重功能的活动空间 ©y.ad studio

△ 多功能活动厅 ©y.ad studio

△ 多功能活动厅上空 ©y.ad studio



△ 书柜框景 ©y.ad studio
04 改造成果
从设计到施工总共历时五个月左右的时间,整个商场空间重新开放使用。书店作为整个商场核心,受到了城市与社区居民的喜爱。功能空间的设置也为举办各式签售、活动、画展等,创造了运营条件。整体空间的重新利用与激活,为新引入的餐饮、咖啡等功能业态空间带来了新的消费人群和更年轻化的消费群体。

△ 运营后的阅读阶梯空间 ©y.ad studio

△ 运营后的儿童图书空间 ©y.ad studio

△ 运营后的现况 ©y.ad studio
05 设计图纸

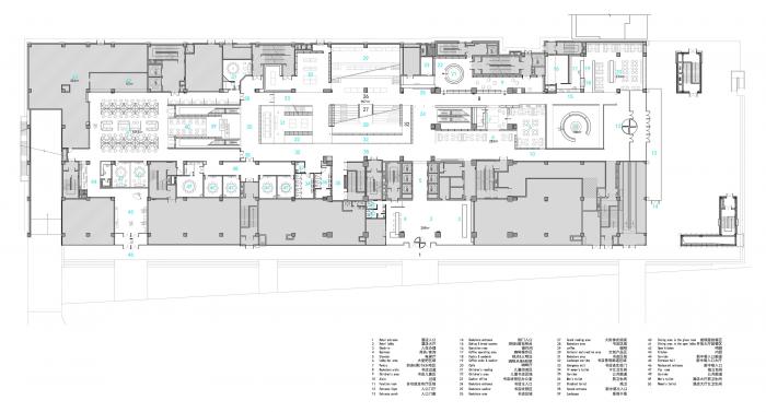
△ 1F平面图 ©y.ad studio

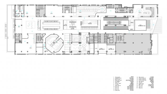
△ 2F平面图 ©y.ad studio

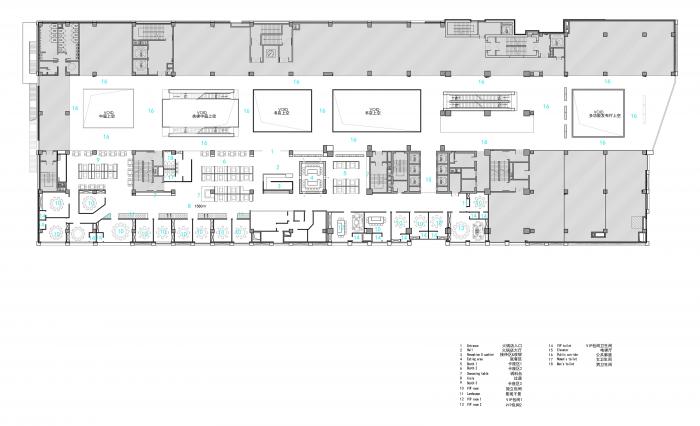
△ 3F平面图 ©y.ad studio

△ 4F平面图 ©y.ad studio





△ 剖立面图 ©y.ad studio
项目信息
项目地址:中国河北省任丘市渤海路与燕山道交汇处
建设单位:任丘源平美璟商业广场有限公司
项目面积:7410平方米
空间设计:y.ad studio | 上海严旸建筑设计工作室(www.sh-yad.com)
项目团队:严旸、贺茂峰、严昱、田忠林、郑闯
钢结构设计:霍振忠
主要材质:水泥砖(瑞奥格斯)、橡木饰面板、聚碳酸酯板(捷耐板业)、乳胶漆(立邦涂料)
设计时间:2018.09-2018.10
建造时间:2018.12-2019.03
摄影:Peter Dixie(英)/洛唐建筑摄影、y.ad studio

BIM建筑网





评论前必须登录!
注册