“若一建筑物比喻成盒子,开启它的门窗,更将绿意和天光带入地面之下的盒内,让它呼吸,是我们设计此空间的浪漫。”
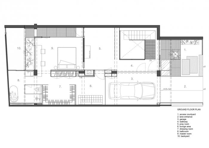
本案位于士东路近四十年的老屋,是左右邻房、前后采光的典型公寓。屋主有意将闲置的地下室,透过设计打造一家四口新居空间。原先空间的机能有其须被解决的问题,例如原地下室的气窗,位于一楼基地与街道之间的65公分高低差,却因前院停车使用,后院作为晒衣空间,将地下室的气窗给遮蔽,未能发挥作用,也因此以往阴暗的楼下只能被当作储藏空间使用。




若未来地下室被纳入日常生活使用,首先须克服基础的环境条件,而决定牺牲一楼靠近前院及后院处的楼板面积,打通成天井,如此扩大地下室采光面,同时增加通风量,能大幅改善环境不良问题,此时地下室的旧有概念已经消失,整体空间上转变为楼上与楼下的关系。





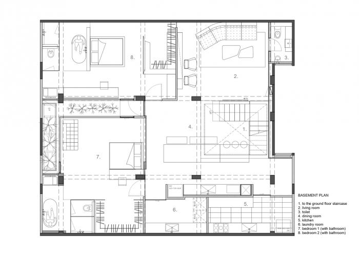
经过改造后,全案近街道的前半区依序为停车空间、往楼下的阶梯与天井、神明厅,楼下的前半区则是家人主要的交谊空间,延伸至客厅、餐厅及厨房。如此屋主与家人相处的时光,能轻易从楼下欣赏到前院的枫树及阳光。





而后半区则属于私人空间,分别是一楼主卧及楼下的男、女孩房,而除了前院以外,私人空间也要让人享受绿意。因此将易照顾的山苦楝(旺旺树)种植于楼下的后区,透过一楼后区地面的开口,树梢将延伸到主卧书桌桌面的高度,而楼下的肾蕨、龟背竹、曼绿绒也能通过一楼L型天井衍伸到中央,作为男、女孩房天然的屏障。白天植物提供新鲜芬多精,夜晚时透过打光,层层叶片的光影变成空间视觉的主角。







室内空间的重置,使居住感受增添了阳光与空气,人、植物、与房子便成了共生共荣的关系。随着四季变化的绿意,体会潜藏生活中的旨趣。




△ 一层平面图

△ 地下一层平面图

△ 原状

△ 移除

△ 阳光分析

△ 通风分析

△ 绿植分析
项目信息
项目类型:住宅室内设计
项目地点:台北,中国台湾
室内设计:均汉设计
面积:332m²
项目年份:2020
摄影师:Hey! Cheese
厂家:树禧
主创建筑师:曹均达, Kuan-Huan Liu
合作设计师:Siao-Yu Sung
委托方:Mr. Hsu (and his family)

BIM建筑网





评论前必须登录!
注册