
©Fancy Images
东北从不缺文化,需要的只是复兴。
建筑从不曾老去,要做的只是再生。
设计背景
在90年代之前,东北是全国城市人口比例最高的地方,这里更早地拥有了真正的城市文化。
工厂不仅构建了东北人的生活,还构建了东北人的文化。老工厂厂房改造项目的设计要从时代大背景谈起,要从产业的迭代革命谈起,红梅文创园的诞生要从城市谈起。铁西区因位于长大铁路西侧而得名,东西向与南北向的铁路彼此交错,四角闭合成的不规则方形就是沈阳铁西区。



△ 老红梅

△ 老铁西
这里是中国的工业区,作为共和国长子沈阳的代表性区域,这里曾被誉为“共和国装备部”。红梅味精厂是铁西众多工厂之一,历史可追溯到1939年经历历代的更迭,建筑的风格和表情非常丰富。


△ 工厂顺序
设计策略
场地的4栋建筑尺度不一,破损程度不同,呈现出多样有趣的空间多样性。建筑之间的序列完整的保留了工厂原有的生产流线,原料从铁轨运进厂,站台卸货到原料库,再取样到研究所化验,到发酵厂房发酵,再到提纯车间提纯。

△ #12 改造过程中

△ #1 改造过程中
设计从整理场地关系和建筑关系开始,将新的文化功能植入旧有建筑,将破损的建筑修复加固洗漱干净,焕然一新面向大众开放。

1号楼原料库的“六折山墙”(此词需斟酌)代表着当年大量储存原料的空间能力,代表着生产力。原料的储存代表了产量能力,象征着能量,位于整个厂区的东南角,紧邻街道。Livehouse级的大型演出场所植入于1号楼,吸引文化新能量,聚拢人流开启一场丰富多彩的文化之旅。




△ #1改造后©Fancy Images





△ #1改造后©LOTAN Architectural Photography – Peter dicix

△ #1改造后©Fancy Images
2号楼是四栋建筑中体量最小的,却是生产中最重要环节发生的地方,在这里发生的试验数据输出给各个生产车间,指导生产。同时,2号楼东立面面对园区主入口,西立面和16号楼一墙之隔,南立面面向园区绿地广场,北立面面向园区主干道。这栋楼的东,南,北,三个立面都起到不同的衔接和对话作用。南立面由于严重破损,设计在恢复原立面尺度的同时采用扩大入口,向城市和绿地广场充分展示建筑的开放性和包容性。

△ 改造前

△ 建造过程
同时,设计保留了本建筑的输出功能,定位为文创品商店。采用竖向u玻材料,再现原有烟囱的高度,白天的半透明乳白色和晚上通过照明产生的效果,成为进入园区后的标志发信塔。





△ #2改造后©Fancy Images
12号楼与其他几栋比起来在园区内并不显眼,但是它的内部空间丰富多彩,层高变化格外有趣。甲方希望在这里做一个融合办公与展示等功能的创意书店-红梅书店。读书咖啡,开放式办公,小型展示和发布的多用空间,分别从一层随层高的变化逐层布置,动线也是从动到静。

△ 建造过程
北立面面向园区主干道和体育广场,将书架意向的立面设计融入一层的立面设计,向经过的人群提示这座楼的功能,吸引四周的住民和更多的人流。

△ #12功能分析

△ #12改造后©Fancy Images

△ #12改造后©LOTAN Architectural Photography – Peter dicix
16号楼是故事最多的一栋楼,也是体量适中的一栋,是整个园区的中心所在。一个回游式美术馆是16号归宿的最美所在。原有厂房为放置大型设备在楼板上开了很多大洞,改造选择性的将原有洞的形态保留,用玻璃楼板代替。16号楼三联拱部分体现了当时工厂厂房的建造工艺,是结构美和空间美结合的经典,也是改造后美术馆的大型展厅所在。

△ 空间分析
新设2楼到3楼的坡道透过面向园区主要道路的立面玻璃和园区内的其他建筑及活动进行对话。三联拱部分保留了两个原有的发酵罐设备,永久的纪念着在这个空间中曾经如火如荼的大生产时代。

△ 建造过程








△ #16改造后©Fancy Images
文创园作为文化创意产业的聚集地是城市更新的一部分。时代发展,世纪更替,产业不断进步革命。近30年来随着新的生产方式和生产力的出现,旧的生产方式下建造的厂房及附属空间也需要不断的更新,需要适应新的生产关系下所需要的功能。


技术图纸

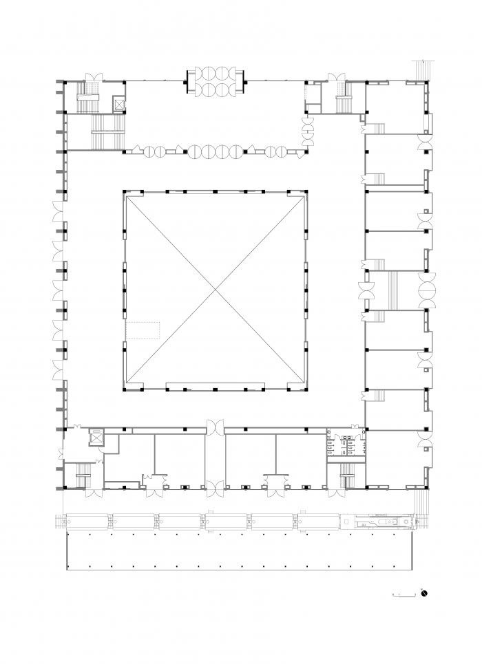
△ 总平面图

△ #1平面图

△ #1东立面图

△ #1北立面图

△ #1剖面图

△ #2平面图

△ #2立面图

△ #2节点详图

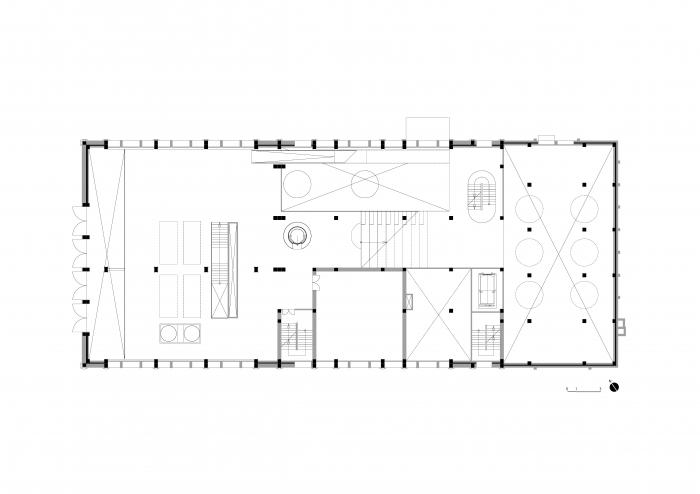
△ #12平面图

△ #12立面图

△ #12剖面图

△ #16平面图

△ #16北立面图

△ #16剖面图
项目信息
项目名称:沈阳红梅文创园
项目类型:旧工厂改造
项目地点:中国辽宁省沈阳市铁西区卫工北街44号
建筑设计:AAarchitects + IIA Atelier
事务所网站:http://www.itisarch.com/
电邮联系方式:[email protected]
业主联系方式:[email protected]
主创建筑师:Hiroshi Aoki, Yoshiko Sato
设计团队:
(AAarchitects) Hiroshi Aoki, Toru Uno, Ko Oono, Sayantan Chakraborty, Ewa Scroczynska;
(IIA Atelier)Yoshiko.sato, Naoki Sato, Yue Chen, Xingpeng Wang,Xu Wujian
设计时间:2018年12月- 2019年9月
设计周期:10个月
项目完成年份:2020年
建筑面积:14489.71平方米(#1:8031.63、#2:568.84、#12: 1780.8、#16:4108.44)
摄影师:上海洛唐(建筑)摄影有限公司,繁玺视觉
业主单位:沈阳三体投资有限公司
结构设计顾问:袁鑫
业主设计团队 :孙明君 李苑婷 李岳霖 王成奇 李星谊 杨思仪 付童 孙伟
施工图设计(建筑、结构、设备、室内、景观):沈阳新大陆建筑设计有限公司
室内方案设计(#1、#16):广州杜文彪设计
室内方案设计(#2):东京如是建筑设计事务所
室内方案设计(#12):红梅书坊
景观设计:德国拉茨与合伙人景观规划事务所 & 沈阳绿野建筑景观环境设计有限公司
照明设计:瑞国际照明设计
幕墙设计:上海嘉春装饰设计工程有限公司 & 晶瓷玻璃科技(上海)有限公司
施工单位:沈阳建业建筑工程有限公司

BIM建筑网





评论前必须登录!
注册