
有别于租售类办公建筑,
总部办公属于一种定制型设计,
建筑师需要直接倾听使用者需求,
了解企业的品牌审美定位,
并将其物化为建筑空间语言。
这类项目既真实可感、又逻辑清晰,
在推理与解决问题之外有发挥趣致的空间。
共振的磁场
不仅仅是办公楼
对企业而言,总部建筑能创造出一种企业文化与场所之间的共振磁场,成为工作者的“第二家园”,帮助塑造出独属于本企业的“归属感”与“凝聚力”。对城市而言,基于当下时代巨头企业涌现并纷纷建造超大体量企业总部的现实,总部建筑如能在保证自身运作的同时反哺外部城市生活,则有成为新一类“城市综合体”的潜力。

△总部办公与租赁办公的区分(goa × CTBUH 总部研讨活动)
goa大象设计团队于2012年始,在长达7年的时间内为亚厦集团“定制”落成了一座总部办公楼。亚厦集团是一家国内建筑装饰行业的知名企业,其业务涉及建筑外墙、室内装饰的设计与施工。如果要将这家企业进行画像,稳固而明确的审美倾向与专业而执着的工程技术追求是首要的特征。
在创作过程中,亚厦的企业文化作为一个核心的因子,深切影响了项目从概念到细部的完整历程;在这个强大的前提之下,建筑师对办公场所和城市生活的关照以适宜的方式植入其中。最终的作品可以说是这两方因素共振的结果。

叠盒子的游戏
简单秩序下的丰富性
基地距离杭州旧城中心约10公里,位于一片极具潜力的待开发区域。形态为长宽比近似1:2的矩形平坦用地,总计约35400㎡。将来,这里是一个全新的会展区域,但在项目设计之初的2012年,地块周边均无建设,是一片典型的新城用地。

△项目区位图(杭州主城区 西湖 五云山 12.2公里 钱塘江)
经过一段时间的设计方向探索,在明白企业主的根本诉求在于“不追求办公建筑本身形式的出位,更倾向于以平实语言塑造优质、具有稳定感的空间氛围”后,建筑师所面临的题目逐渐清晰。平实、对称、稳定,似乎指向一种乏味的结果,如何在简单、稳定的平面之下创造空间趣味性?

△体量研究(80m塔楼 突兀于环境、50m塔楼 协调于环境)
建筑师首先对照基地上的山脉视线关系,将体量被确定为4幢12层50M高的塔楼。这一体量框架,无论对内、对外的空间关系都十分平和。每一办公塔楼的平面近乎于完整的矩形,体量在基地的短边方向对称,长边方向则按照每栋塔楼的使用容量需求切成不等的两段。

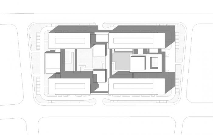
△总平面图
简洁的结构蕴藏了极大的可能性——当元素设定成极为简单的方盒子,空间整体的丰富性便可依赖盒子之间的逻辑关系及空间结构的层级进行多样化的表达。盒子的六个界面的定义带来不同的空间属性;盒子间界面的定义又使它们之间的关系多种多样。如此,貌似一目了然的设计被演化为一个叠盒子的游戏。这些盒子最终演化为塔楼、地面庭院及下沉庭院、入口雨棚、过街天桥等,构成明快而丰富的空间序列。设计初始的命题随之迎刃而解。

△概念发展

△概念剖面



△叠盒子:线、面、体
半开放的花园
平衡城市性与私密性
在设计之初,建筑师基于与企业主的对谈规划出丰富的功能计划书,设想园区成为一个“具有自身强领域感,却向城市打开的空间”。建筑师希望总部在为自己的员工提供活动场所的同时也可容纳部分外来人群,以此令位于园区边界的底层商业保持活力,帮助建筑与外部城市相融的同时促进该区域新城的发展。

△最初的功能规划

△建筑师设想总部建筑具有一定的开放性
然而,随着设计的深入,这一设想与业主对于管理可控性的强烈诉求产生了一定矛盾。经过平衡,“可视而不可达”成为一个折衷做法,建筑师试图通过加强人在视线上的感知来达成一种 “联结感”。

△“可视而不可达”
原本开放、可穿行的底层庭院落地为一个“半开放”的花园。切分裙房体量的若干通道设置景观水系或下沉空间虽然限定了行为上的可达性,却保持了视线上的通畅。在边界上设置有一些具有顶棚的灰空间,城市中行走的人可以透过玻璃一窥总部内部的风貌。

△办公门厅采用超白玻,形成视线通廊

△园区边界的灰空间,可由外部向内窥视
平坦的表皮
基本属性叠加出细腻质感
立面做法延续了“简单而丰富”的概念,完全“平坦”却具有高工艺的立面契合了企业形象的诉求。建筑表皮的基本属性通常被简单理解为透明-半透明-不透明三种设定;然而,这三种基本属性叠加材料、颜色、质感等因素,却能变化出无穷的表现形式。
主楼部分幕墙基于3.9m的层高,被划分成1.3m高的单元,以横向突出的线条表达,竖向则尽可能的隐去,仅仅用玻璃表面25mm宽的细金属条分割。裙房部分的表皮根据空间需求采用了全透明超白玻、乳白或灰色印刷玻璃、灰色或香槟色金属格栅、灰色花岗石幕墙和各种不锈钢表面等做法。所有材料都以极其微小的线状构造相互拼接,以期保持形体简洁的同时传达表皮的细腻质感。



△平坦的表皮
玻璃幕墙的开窗通风问题一直是困扰建筑师的难题之一。一方面,自然通风有着节能与环保的意义,符合中国传统人居观念所对应的心理需求;另一方面,布置不善的开启窗扇会给幕墙外立面造成一定影响,对于立意极简的建筑而言尤其是不小的挑战。出于人体工程学视角,建筑师将开启扇布置于距室内地坪约60cm处,使人能在坐着办公时感受“扑面而来”的自然风。同时,建筑师研究了多种隐藏开启扇的方式,考虑以穿孔铝板遮挡开启扇,并于实体上做了1:1的样板。但在最终落实阶段,业主仍然选择了较为传统的开启方式。

△幕墙立面开启扇及细部做法(铝合金横线条、开启窗)

△门厅玻璃肋使用极小勾边(LOW-E钢化中空玻璃+衬板、夹胶钢化玻璃、铝合金格栅、超白钢化夹胶玻璃肋板、19mm钢化玻璃面板、拉丝抗指纹不锈钢饰面门框、12mm钢化玻璃地弹门)
得益于亚厦集团在外墙装饰领域的专业性与高水准,诸多高技的工艺操作在该项目中落地,例如高11m宽度仅为0.4m的印刷玻璃面、高38m的拉索幕墙等。另一方面,一些需要弱化的构造尺寸,包括小单元式幕墙的勾边、玻璃肋幕墙的拼缝、泛光照明的灯具等,均控制在极有限的尺寸内。

△办公门厅内部


△室内外细部的对线情况
“一体化”设计的思维贯穿项目始终。建筑师的创作充分考虑建筑、景观、室内等不同专业设计成果之间的统一对位关系。表皮划分的对线问题是这一目标之下最基本而又最难控制的部分。所有的划分都以虚拟轴线为基准,以相同的模数单位进行设计。以幕墙表皮的位置控制为例:如有因构造原因引起的表皮位置改变,则在最后一块上做局部改动而不调整大面的划分模数。原则与基准的统一让建筑师在多专业合作的复杂过程中得以实现绝大部分的立面对线。

回顾整个项目的设计过程,建筑师的角色类同于一个“定制裁缝”,在既定条件下,不断寻找设计理想与使用者需求之间的共鸣,最终以一个相对包容的姿态呈现于城市的大背景之中。
建筑师于项目限制条件下试图探索的话题——“企业总部面向城市的开放性”——虽然并未完全落地,但其中的历程不失为一种真实、可传递的经验。
项目信息
设计单位:goa大象设计
企业网站:www.goa.com.cn
所在地:浙江杭州
设计/竣工:2011-2017
建筑面积:180,000 ㎡
主创建筑师:何峻,张迅
设计团队完整名单:方婷,汪进,李令捷,马佳
建筑摄影:是然建筑摄影

BIM建筑网





评论前必须登录!
注册