我们总是期盼这样的场所,那里有热爱生活设计的小伙伴,每一束阳光里都充满了灵感和自由,大家可以在这里畅所欲言,专注于自己的创作,在花园里办公和生活——就是我们想要构建的乌托邦。
△ 项目视频
一境建筑设计的新工作室,位于深圳西丽万科云设计公社,这是一个绿树环绕,充满生活气息的办公社区。在这里,你可以端着咖啡漫步于公园栈道,和小伙伴去天台讨论方案,躺在草地上看白云飘过。就像在花园里办公,充满了诗意与生活化的场景,阳光洒落之处是铺满白色细石子的中庭,被工作室领养的小猫来福特别喜欢在这儿爬树,追着影子玩耍,累了就趴在阳光下睡懒觉。楼上是办公空间,楼下是咖啡厅、共享台阶、展览厅,我们就在这个充满阳光与绿意的地方办公、生活,理想的办公空间莫过于此。

△白天外部环境

△ 空间功能分析
在我们入驻前这里本想以展览厅的模式运营,所以空间内留了一束光和24根角度间距都不一样的柱子。受到外部环境的启发,一个打造“公园里的办公室,办公室中的公园”的灵感就此闪现。
利用柱子间的角度和间隙划分功能区域,并在6米的层高中做了挑空,创造了两个错落有致的休憩盒子。为了最大限度的保留中间天窗的完整度,中庭成为了铺满白色细石子的枯山水庭园,以呼应外部的公园环境,让光线泻下形成一道“光之阶梯”通向第二层办公空间。

△轴测图
一层自然形成了一个供员工看书休息,及展览的空间,入口处是一个近5米宽高2米5的共享台阶大概可以容纳30人左右,用来承办设计分享的小型讲座。原本多且突兀的柱子就在巧妙的设计中“消失”,取而代之的是洒满阳光的动线,与环境、气流、光线相融合的空间形态,形成充满生活气息的“文创公园”和交互式工作场景。

△大厅

△大厅

△楼梯
从共享台阶旁的石阶走入就是境·未来展厅,这里分为建筑、城市、场景、技术四个不同板块展示一境从刚成立到现在的所有设计方案。还有VR体验厅模拟走入建筑内部的真实感觉。我们希望所有来过一境工作室的人都能通过这个展厅感受到我们的成长和对设计的热爱。展厅的右侧是cafe吧,光影从玻璃中隐约透入,伴着淡淡黄色的灯光营造出质朴温馨的氛围,当初设计这个cafe的时候想法很简单,就是想让建筑师们在高强度的工作中用咖啡做调剂,适当放松几十分钟。放下工作的压力,在咖啡的风味中敞开心扉愉快的交流,探讨设计与生活。在无意识中流露更多的灵感和有趣的碰撞。

△展览厅

△cafe

△cafe吧台

△吧台细节

△阳光下的cafe吧
当夜幕缓缓降临,整个室内空间显得更加纯粹通透,建筑师们走下阶梯完成从工作模式到生活场景的置换,在cafe用餐、撸猫、看书缓解一天工作的疲累。

△大厅

△cafe

△猫与休憩盒子

△工作空间

△办公室

△会议室
在展厅后面还隐藏了一个近50㎡的“享空间”,专门用于员工聚餐打桌球。有些客户来参观一境时都觉得不可思议,员工的休闲空间居然比办公空间还要大,我们希望员工来上班的时候心情是愉悦的,抬头就能树阴婆娑,一路沐浴着阳光,现代都市人的工作时间不断延长,工作不仅是枯燥乏味的,在工作中也能塑造美好生活的场景,触动细微的感动与温度。让工作、生活、花园、文创融合打造全新人文工作方式。


△娱乐室

△夜景

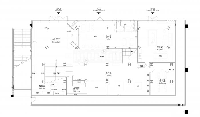
△一层平面图

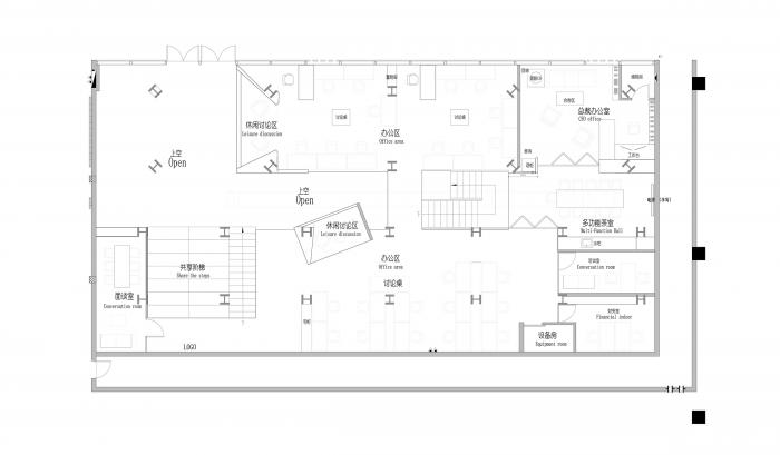
△二层平面图
项目信息
项目名称:一境空间
建筑事务所:一境建筑设计
事务所网站:http://www.yijing-vip.com/
联络邮箱:[email protected]
项目完成年份:2020
建筑面积:820平方米
项目地址:深圳市南山区西丽街道打石二路与创科路交汇处万科云设计公社项目A区A307号
主创建筑师:何敏聪
主创建筑师邮箱:[email protected]
设计团队: 韦嘉兴 唐婷
摄影师: 黄书颖
摄影师邮箱:[email protected]

BIM建筑网





评论前必须登录!
注册