
该项目位于大阪北部地区的茨城县,地处茨城智能社区的中心地块。项目基地原是东芝的制造工厂,面积达到了18万5千平方米。建筑师将其中的4万平方米基地用于新校区的建造,来为追手门学院大学的3600名学生提供教学和日常活动所需。在互联网技术、人工智能和移动交通日新月异的今天,学生已不再需要传统地去校园上课,那么,未来的大学又该是怎样的一番面貌呢?


建筑师希望设计一个可以激发学生前往校园的学习场地,并参考了日本旧时的神社和庙宇设计,以利用它们所体现的神秘感和吸引力,从而使这个新建的空间成为一个有凝聚力的场所。而这,也正是建筑师对未来大学和学习空间的一种思考。



建筑师旨在营造一个空间综合体,从而为每位个体提供丰富的环境体验,刺激他们的兴趣发展,并给他们提供学术探索所需的空间。建筑师选择了一个三角形的空间形态,以利用其高效的空间使用度,从而满足各类学术活动的需求。同时,这样的空间形态,也使得构筑物本身,具有了许多可进出的入口。建筑师将这个新建的场所称为“学术方舟”,因为来访者可以在主厅看到一个悬浮的巨大银制体块。




这个体块,是一个具有很多藏书的图书馆空间。建筑师围绕向心空间设计了一个图书轨道。而在图书馆的周围,则于二三层分布了六个大型教室,于四五层分布了21间小型教室。而在这两个大型体块之间,建筑师还预留了充足的空间,使得各层的学生可以彼此看见,有着视线上的沟通交流。在可持续环保方面,建筑师选择了不锈钢的幕墙材料,并在表面雕刻了学校校花的樱花图案,在彰显学校特征的同时,减少夏天60%的能源消耗。




位于五层的屋顶花园和三角形的走廊式露台,则进一步减少了进入大楼内部的热气,从而给学生提供了一处理想的学习场所。这一学术方舟,坐落于公园般的校园内,并完美地呼应了智能社区的未来发展目标。建筑师希望这个新落成的空间,可以给学生的日常活动,提供一个理想的去处,并在互联网时代于老师和学生,以及学生和学生之间,建构一个独特且紧密的连接关系。




设计图纸

△ 总平面图

△ 一、二层平面图

△ 三、四层平面图

△ 五层平面图和剖面图

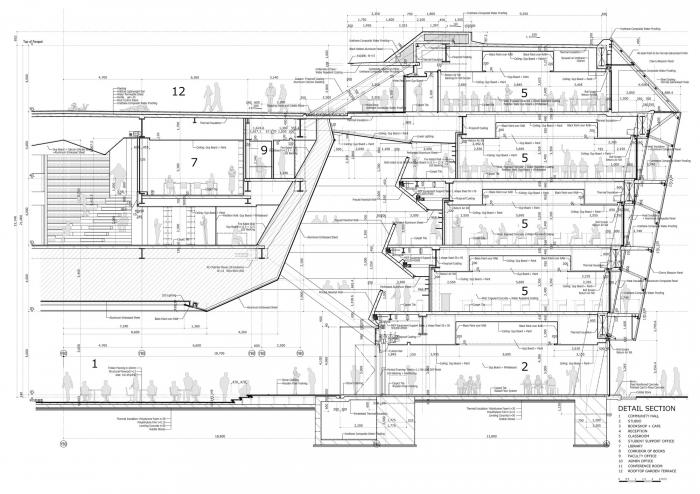
△ 细部剖面
项目信息
项目类型:大学,可持续发展
项目地点:IBARAKI,日本
建筑事务所:三菱地所设计
面积:20409m²
项目年份:2019
摄影师:Shinkenchiku-sha,Naoomi Kurozumi,YAMAGIWA,Hisao Suzuki
厂家:AutoDesk,Blandor,Dyflex,Olivebricks,Robert McNeel & Associates,Sankyo Tateyama aluminum,Showa Yotal,Trimble Navigation,Vectorworks
主创建筑师:Yasuhiro Sube, Keisuke Aneha, Mitsubishi Jisho Sekkei
结构工程师:Mitsubishi Jisho Sekkei Incorporated
环境与机械工程师:Mitsubishi Jisho Sekkei Incorporated
灯光设计:akari+DESIGN associates
纺织设计:Yoko Ando Deign
施工管理:Mitsubishi Jisho Sekkei Incorporated
艺术协调:Mitsubishi Jisho Sekkei Incorporated
项目管理:Mitsubishi Jisho Sekkei Incorporated
开幕时间:April 2019
功能用途:School, Library,Cultural Hall, Studio,Cafeteria
结构设计:S+SRC
基地面积:64,415 平方米
建造面积:6,752 平方米

BIM建筑网





评论前必须登录!
注册