本项目分为两块用地,其中二类住宅地块净用地面积16458.74 平方米,商业地块净用地面积2656.96 平方米。用地地势平坦,形状并不方整,南北向宽达约210 米,东西进深约50~120 米。北侧紧邻规划道路,西侧为下同仁路,紧靠宽窄巷子。
整套方案文本包含:鸟瞰图,效果图,立面图,剖面图,设计说明,分析图,示意图等,一共66页。

本案设计理念印证风水,人流带着商机,广入汇聚,海纳百川。重视人性环境的塑造,突出“以人为本”的设计思想。对周边环境及传统建筑的传承,并非刻板的复制一些固有的建筑符号,在现代建筑的外观上稍作修饰,续写传统建筑的衍生。在总体布局上,以空间阵列的形式烘托出与既有建筑的内在联系,起到化龙点睛,以点带面的作用,达到总体布局上现代建筑与固有传统建筑完美融合的状态。

根据建筑使用性质,立面色调以浅色系为主,体现了大气,冷静的气质,硬朗的线条突出了威严与沉稳,建筑的体量上合理控制,强调整体视觉冲击感。同时不同材质的交替和结合,变化中寻求统一,和谐中体现个性,充满了节奏感与韵律感。

基地北侧道路绿化带内的巨型商业前广场,是本案的一大亮点。在丰富城市景观,烘托商业中心磅礴气势的同时,也为日后各大商家举办大型商业活动提供了方便。两侧下沉式广场入口,增加广场竖向的层次感。

↑彩色平面


↑分析图




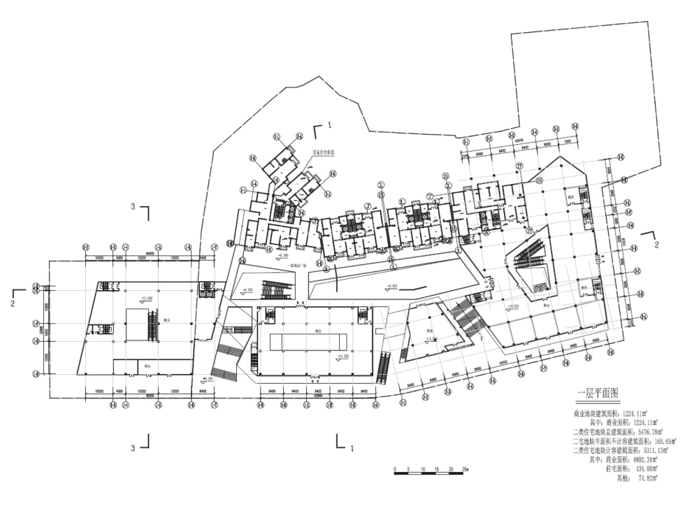
↑平面图




↑立面图


BIM建筑网





评论前必须登录!
注册