

小镇为这个媒体博物馆选择了优越的地理位置:位于城镇中心,它离市镇大厅和教堂只有几米远,并且在二十世纪九十年代所建的音乐学院的街道对面。
新建的媒体博物馆是地标性建筑,被特意设计成易于看见和识别,并和现有市镇建筑和谐共处。


这座建筑有礼貌地退让,避免遮挡临近建筑。它害羞地暗示它的存在,当人来到附近时需要细心寻找才能发现。直到那时,人们才震惊于建筑体量和建筑特征的力量。这是一个不怕声明体积的建筑。

媒体图书馆的立面呈现几个褶层,每一面都是为了回应特定环境和特殊约束。
在大道一侧,大楼朝向一个景观广场宽阔敞开,它的通透预示着重要的深度。大楼沿着rue Bouvier街对折,立面是紧紧封闭的形式,只设置了两个开口来创造活力:一个在一层,类似于断口,邀请客人进来;另外一个很大的开口在二楼,暗示着主要空间所在的位置。在建筑背面,是市镇街区中心,大楼立面左右翻转过来,并以一棵美丽的百年胡桃树为固定点,大楼在它周围环绕成一个环状。


同样经过精心雕琢的屋顶随着敞开的变化详细说明了它的高度:在外围,它被周围建筑包围,难以察觉;在中间,它最大化利用PLU规则来为建筑提供所能承担的最大体量。
该建筑像整块巨石,这个特点通过使用灰色石英石得到增强,墙上和屋顶都采用了石英石。在表面的简单背后隐藏着复杂的技术实力。每个侧面都有特定的施工方法。用于立面的石块被设定为88毫米厚,有不同的高度和长度。
主屋顶部分的石块更薄,固定在金属底座上。花园一侧的屋顶坡度更陡,为中央的胡桃树树枝腾出地方。那里的屋顶用金属支架支起的砌石包盖,这是个必须有Atex认证的创新技术。


作为多用途会议室,新媒体图书馆总是能获得突出的社会功能。设计者Pascale Guédot解释说:“皇后镇媒体图书馆代表新的趋势。在设计开始和建造开始之间,总体积已经减少了40%。因此我们能够强调空间的使用,增加座位数量。”登入/登出都是自动化的,能让员工将更多时间用于公共场所。与媒体图书馆的活动以及不断变化的递送方式相关的需求和约束已经被仔细评估,这形成了清晰实用的目录组织。经过和建筑专员持续讨论,我们考虑到了最合理的空间布局,并给与阅览室占用很大的“开放空间”。
一旦入内,读者会发现一个敞向花园的巨大体量。室内外融为一体,室外石墙中的一面延续到室内,它仅有石凳那么长,围绕着胡桃木树干,无视所有的边界概念。木制台阶随时可用,斜靠在邻接的隔墙上。在夏天,在胡桃树的树荫里,花园变成另一个阅览室。
一楼是完全开放的空间,迎接读者,这是孩子们的开敞小角落。没有承重柱,也没有按照体量来分区。它位于外墙的厚层里,小的阅览室也隐藏在这里。
宽敞的楼梯,朝向自然环境打开,引入自然光,并包裹着同样的石材,给媒体图书馆以统一性,将读者迎上二楼。



在楼梯顶部,主阅览室的空间让人印象深刻。天花板采用复合面,直接连接屋顶,最高可达7米。大楼朝北的部分加宽并且屋顶升高,让大量自然光照进来。




设计图纸

△ 总平面图

△ 一层平面图

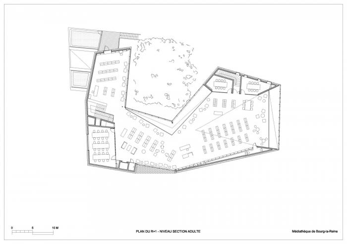
△ 二层平面图

△ 立面图

△ 立面图

△ 剖面图

△ 剖面图

△ 节点详图

△ 节点详图

△ 节点详图
项目信息
项目类型:图书馆
项目地点:BOURG-LA-REINE,法国
建筑事务所:Pascale Guédot Architecte
面积:2000m²
项目年份:2014
摄影师:Hervé Abbadie
设计团队:Pascale Guédot Architecte ; Loïc Levisalles, chef de projet ; Luca Antognoli, assistant ; FORR, Carolina Fois, paysagiste ; Speeg + Michel, concepteurs lumière ; Batiserf, BET structure ; Alto, BET fluides et HQE ; Ayda, acousticien ; Forgue, économiste ; CL Infra, BET VRD ; Global, OPC ; Ateliers 59, signalétique
企业:LBC, gros œuvre ; ERTCM, charpente; SMAC, couverture pierre ; FIC, façades vitrées ; DBPM, façades pierre ; SAM+, serrurerie ; BONNARDEL, menuiserie bois ; DBS, faux-plafonds ; TROUVE LECLAIRE, peinture ; GIACALONE, carrelage ; CDI, chape ; BALAS, CVC-ELEC ; ATV, VRD ; BOTANICA, plantations; VALBOIS, sol bois
结构设计:Batiserf

BIM建筑网





评论前必须登录!
注册