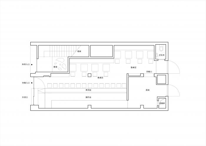
此项目是位于西湖岸边邻街的三层老建筑改造为日式料理店。考虑到项目地处西湖岸边平时游客多的问题,我们计划在一层设计价格比较低客人翻台率快的日料快餐业态。



我们考虑到建筑是天花比较低的老房子,所以不能大幅度的改变天花的高度。由于项目的功能需求,以及一层不规则平面的局限性导致很难吸引商业街行人的注意。因此我们决定采用日本传统建筑中经常使用的「船底天花」,在平面空间追求变化而不是垂直空间,使人们在比较低的空间也能感受到空间的变化。因此整个方案的天花设计是由上下两层通过顶部曲线的变化延伸的天花造型组合而成,且天花与墙面相接的部分顺势延伸下来,使整个空间墙面与天花保持一体性。



在日本,细长的联排别墅被称为「鰻の寝床」。后来这家餐厅将出售鳗鱼作为其主要产品,「鰻の寝床」的空间设计和我们餐厅的设计理念不谋而合了。
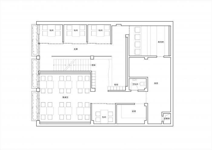
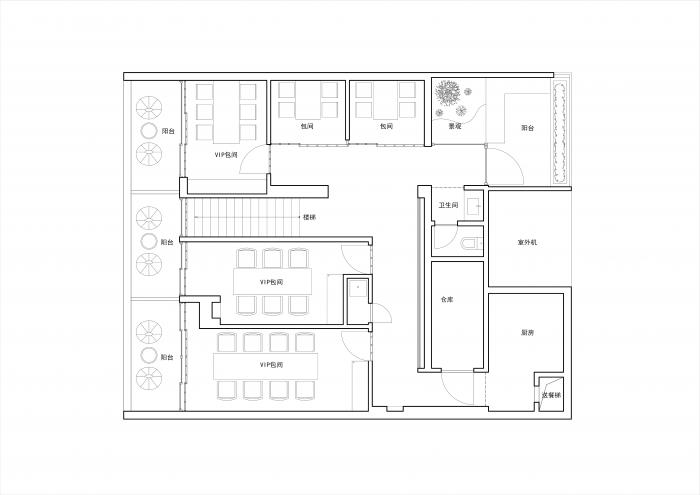
项目二、三层空间为松子料亭。详见文章:料亭松子 / 堤由匡建筑设计工作室
设计图纸

△ 一层平面图

△ 二层平面图

△ 三层平面图

△ 概念图

△ 轴测图

△ 剖面图aa

△ 剖面图bb
项目信息
地址:中国杭州市
面积:73.5㎡
室内设计:堤由匡建筑设计工作室
设计团队:堤由匡、洪秀秀、罗帅鹏、彭瑶君(实习生)、张斯朗(实习生)
照明设计:Ljus Design (石冈真己子)
机电设计:北京东洲际技术咨询有限公司(石川星明、竹林克宣、山崎隆司)
施工:杭州丰元装饰设计工程有限公司
撮影:Sensor见闻影像
竣工:2020年5月
微信公众号:xuebim
关注建筑行业BIM发展、研究建筑新技术,汇集建筑前沿信息!
← 微信扫一扫,关注我们+

BIM建筑网




评论前必须登录!
注册