此项目是位于西湖岸边邻街的三层老建筑改造为日式料理店。料亭位于老建筑的二层三层,虽然地处邻街处,但独立的空间是其本身的优势。为了与周围环境区分开以及符合料亭本身的特色,我们专门为料亭设计了独立的入口。

△ 料亭入口

△ 入口细节

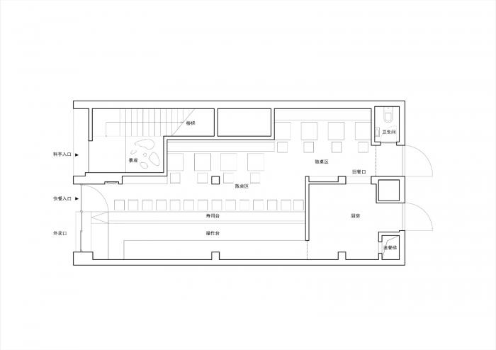
△ 一层平面图
料亭的玄关位于天花板较低的二楼,因此玄关入口墙面的处理很重要为吸引客人的视线。我们将日本传统的麻叶图案解构为菱形和等边三角形,重组得到我们的双层格栅墙。我们从不同的角度能够得到不同的视觉效果,但从正面看的话麻叶图案依然是视觉中心。在鞋柜面板上我们加工了日本传统雕刻技术「名栗」。

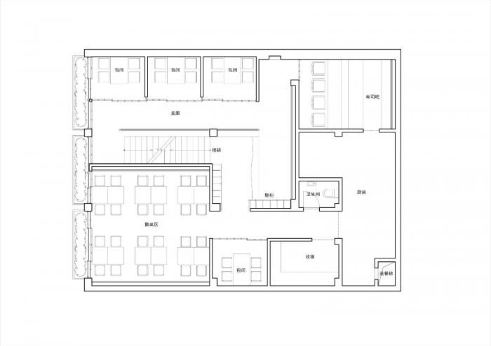
△ 二层平面图





△ 二层入口玄关

△ 走廊

△ 双层格栅墙

△ 鞋柜细节
二层的一半区域由包间和寿司吧构成,我们采用了日本传统的太鼓张作为隔断,在保障私密性的同时又具有通透性。二层的另一半区域大厅,我们将木格栅墙元素运用在大厅的俩面墙上。为了确保日光的同时阻挡外面邻街杂乱的景色,我们将整个阳台种满了植物并用脚下开放的雪见障子作为隔断。


△ 寿司吧

△ 大厅
三层是料亭空间的VIP房间,整个空间非常安静、私密。为了利用三层天花比较高的特点,我们在每一个VIP房间的地板和天花之间都设计了贯通上下的装饰柜,并且安装了间接照明。这是参考了京都「修学院离宫霞棚」而得到的想法。

△ 三层平面图

△ 楼梯


△ VIP包间


△ 装饰柜

△ VIP包间

△ 概念部分

△ 轴测图

△ 剖面图aa

△ 剖面图bb
项目信息
地址:中国杭州市
面积:260.2㎡
室内设计:堤由匡建筑设计工作室
设计团队:堤由匡、洪秀秀、罗帅鹏、彭瑶君(实习生),张斯朗(实习生)
照明设计:Ljus Design (石冈真己子)
机电设计:北京东洲际技术咨询有限公司(石川星明、竹林克宣、山崎隆司)
施工:杭州丰元装饰设计工程有限公司
撮影:Sensor见闻影像
竣工:2020年5月

BIM建筑网





评论前必须登录!
注册