
该项目是为Adolf Würth GmbH & Co. KG所设计的Carmen Würth论坛中心,位于德国南部的金策尔斯奥。项目是对既有音乐厅和大型活动厅的一次扩建,建筑师新置入了一个灵活的会议区域,以及一个艺术博物馆。这次扩建旨在进一步丰富论坛中心的空间功能,并通过兴建艺术博物馆,打造对公众开放的中心。

△ 总平面图

艺术博物馆旨在为Würth所收集的藏品提供展示空间的同时,为大型活动提供一个容纳场所。主要功能包括一家咖啡厅、有着巨大展厅的门厅空间、以及一个精致的小规模平面艺术画廊。透过釉质的立面设计,美术馆内的空间与外部的自然景观建立了亲密的对话关系,并通过雕塑公园的设立,进一步强化了艺术与环境的空间交流。


建筑师在设计过程中利用了工业建筑的形态和语汇,并将其呈现在论坛中心的材料选择上。建筑师不光关注于该空间与周边环境的融合交流关系,其还尽可能地保证该论坛中心能为Würth的公司提供适宜的办公场所。



设计图纸

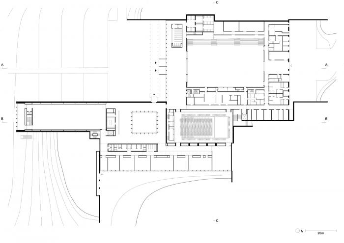
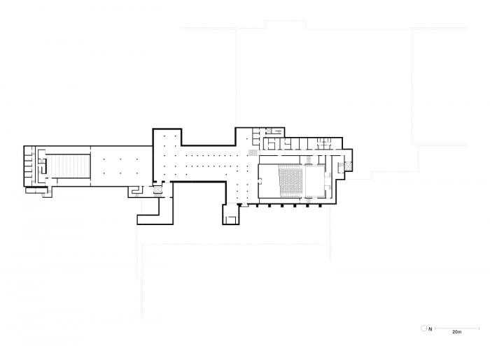
△ 一层平面图

△ 二层平面图

△ 地下一层平面图

△ 屋顶平面图

△ 剖面图AA

△ 剖面图BB

△ 剖面图CC

△ 东立面图

△ 南立面图

△ 西立面图

△ 北立面图
项目信息
项目类型:博物馆,文化中心
项目地点:KÜNZELSAU,德国
建筑事务所:David Chipperfield Architects
面积:5500m²
项目年份:2020
摄影师:Simon Menges
主创建筑师:David Chipperfield Architects Berlin
合伙人:David Chipperfield, Harald Müller, Martin Reichert, Alexander Schwarz (Design lead)
项目建筑师(竞赛阶段):Annette Flohrschütz
竞赛团队:Sandra Badji, Markus Bauer, Jan Blaurock, Ute Burdelski, Mirjam von Busch, Florian Dirschedl, Ulrike Eberhardt, Hannah Jonas, Hjördis Klein, Barbara Koller, Martina Maire, Jana Raudnitzky, Stefanie Schleipen, Marika Schmidt, Moritz Uhlmann; Grafik, Visualisierung: Dalia Liksaite, Antonia Schlegel, Ute Zscharnt
项目建筑师(二期):Marcus Mathias (Preparation and brief to Technical design, Site design and construction supervision, Procurement)
项目团队:Alexander Bellmann, Leander Bulst, Bernhard Danigel, Dirk Gschwind, Christopher Jonas, Linda von Karstedt, Maximilian Lohmann, Thomas Schöpf, Nils Stelter; Graphics, Visualisation: Dalia Liksaite, Ken Polster
执行建筑师:Kraft + Kraft Architekten, Schwäbisch Hall (Procurement, Construction supervision) represented by Gerd Eckert and Markus Masseretti
结构工程师:Mayer-Vorfelder und Dinkelacker Ingenieurgesellschaft für Bauwesen GmbH und Co KG, Sindelfingen
服务工程师:ZB Zimmermann und Becker GmbH, Heilbronn PBS Ingenieurgesellschaft mbH, Aalen (Electrical consultant)
声学工程师:Horstmann + Berger, Altensteig
消防顾问:Halfkann + Kirchner, Stuttgart
立面顾问:Reba Fassadentechnik AG, Chur
灯光顾问:Arup Deutschland GmbH, Berlin (Daylight consultant)

BIM建筑网





评论前必须登录!
注册