
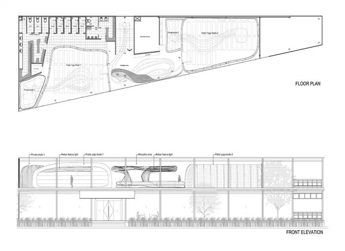
总部位于泰国的设计公司Enter Projects完成了这家位于曼谷的瑜伽品牌的总部。这座照片由Edmund Sumner所拍摄的项目是一个面积达450平方米的空间,内部包括一系列的自由形式的瑜伽舱、休息大厅和卫生间设施。通过与当地手工艺人的合作,设计团队实现了项目的所有元素都采用自然的物质材料,包括泰国硬木,藤条,棕榈叶和本地黑板岩。

项目将作为瑜伽品牌Vikasa的总部,它是该品牌健康与养生理念的体现。正立面上的落地窗使得自然光线得以洒入室内,同时保障了瑜伽舱的隐私。通过运用特色鲜明的几何元素,Enter Projects将3D技术与本土手工艺相结合,把自然带到了城市环境中。

“我们致力于创造一个模拟自然世界和反映生活无止境循环的空间”,Enter Projects的设计主管Patrick Keane解释道,“结果就是一个令人着迷而平静,笼罩在宁静的满足感之中的空间——曼谷的喧嚣中的一片宁静绿洲。”




















项目信息
室内建筑&设计:enter projects asia
设计主管:patrick keane
设计团队:tomas guevara, azul paklaian, archana ramesh, sergio lissone
当地工艺:rattan forever
施工方:enter projects, ian sykes
工程师:lincoln scott
顾问:ian sykes builder
承包商:rattan forever for fabrication
混凝土楼板:pandomo
黑色石地板:thai stonetrade
浴室瓷砖:northern lights enterprise
浴室储物柜:automatic locker co. ltd
摄影师:edmund sumner

BIM建筑网





评论前必须登录!
注册