

瑞士巴塞尔北部的Erlenmatt Ost场地正在开发一个新的城区。其中心是一座建于1912年废弃的筒仓,是为Basler谷物和可可豆干储藏公司而建造的,如今已转变为一处面向更广泛社区的多元化场所。



根据基金会和Talent Verein的建议,这里将建造一座每个人都可以参观体验的多用途的社会文化场所。这其中包括文化工作者、服务提供商和年轻商人都负担得起的工作室、旅馆和餐厅。该项目的总体目标是创造和促进多样性。


原有的独立式筒仓建筑现已经被整合到Signalstrasse沿线一排建筑中。其两侧分别是学生公寓和艺术家的办公与居住空间。该场地邻近高速公路,噪音污染严重,我们希望提升建筑可持续性,同时丰富项目的内部空间组织。作为瑞士最早的钢筋混凝土结构之一,空间的垂直划分定义了其独特的内部工业条件,我们的目标是尊重并保护这一历史遗迹。



对建筑内部结构的考虑贯穿整个设计过程,因此,我们尽可能地保护建筑的现有结构,将破坏性的干预降至最低。因此,特色的筒仓室得以保留。







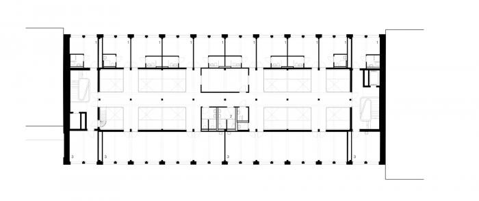
建筑师采用原有空间熟悉的尺度,通过安装两层新楼板以及分配核心,赋予了该建筑新的功能。舷窗般的窗户保证了采光、通风以及良好的室外景观视野,同时不会影响立面的原有构造。旅馆的客房位于街道一侧的一、二层,工作室则位于朝西南庭院一侧的一、二层。一层的研讨室面向街道,餐厅可以通向带有公共餐饮区和室外休息区的公共庭院。










改造施工过程:


设计图纸:

△ 场地平面图

△ 总平面图

△ 地下一层平面图

△ 一层平面图

△ 二层平面图

△ 三层平面图

△ 画廊层平面图

△ 西南立面图

△ 东北立面图

△ 剖面图

△ 剖面图

△ 剖面图
项目信息
项目类型:办公设施
项目地点:巴塞尔,瑞士
建筑事务所:Harry Gugger Studio
面积:2690m²
项目年份:2020
摄影师:Lukas Schwabenbauer,Christian Kahl,Marc Gilgen,Leon Faust
厂家:Adobe,Feller AG,Fixit,Glutz,McNeel,Nemetschek,Thymos,Ytong,Zehnder Group Schweiz
设计团:Harry Gugger, Michael Zink, Gonzalo Ampudia, Mengjie Cheng, Franziska Cherdron, Thomas Domenger, Sara Jardim, Furio Montoli, Gunnar Stachmann, Vera Hollek, Rachel Testard, Gregory Then, Jan Wiedmer
项目管理:Eitel & Partner GmbH
结构工程师;Schnetzer Puskas AG
Emp工程师:Gartenmann Eng. AG Building Technology: Waldhauser + Hermann AG
卫浴工程师:Gemperle Kussmann
电气工程师:Edeco AG
防火工程:Quantum Brandschutz
立面规划:PPEngineering GmbH

BIM建筑网





评论前必须登录!
注册