
圣戈班集团总部大楼共44层165米高,占地面积约49000平方米,旨在展现示范性的环境质量,强调城市一体化、能源性能和用户舒适度。


如今,在拉德芳斯设计一座新的塔楼需要解决多重领域的问题,包括功能问题(创造灵活的空间和高效的建筑物)、技术和建设问题(复杂且受到诸多限制的场地)、高层建筑内生活条件质量问题、城市问题(商业区向更城市化生活模式的演变)以及象征性问题(一家法国大型公司的总部)。
尽管存在诸多问题待解决,但与任何其他建筑相比,一座塔楼关系到人以及对人产生的影响。人们希望这样的建筑给他们带来情感,而建筑师应该努力带来这些情感与刺激。

该塔楼具有很强的独创性,如同三块捕捉与散射光的晶体组合,具有一定的反射性和透明度。建筑的动态轮廓通过三个倾斜的多面体组合在一起,以拟人化的方式隐喻头、身体和脚,与周围的塔楼进行互动。该塔楼成为了一个温暖的标志,“转头”、“弯腰”以示欢迎。
此外,自然成为了该项目的中心舞台:大型温室提升了建筑的氛围和环境性能,从办公室可以直接进入所有楼层的花园。




高效、实用且灵活的塔楼。这座塔楼作为该公司的主要资源,主要分为三个不同的部分,包括:-主塔楼,所有楼层均为办公空间;-较低楼层,设有开放空间,包括海滨广场的陈列室;-最高楼层位于塔楼的顶部,包括接待区、会议厅以及享有全景视野的巨大聚集区。
理想的工作环境。所有办公楼层均可欣赏全景,自然采光条件良好。办公空间可以直接进入花园,尽管花园位于室外,但防风性能优良。







环保节能塔楼。该塔楼的设计充分考虑了环境问题。在这一方面,空间、建筑和技术解决方案总体上有助于提高塔楼的效率。

传达圣戈班品质的项目。圣戈班控股现在是建筑材料和产品销售行业的领导者。然而,玻璃仍然是圣戈班传统活动的象征,这座水晶般的塔楼建筑强调了其美学品质以及光传输、隔热性和低发射率的特性。

设计图纸

△ 区位图

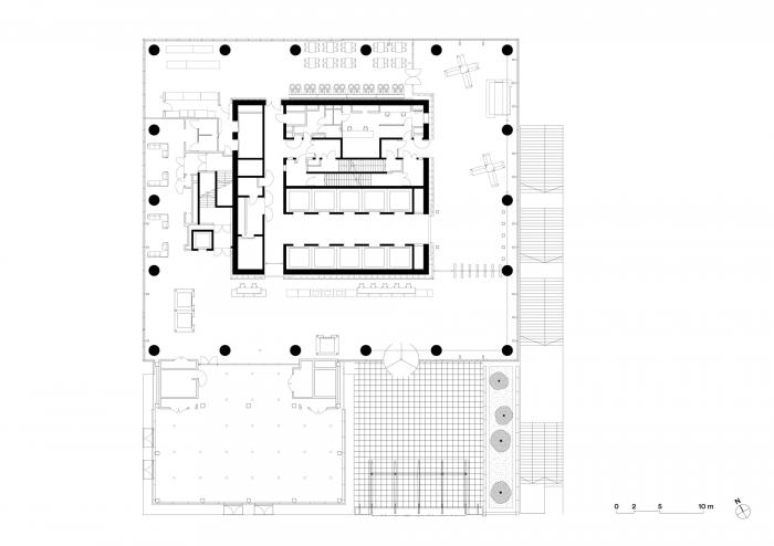
△ 一层平面图

△ 二十七层平面图

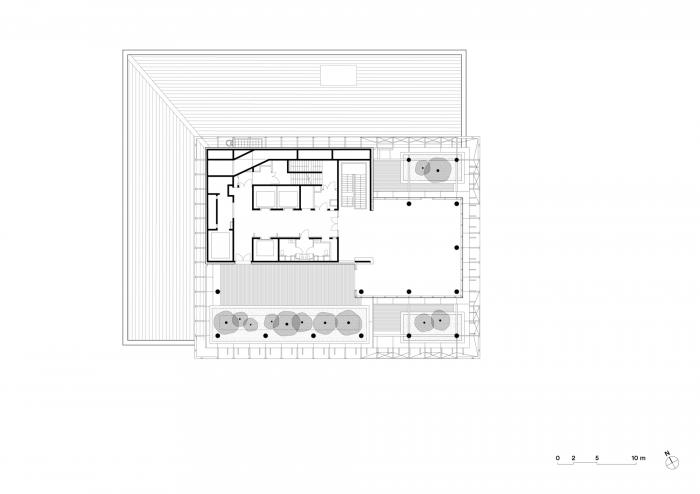
△ 三十七层平面图

△ 东南立面图

△ 西南立面图

△ 剖面图
项目信息
项目类型:办公设施,办公室室内,可持续发展
项目地点:巴黎,法国
建筑设计:Valode & Pistre
面积:49000m²
项目年份:2019
摄影师:Sergio Grazia,Laurent Kronental
厂家:AutoDesk,Saint-Gobain
主持建筑师:Denis Valode – Jean Pistre
客户:Generali / Saint-Gobain
工程师:Egis,Terrell, Artelia, Arcora, Movveo, G-Sir, Transsolar, 8’18’’
景观:Raphia
顾问:Batiss, Lasa, Artelia QEB
施工承包商:Vinci Construction

BIM建筑网





评论前必须登录!
注册