
© VIRTUARCH 德建
宝马格常州项目是来自德国的世界领先的路面设备制造商宝马格于常州的新生产基地,建筑面积约30,000平方米,是集企业文化展示、办公会议、休闲洽谈等多种功能为一体的复合型建筑,打造独具美学属性的工业项目,展现现代工业设备制造产业导向的新地标。
设计理念
未来已来,将至已至。
我们正站在大数据、互联网、人工智能等交叉科技成果不断涌现的智能数据时代。信息、符号、科技、工艺转瞬更迭,恒定的在于建构一个简单且有力的建筑空间,以特有的建筑语言回应时代的沧海桑田,融合灵感,赋予生命。
工业性结合自然风的建筑外观
宝马格中国新工厂由一栋高效的生产厂房和外形独特的现代化办公大楼组成,功能上不仅是生产中心,更是一处创新的工作场所。
整个厂区主要包含办公用楼、生产厂房(一、二期)及配套设施用房。

© VIRTUARCH 德建
办公楼位于厂区南部,长140m,宽35m,其内部功能包含接待、展示、培训、会议、员工食堂、开放式办公、独立办公等。楼栋外观展现工业生产的格调,同时兼具自然流畅的形态。

© VIRTUARCH 德建
车间长度为266米,最大宽度为145米,依据工业生产特性进行厂房的建筑设计布局,其内部功能涵盖原型车间、实验室、测试区、室内仓储等。偌大的厂房注重人性化生产,车间屋顶充分布置玻璃采光带和排烟通风装置,节能的同时尽可能导入自然光线。
融合现代美学的内部设计
建筑外部风格延续到了室内空间,注重自然光线的摄入和灵活的工作空间,为宝马格员工打造舒适的办公环境。
室内配色以黄灰白为主,延续了宝马格logo简洁鲜明的风格,加强品牌印象。顶部和墙上随处可见的线条设计在视觉上营造出延伸的空间感。


© VIRTUARCH 德建
办公大楼入口的金属吊顶呼应了工业感氛围,大面积的外幕墙将更多的自然光线引入室内。核心展示区内可以看到宝马格的压路机和工程机械。


© VIRTUARCH 德建
1层设置培训室,通过大面积落地窗引入更多自然光,线型吊顶及灯具构成顶面,更具工业感。


© VIRTUARCH 德建
会议室的巨大落地窗带来辽阔的视野,自然光线的照射营造出舒适、宜人的办公环境。


© VIRTUARCH 德建
工作空间则是以白色配色为主,配上现代化的办公桌椅,简单大气。顶部的流线造型强调了空间结构的美感,打造活力四射的工作氛围。


© VIRTUARCH 德建
活动区延续了整体明亮、现代化的风格。三层的互连空间,落地窗外放眼望去就是大片的绿色植物。宽敞的布局营造出温馨、舒适的氛围,员工在这里可以尽情交流、迸发灵感。
绿色技术
建筑充分考虑绿色可持续应用。形体和立面设计综合了光照技术分析、美学和功能使用上的考量。
建造材料
在材料方面,我们也更多的使用了当地所常见的建筑材料:运用了清水混凝土,鹅卵石,金属架,绿墙以及屋顶景观,将宝马格的重机械特性和自然完美融合。而在特定屋面的构造设计上,我们和业主一同选择了新的钢制屋顶与钢结构建造。
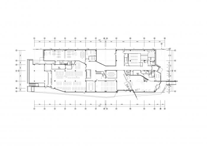
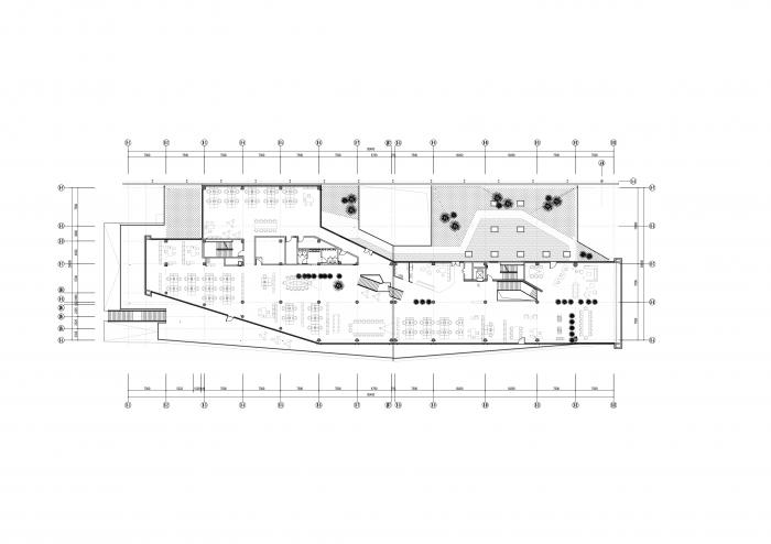
项目图纸

△ 总平面

△ 办公楼一层平面

△ 办公楼二层平面

△ 办公楼三层平面

△ 办公楼/北立面

△ 办公楼/南立面

△ 办公楼/剖面图

△ 厂区/东立面

△ 厂区/西立面

△ 厂区/剖面
项目信息
项目名称:宝马格常州工厂
项目地点:江苏省常州市
项目规模:41,000m2
项目年份:2018-2019年
提供服务:建筑设计、室内设计、设计管理、项目管理
主创建筑师:Daniel HEUSSER, Taha HASSINE
设计团队:王兰芳,葛亮
项目管理团队:卞寿栋, 宛新宽,王璐,庄家成,应杰
摄影师:常海豹
景观设计:Taha HASSINE
室内设计:白婵婵, 刘梦婕,
幕墙设计:德建建筑设计咨询(上海)有限公司
钢结构设计:中国海诚工程科技股份有限公司
施工图设计: 中国海诚工程科技股份有限公司

BIM建筑网





评论前必须登录!
注册