背景
柿子岭理想村位于山东省沂南县,是朱家林国家级田园综合体的重要节点。朱家林田园综合体以“文旅”为模式开展乡村振兴实践,通过四年的时间,从国家级试点到国家级示范,在全国的国家级田园综合体中脱颖而出。而柿子岭理想村作为其核心区域,以乡村形态为基础,发掘地方文化,提取乡土元素,从在地性出发,通过设计的介入,在建筑更新、空间活化、经济产业复兴、文旅产业发展等方面完成对柿子岭村落的更新与改造,打造齐鲁片区的第一个文旅乡村名片。

△ 柿子岭村原状鸟瞰

△ 柿子岭村更新后鸟瞰
项目总规模约7600平方米,场地呈线性,自西向东沿村道逐渐深入田中。村道北侧是散落的民居,南面是成片的田野,向东到尽头,村院聚集,成组成团。这里乡村与自然交织,原始村落与大地之间的空间留白,蕴藏了更多场所的可能。我们从区位、交通、聚落肌理等方面着手,将柿子岭理想村的业态自东向西依次设定为民宿大院、文创街区和公共服务中心,功能由私密到公共,空间由封闭到开放,设计介入的力度逐渐加大。

△ 柿子岭业态
民宿大院
“院”是当地民居的典型空间形态,村东的民居聚落的原始肌理也是大院间的组合。数十座民宿坐落于场地原宅基之上,以民居大院平面形式为原型,恢复了传统的民居肌理,在空间、形制、材质等方面承袭对地域传统,形成相对独立的院落空间。

△ 民宿大院空间演绎

△ 民宿大院整体鸟瞰

△ 民宿大院
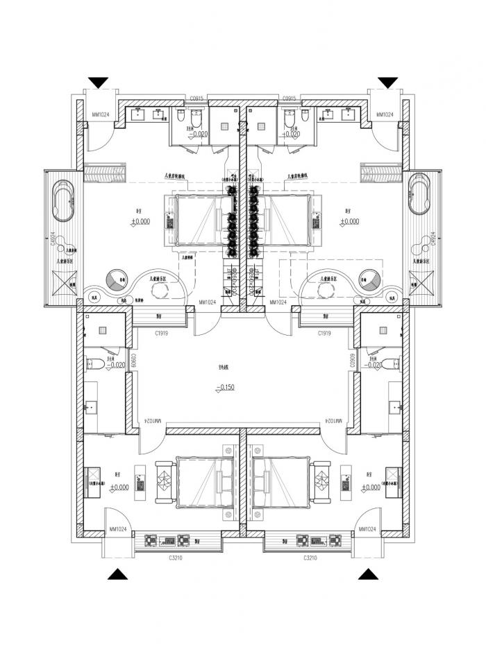
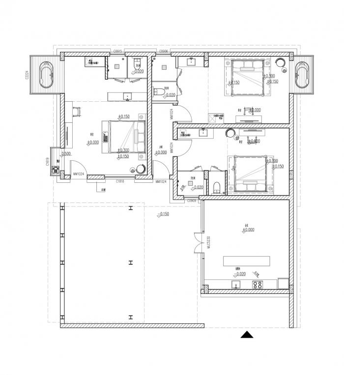
民宿院落分为大院民宿、标准院落民宿和亲子院落民宿,提供商务、休闲、亲子互动的室内外生活场所。为了满足现代人的生活需求,在民宿院落北边、靠近村路的方向设置了一座大院公区,主要提供民宿的接待和餐饮服务,在民宿院落中也植入了公共厨房、共享客厅、庭院茶棚等生活空间,赋予传统居住空间现代社交属性。在这里,体验的是乡村环境中的现代生活。传统民居中一家所有的场院,通过微小的改造,成为友人、家庭、孩童间交流互动、聚集娱乐的场所。院落空间与不同住户的生活情境的碰撞,赋予每个院子个性和精神。

△ 亲子大院民宿平面

△ 共享大院民宿平面





△ 民宿大院
民宿大院在功能植入和空间营造上融合了对现代生活方式的思考,材质、建造手法则沿袭民居的做法。公区采用由传统坡屋顶演变而来的折面屋顶覆盖公共活动空间,以此表达建筑在群落中的公共性。同时为了强调组团建筑的传统性,公区建筑以垒石作为立面以及屋顶的主要材料,入口处采用当地常见的茅草棚加以引导,建筑仿佛破土而出。民宿大院以垒石、红瓦为主,充分表达对地方风貌的尊重和传承。大院之间的街巷保持着传统村落的尺度,大大小小的邻里空间串联在人行巷道中,成为聚落里的公共场所。从公区出发,沿着蜿蜒曲折的步道,可以穿梭在院落、场地景观和外围田野之间,感受民宿大院组团丰富的空间层次。


△ 大院公区

△ 大院公区一角
文创街区
村落中部组团背靠宅院,面对道路与田野,线性的肌理暗含着导向性。我们利用这种空间导向,将邻里空间放大、拉长,以原始的院落肌理为基础,打开围墙,串联内院,多个“被拆解”的院落成组团,形成街区式空间序列。

△ 街区空间生成

△ 文创街区鸟瞰
院落形式的开放、组合,将“前院后宅”的空间形式转变成内街、广场、半围合小院的串联,营造了开放的街区场景氛围。道路南边对场地进行整理与微改造,布置了栈道、帐篷、无动力儿童游乐园等活动场所,还原了乡村田野的原始乐趣。大地景观成为街区游历体验的外延,也是大院和街区之间的自然过渡。

△ 文创街区-小广场
乡村街区整体以石材为主,搭配木头、玻璃等元素,在局部开放和展示空间处加以强调,增强了街区体验的趣味性。
街区业态涵盖农创、乡创、文创等多方面的复合体验,有文创商店、手工作坊、乡村集市、餐厅、自然学校。这里将富有当地特色的作物、民俗、手艺进行二次创意,送进课堂学习,端上桌面体验,放进橱窗展示,装进口袋带走,为村民提供新的就业机会,给游客充满地域特色的体验,让地方特色传承和发扬,使乡村产业以开放的姿态得以发展。

△ 文创街区-内街

△ 文创街区-内街
公共服务中心
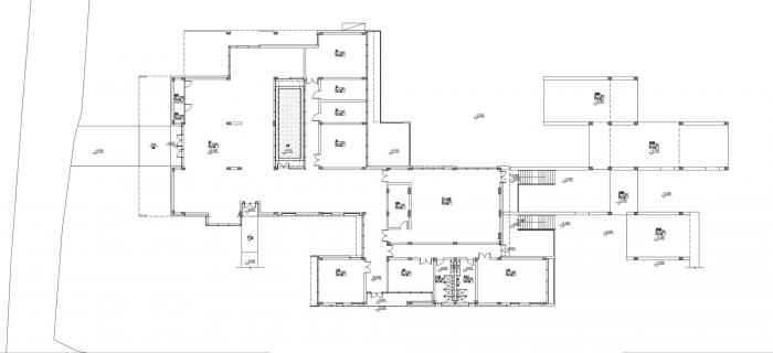
村落西边,面向道路的“门户地带”,是柿子岭村的公共服务中心。作为村子的起点和聚集之处,公共服务中心需要为驻民提供娱乐、交流、学习的空间,具有很强的公共属性。在这组建筑中,为了平衡公共性与地域性,设计将地方原生建筑语言放在当代建筑语境中加以重述,融合地域文化与现代建筑场所精神,从符号、材质、建造等方面进行表达,为建筑赋予空间叙事性。

△ 公共服务中心体块生成
设计师将村落原始的坡屋顶元素提取出来,作为乡村服务中心的形态生成基础。双坡屋顶作为母题,在平面上通过复制、错动、断开,自由而有机地生长成完整、连续而富有动态的折面形式。在这片屋顶下,不仅可以实现大空间的功能设想,还形成了连续坡面的室内空间效果,完成了建筑自外向内的一致性。

△ 公共服务中心鸟瞰

△ 公共服务中心平面图

△ 公共服务中心立面图
建筑西山墙面向道路,是乡村服务中心的主要出入口。屋顶形式在山墙上的表达由于母题的重复具有强烈的符号感,我们将这种符号语言外延、强化,形成主入口灰空间。在建筑东侧,用同样的手法,通过构筑物的形式将室内空间渗透到田野中,屋面形式的延续,围合界面的开放,将这里营造成为介于建筑与环境之间的特殊空间场所,感受建筑的庇护和自然的环绕。

△ 公共服务中心
建筑主体采用垒石和耐候钢板作为主要立面材质。垒石是地域材质的表达,以当地特色的砌法,在立面上呈现自然的纹理和质感。深红色耐候钢板隐喻了当地传统建筑的红瓦屋顶。或灰或黄的块石和深红色的耐候钢板呈现了不同质感的粗糙,形成丰富的立面肌理和色彩层次。主体建筑之外,向场地东边延续的空间构筑物则采用了石材、清水混凝土和木材的经典材质组合。灰白色的清水混凝土在场地中透出一种清爽的朴素,混凝土屋顶与石材矮墙之间用原木格栅为屏,至此,可见灰调的“实”、可触木质温润的“虚”、可感无际田野的“空”,三者之间的界面转换带来迷人的光影变化和空间感受。


△ 公共服务中心

△ 公共服务中心-符号化语言

△ 公共服务中心-景观构筑物

△ 公共服务中心入口
结语
柿子岭理想村作为整村更新实践项目,相比单体建造更需深入思考乡村的内涵与未来。在朱家林田园综合体的文旅背景下,柿子岭理想村无法避免城市文化和非传统业态的渗透。面对差异性的强烈冲击,设计师在实践中尝试从策划和建造的角度,循序渐进地完成现代文化与传统地方特色的交融。在柿子岭理想村的更新过程中,通过设计的微介入,当地典型的“大院”作为原型生成民宿、逐步打开形成街区、空间整合成为公共建筑,完成了传统元素从保留传承到现代设计语言表达的过程。对于游客而言,自村头到村尾,则是一场始于现代化公共服务场所、游于地域特色空间氛围、终于传统空间形态下生活场景的完整体验。

△ 场地景观
项目信息
项目类型:酒店,更新项目
项目地点:临沂,中国
建筑师:华建集团·上海设计 Free Studio
面积:7601m²
项目年份:2019
摄影师:张坤
主持建筑师:沈钺
建筑设计:王晔、陈静、孙雨桐
机电设计:殷春蕾、陈艺通、戴鼎立、胡洪
结构设计:李伟、申伟国
委托方:沂南县朱家林田园综合体指挥部
室内与景观:上海时代建筑设计有限公司
策划与运营:乡伴旅游文化发展有限公司

BIM建筑网




评论前必须登录!
注册