
△ 北侧鸟瞰©侯博文
乡村发展的现代化、城镇化趋势不可避免地需要引入新的功能类型,互联网会议中心等大空间多功能建筑是其中之一。江宁石塘村项目以“公社礼堂”及“温室大棚”为原型,尝试重构乡土环境下的公共空间类型。采用工业化快速建造体系,引入预应力细柱结构技术,有选择地以适宜技术消解弱化物化的建筑存在,还原乡村原有的触感,在极短的建造时间内进行了一次乡村复兴的建筑实验。
小镇大房子
石塘村的“互联网小镇”计划,是当今中国乡村城镇化的一个缩影,包括其实施面临诸多困境——乡村现代化、城镇化与城市化之间微妙的差异和困扰,即便那些具有优越区位条件和丰富自然资源的样本。这个位于南京西南40公里的近郊乡村,已先后完成了村落规划改造与乡村特色民宿、餐饮建设。作为“美丽乡村”的后续发展,应对未来“互联网创业大赛永久会址”带来的会议、观演等多功能的需求,地方政府提议的互联网会议中心项目,显然对于乡村的未来产业转型至关重要,但同时从选址到建设并未经过蓝图规划的缜密过程,而呈现出某种乡土聚落发展的“自发性”。

△ 入口立面远眺©侯博文
类型重构
在中国的传统乡村,大房子并不多见。作为公共建筑的“公社礼堂”,和作为生产设施的“温室大棚”是其中的典型。对上述两种“原型”的要素分析,成为推动设计的重要路径。乡土建筑类型通过与建造的材料、构造直接相关,既是乡土建筑现实存在的物质基础,也成为形式表现的重要媒介,和抽象的建筑空间意象、文化体验的载体。
公社礼堂记忆的唤醒,自然产生了两坡屋顶的基本空间要素,事实上这个会议中心的大空间在多数时间也将作为村民聚会风俗延续的场所。而装配式的杆件结构则是对温室大棚轻钢结构建造类型的发展,虽然其复杂性和可靠性要远高于后者的要求,但是其对自然环境最少扰动的理性建造逻辑得以保留。

△ 北立面夜景©姚力

△ 门廊局部©侯博文

△ 会议厅内部©姚力

△ 会议厅室内©侯博文

△ 辅助用房室内©姚力

△ 屋面结构及吊顶局部©侯博文
技术-乡土
研究空间结构及张拉整体的结构工程师袁鑫,巧妙地将“张拉整体”(Tensegrity)的力学原理应用于柱的受压,将传统柱横截面单一的受力分解为受拉与受压,两个方向力的平衡为抵抗柱的变形提供了额外的帮助,超越欧拉临界力的限制形成截面尺寸极小的重载超压细柱。理想的会议中心支撑结构,应该有如基地周围竹海的翠竹,细密挺拔。预应力细柱技术支撑下,达成了截面边长14厘米,10.45米高,长细比1:75的细柱。45天快速建造的同时获得了良好的建筑品质,依据了工业化建造体系以及相应的设计和设计管理方法。

△ 东立面©侯博文

△ 东面柱廊局部©姚力

△ 从入口柱廊看东面©姚力

△ 入口柱廊©姚力

△ 东侧休息廊©侯博文

△ 局部透视©姚力

△ 内廊©侯博文
“互联网会议中心”作为乡村新的功能类型,其要素构成毫无疑问是时代进步的诉求,而“类型”思考方法“转换”和“进化”的本质,从来不是拒绝——而是迫切需要积极融合新的技术策略,形成技术和乡土相契合的发展推动力去延续固有的空间环境秩序。

△ 东立面早晨 ©侯博文
设计图纸

△ 轴测分解图

△ 总平面图

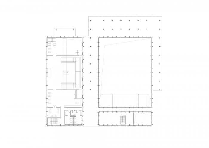
△ 首层平面图

△ 二层平面图

△ 东立面图

△ 北立面图

△ 剖面图

△ 剖面图

△ 屋架细部

△ 屋架细部
项目信息
项目类型:社区中心
项目地点:南京,中国
建筑设计:张雷联合建筑事务所
面积:3000.0m²
项目年份:2016
摄影师:侯博文,姚力
厂家:NANQI INDUSTRIAL,XINWU FLOOR
项目负责人:钟华颖 张雷
设计团队:钟华颖,张雷,席弘
设计单位:张雷联合建筑事务所
合作单位:南京大学建筑规划设计研究院有限公司 上海同基钢结构技术有限公司

BIM建筑网





评论前必须登录!
注册