
△ 政务办理等候区 摄影:宋毅
昆山市政务服务中心由四栋塔楼和连接塔楼的裙房围合而成,建筑面积10.2万平方米。汇集了二十多家市级委办局,为全市居民、企业提供包括民生、社保、税务、公安、出入境、公共资源交易、投资建设、市场准入、社会综合管理等一站式服务。

△ 建筑形态 ©思域设计

△ 鸟瞰效果图©昆山城投集团
自项目2009年立项、2011年建筑方案后期阶段开始介入设计以来,历时多年,期间经历了各种国家政务政策、城市综合服务管理定位、使用功能置换、新老建筑规范交替等等的调整变化。

△ 建筑外观 摄影:宋毅

△ 内庭院地下采光景观楼梯间出口 摄影:夏至
设计者回望的视线和思考已从之初的设计本体抽离开,更为关注的是于当下快速变化的时代背景之下,城市公共职能的管理者和公民空间以及被服务对象之间的决策、激发、引导、契合关系,活动对象由此获得的身体与精神层面的愉悦感和被尊重感,藉民生活动推动城市的活力。

△ 社保办理B门厅摄影:夏至

△ 社保办理A门厅 摄影:夏至
原点
设计离不开时代大背景特征,各种不确定性也是时代变化的映射,比如随着网络和社交媒体的变化带来的工作生活方式变化以及政府机构改革的变革,早期规划的分类、数量、工作流程都会被打乱重置。包括专业上的建筑防火规范、防排烟规范的更新带来的连锁反应都不是设计之初可以预料到的。

△ 休息讨论区 摄影:夏至
光线
光线经常被人片面理解为光影和明暗,其实光定义的是形状、颜色、距离、大小等信息,光线体现秩序,光线带来的情绪和身体感知,否则John.Lobell那本著名的《Between Silence and Light》,就变成了“Shade and Light”。光线本身并没有太抽象的意义,需要通过介质疏理、约束,让其成为空间必要的非物质性元素进入。

△ 市民文化展廊 摄影:夏至


△ 市民文化展廊 摄影:宋毅
项目本身作为大型公共服务职能空间,“阳光”、“开放”已经是成为城市公共性空间必要的精神气质和某种隐喻。在B2层至2层的通高空间两侧增设格栅处理中,西侧是考虑遮阳和弱化邻楼体量带来压迫感,东侧是将观察视线压低至建筑围合的竹林莲池水景庭院景观,让昆山古籍《玉山雅集》中所描述的“舍前有修竹,舍后有芙蕖。掇莲置豆,清风座隅。倦来聊掩窗,步出临前除。”的画面完整呈现于预设的框景中。



△ B2层公共资源交易中心 摄影:夏至

△ 公共资源交易中心大厅 摄影:宋毅
同时可以减少地下空间和室外转换时的光比过大产生的“暗适应”生理现象。而格栅形式的本身也是具有东方静谧、秩序气质的地域文化性表达。包括结合室内景观的等候区域选用了具有东方庭院气质的青枫树,在阳光与室外绿地的交融中消除了建筑内外的差异,营造空间中人与自然的亲密和谐氛围。

△ 政务办理等候区 摄影:夏至

△ 政务办理等候区 摄影:宋毅

△ 资源交易大厅等候区 摄影:夏至

△ 资源交易大厅等候区 摄影:宋毅
材料
土建刚开始施工时我们到现场查看,由于项目建筑质量有“鲁班奖”的评审标准要求,现场使用的模板和混凝土浇筑质量都比较高,尤其是在新模板最开始使用时的裙房部分,拆模后的浇筑质量稍加修复基本可以达到清水混凝土的效果。所以我们一边调整了原有设计方案,一边通知现场做了保护。
另外一个因素是项目有美国绿色建筑评估体系LEED-NC金级认证标准,对再利用材料和节能环保有较高的要求。同时从整体方案的地域文化性控制来讲中性灰色调和水墨江南的气质也是吻合的。包括使用的抛光混凝土地坪也都没有使用环氧基,而是采用水泥基。其中当然也有政府对造价控制的严格经济性要求。

△ 电梯厅局部 摄影:夏至

△ 水泥基磨石地坪局部 摄影:宋毅

△ 活动中心前厅 摄影:夏至

△ 活动中心前厅 摄影:宋毅

△ 电梯厅休息洽谈区 摄影:夏至
形式
应该说这是个几年前的“旧剧本”拍的新戏,方案阶段的构思是基于昆山当地的昆石、湖石多孔变化的特征和“窗口”的功能性之间某种暗合的意向关联展开的。



△ 一站式政务服务窗口 摄影:夏至
B2层发光的“玉山”是希望点一下项目所在的地名为玉山镇这个题。一层餐厅局部半围合空间是因为防排烟的变化后增加了一台排烟风机,局部吊顶标高下调了1.2米的应变,形式是湖石的类似荷兰风格派的几何抽象表达。

△ “玉山”局部 摄影:宋毅


△ 餐厅 摄影:夏至

△ 餐厅局部 摄影:夏至
填单区的奶酪墙实际上是视觉去结构化的最小化消隐结果,使用单位要求将N字形的钢结构用封闭墙体形式包裹,设计师则希望用尽可能小的封闭面的透漏关系回应策略。思考应该都是基于不同时间节点的意识反映,如果这个“剧本”是今天写,在设计形式上思考语言应该会有所不同。

△ 构件消隐 摄影:夏至

△ 构件消隐 摄影:宋毅

△ 构件消隐 摄影:宋毅
愿景
如何让城市公民空间与社会、自然发生良性互动,改善人与人之间关系,使更多市民从空间的感知中获得身体与情绪的被尊重,体用合一,既无谄媚亦不孤傲,设计能改变的也许不多,哪怕能有一小点也好。

△ 地下采光楼梯间 摄影:宋毅

△ 公共政策培训室 摄影:宋毅

△ 评标等候区 摄影:夏至

△ 市民听证会议厅局部 摄影:夏至

△ 服务区立面局部 摄影:宋毅
附:该项目荣获美国《室内设计》Best of Year 2020年度最佳公民空间大奖,以及荷兰《Frame》杂志年2020年度政府类公共空间唯一最高奖——评审团大奖。
设计图纸

△ 场地平面图©思域设计

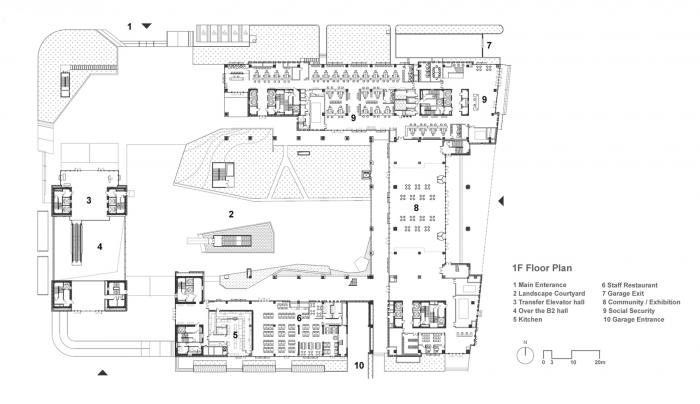
△ 一层A-D栋平面图©思域设计

△ A栋B2层功能分布平面©思域设计

△ A栋4层功能分布平面©思域设计

△ A栋5层功能分布平面©思域设计

△ A栋6层功能分布平面©思域设计
项目信息
项目名称:昆山市政务服务中心
项目地点:昆山市前进西路
建筑面积:102000平方米
建设单位:昆山城市建设投资发展集团有限公司
室内设计:上海思域室内设计有限公司
联系邮箱:[email protected]
设计主持:宋毅
设计人员:王南钢、班亚娇、靳力、庄子冲、李芸、葛丽丽、凌晨、张欢、董国伟、江波
项目管理:李慰杰、李子林、陆中、费一鸣、黄彩虹、黄军涛
绿色认证:美国绿色建筑委员会LEED-NC金级
设计时间:2012.8 – 2014.10
竣工时间:2018.11
摄影:夏至、宋毅

BIM建筑网





评论前必须登录!
注册