

Maréchal Fayolle公寓集群位于巴黎第16区。与传统的公共房屋不同的是,建筑群由四个不规则形状的“流体”白色塔楼组成,提供了一百余套社会住房公寓。五层楼高的建筑群与周围环境柔和地融为一体,与周边社区形成和谐的邻里关系。


四栋公寓从地面上以纯白的细柱架空,在改善低层用户视野的同时也最大程度地提升了公寓的安全性。架空的一楼设有自行车存放区及通往高层的楼梯,入口采用简约的混凝土和金属网围合而成。SANAA以设计流体公寓综合体的方式,匹配周边现存建筑的体量及规模,以从容地融入社区。





建筑的窗户散落在立面上,为流线型外观增添了现代气息。公寓内部采用了耐用的油毡地板和略微弯曲的墙壁,房内布局从单间公寓到四房公寓不等,可满足不同类型的使用者。除此之外,建筑之间的绿化使社区与临街的公园连贯起来,为公寓居民营造了室外活动的场所。


本项目由SANAA与本地公司Extra Muros合作进行建筑与景观设计,为‘巴黎人居计划’的一部分。巴黎人居管理着巴黎及周边地区的12.4万套社会住房。根据法律规定,到2025年,25%的住房必须是社会住房,市长安妮·伊达尔戈(Anne Hidalgo)宣布,到2030年,巴黎的住房数量将增加到30%。




项目图纸

▲ 一层平面图

▲ 标准层平面图

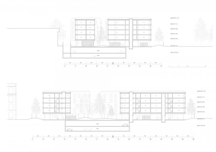
▲ 立面图

▲ 剖面图

▲ 剖面细节
项目信息
项目类型:社会住房
项目地点:巴黎,法国
建筑设计:SANAA
面积:2127.0m²
项目年份:2018
主创建筑师:妹岛和世,西泽立卫
设计团队:Yoshitaka Tanase, Lucy Styles, Louis-Antoine Grego, Johanna Meyer-Grohbrugge, Hiroaki Katagiri, Nobuhiro Kitazawa, Takashi Suo, Guillaume Baron, Riccardo Cannatà, Margot Aurensan
委托方:Paris Habitat
本地建筑师:Extra Muros, Michel Levi, Antoine Saubot
结构设计:SAPS/Sasaki & Partners, Mutsuro Sasaki, Yoshiyuki Hiraiwa, Ayumi Isozaki, Hideaki Hamada
结构工程师:Bollinger & Grohmann Ingenieure
机械工程师:BETOM Ingénierie
环境顾问:EDEIS
预算顾问:Bureau Michel Forgue
景观设计:Extra Muros + SANAA

BIM建筑网





评论前必须登录!
注册