
一个好的居住社区,不应该仅仅满足功能性需求,而应该“以人为本”,不仅在身体上令人感觉完满,也应该在心理上使人感到充实。
人,对于建筑物的需求是什么?自工业革命以来,建筑的物质性被夸大,房屋宛如“居住的机器”。原本以人为核心的设计过程被工业化所扭曲。虽然现代社会物质极大地丰富,但是人们的精神需求却常常被忽略。世界卫生组织提出的“健康”概念中说到:“健康乃是一种在身体上,心理上和社会上的完满状态,而不仅仅是没有疾病和虚弱的状态。”

而这个理念,正是鲁能泰山9号全龄健康社区设计的基础。由此发展而来的“健康、养生”主题贯穿整个项目设计过程。从规划布局到户内空间,从环境氛围到立面风格,从身心状态到社会关系,项目设计的各个方面致力于打造一个融合绿色生态与健康生活的乌托邦。

本项目位于苏州市相城区阳澄湖镇。“上有天堂,下有苏杭”,丰富的自然与人文资源为项目理念的贯彻提供了充分的保障。阳澄湖片区定位为旅游度假区,南部紧邻高铁新城,在享受稀缺自然资源的同时,也能与繁华的城市紧密相连。项目用地紧邻盛泽湖岸,巨大的湾区纵深、漫长的湖岸线与良好的水质条件保证了滨水空间的品质。

健康空间——空间体验
社区会所设计方案整体简洁完整,屋顶挺拔有力一气呵成。在横向构图的基础上,以折板的造型方式将屋顶与墙面连为一体,仿佛从地面生长起来一般。建筑入口处,简明大气,内凹含蓄,在这里建筑与景观相得益彰,尽显尊贵奢华。


社区印象:酒店式落客区
社区会所同时担负了“健康家”的展示功能和住区的入口功能。独特的交通流线设计将会所打造成酒店式的落客岛,形成了景观序列上一个重要的节点,提升住户的入户体验。会所立面采用了新中式的设计风格,飘逸的折板造型点缀上青砖与格栅的细节,将建筑物的时代印记和健康社区的轻松的健康气质完美融合。


立面印象:轻松明快的新中式
立面的设计上我们提炼中式建筑语言和意境,用现代材料和技术打造立面层次丰富、空间变化的新中式风格。整体与健康社区、养生气质高度符合的立面风格,构图轻快、色彩明亮。暖色系石材完美诠释品质与气质,片墙加上轻巧优美的坡屋顶,形成轻松明快的细部质感,演绎新时代的中式韵味,格栅等细节的植入为健康生活提升格调。


健康配套——精神体验
在历史悠久的江南古镇中,令我们惊叹的不止是居住空间与自然的和谐关系,还有公共建筑在整体环境中所带动的氛围。在项目设计中,公共建筑同时也起到画龙点睛的作用,配合公共空间创造更加健康的生活方式。
泰山书院:心之归宿
在古代,书院不仅仅具有读书的作用,它更像是一个山林中的隐居之所——让人在独特的环境氛围中进行哲学思考。项目设计中,泰山书院承托了古代书院“哲思与交友”的作用,正所谓“谈笑有鸿儒,往来无白丁”,包括图书阅览,生活知识课程,手工研习班等等功能在促进业主交流的同时,也在潜移默化地改变着每个人的精神状态。




养生会所:健康之道
近些年来,亚健康的危害不断被挖掘,也成了现代人类心中共同的痛。因此,社区中配备了健身会所和健康管理中心,健康会所的设计与适宜的社区自然环境相辅相成,为住户的健康生活提供保障。

后记
在设计结束后,设计团队不断的自我拷问,作为设计者,我们需要为使用者的健康生活负责任吗?答案是肯定的。
“以人为本”并不是一句流于表面的空话,而是设计者的初心。不忘初心,将住区设计与住户的切身生活体验相结合,在满足规划指标的同时为业主创造更加健康的生活环境,应该是每一个设计者所重点关注的。
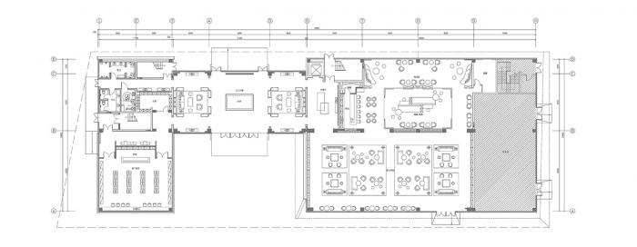
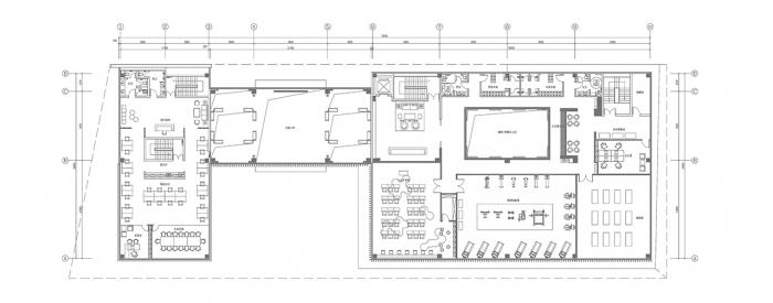
项目图纸

▲ 一层平面图

▲ 二层平面图
项目信息
项目地点:苏州相城区阳澄湖镇
开发商:苏州鲁能广宇置地有限公司
建筑设计:柏涛建筑设计(深圳)有限公司
设计团队:王漓峰、韦键光、朱维吉、吴超、李岑、黄旭、阳素梅、郜大宁、胡俊雄、林鹏禹、熊胜洋、罗靖亚
设计部门:设计四部
摄影:张学涛
建筑面积:3010㎡
时间:2017.2 – 2018.12
材质:深灰色铝板,木质格栅,玻璃

BIM建筑网





评论前必须登录!
注册