


这个项目的客户想要一个精致的度假屋,并与他的家人和朋友共度恬静的周末时光。于是他很快就购下一块在市区边界的地来建此项目,而这块地也能从我们刚为他设计好的顶层公寓很轻易地抵达。该项目与自然、植被和土地等元素相呼应。客户也非常高兴能利用当地的工匠和材料来进行设计。



基地与一条连接Vadodara和Dabhoi的区域铁路线共享一面复合墙,而墙面现在也延伸到Unity雕像处。该项目位于Gujarat地区炎热干燥的气候,因此在设计中,遮蔽、避免阳光直射到玻璃和垂直表面,让风穿过场地,使用天然的和当地的材料,让各种器械正常工作,结合当地的艺术和工艺等设计思路便成为一种自然的流露。


印度次大陆的季节和天气条件的明显转换,室内外的连接、庭院或阳台作为整体生活空间的使用等是建筑师设计时需要考虑的若干种种因素。项目采用了传统建筑结构的细节,并加入了一个新概念,即在一个方向(比如x方向)使用承重墙,在y方向使用地梁连接,这种方式大量节省了材料、成本和时间。




该项目采用多层式屋顶,没有混凝土结构,这样的方式使得隔热效果更好。令人惊讶的是,它在任何季节中都更节省成本,资源和对结构产生的不必要的负荷。而植被的微妙使用也对声音、触觉、味觉和嗅觉起着重要影响,而这一方面在很大程度上一直被笼统认为单单只是一个视觉领域。通过可持续的绿色设计方法,我们把客户的夙愿成功带到入到时间的记忆中。




建筑夜景





项目图纸

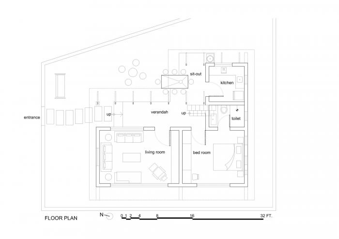
▲ 平面图

▲ 南立面图

▲ 北立面图

▲ 东立面图

▲ 西立面图

▲ 剖面图AA

▲ 剖面图BB
项目信息
项目类型:独立住宅
项目地点:PALASWADA,印度
建筑事务所:Tushar Parikh and Associates
面积:950.0ft²
项目年份:2016
摄影师:Cross Clicks
厂家:Assam Cane Furniture, Swastik Marbles, ROCKWOOL, Harmony Arts, Baroda Home Appliance, Tata Steel, Fabindia, Shri Rang Horticultural Services, Jaquar, MAA Bricks, Havells Fan, Screen Art, Real Timber
主创建筑师:Tushar Parikh
结构顾问:Deepak Ambekar, Ambekar Associates
场地工程师:Shailesh Mistry, ‘The backbone of the project’
景观设计:Kishor Ajmeri, Shri Rang Horticultural Services
管道顾问:Budhabhai Rajput

BIM建筑网





评论前必须登录!
注册