

Navakitel设计酒店位于泰国南部最古老的城市之一那空是贪玛叻(Nakhon Si Thammarat)的核心位置,被商店和住宅所包围。这家酒店包括68个住宿单元,位于一楼的大堂和位于三楼,以及用于组织酒店活动的开放式露台。

项目最初的目的是设计一座钢筋混凝土结构的公寓。为了将项目的功能从公寓转换为酒店,建筑师决定保留已有的建筑平面图,此时建筑已经建造到了第二层。从结构图上看,房间的类型是按照房间大小来归类的,每个楼层具有相似的房间类型。


建筑师为这栋7层高的混凝土建筑选择了薄而锋利的钢板,以此来减少建筑的厚度。项目通过使用结实的钢板和可延展的金属来创造体量,同时模糊建筑物的坚固性。这种方法还可以使自然光穿透建筑物。




在该项目中,建筑师还精心地设计了通常被忽略的建筑系统。在咨询了电气工程师后,建筑师将建筑系统与照明装饰以及室内空间中的其他设备,包括客房,大堂和走廊,全部集合在一起考虑。建筑系统不再被石膏天花板隐藏起来,而是部分被暴露了出来,建筑师和工程师的合作成果反而在后来成为了该项目建筑美学的一部分。








Navakitel设计酒店充分利用了当地的工艺,包括铁匠、木匠与泥瓦匠的技艺,将其应用在建筑与室内设计之中,通过酒店设计展现了那空是贪玛叻的本土特色。





项目图纸

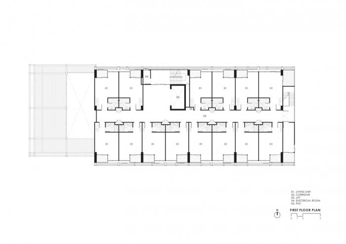
▲ 一层平面图

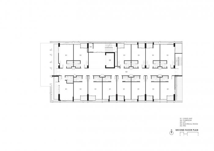
▲二层平面图

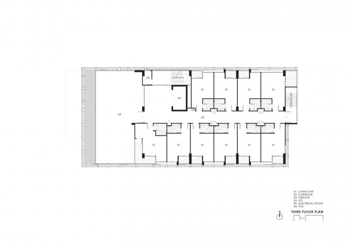
▲三层平面图

▲四层平面图

▲屋顶平面图

▲南立面图

▲西立面图

▲剖面图A

▲剖面图B

▲家具分析

▲一层休息平台效果图
项目信息
项目类型:酒店
项目地点:泰国
建筑设计:Junsekino Architect and Design
面积:3900.0m²
项目年份:2019
摄影师:Spaceshift Studio
厂家:Floorament, Siam Yamato, American Standard, MDC, Scenescape, L-Thai, CASA ROCCA, Lamptitude
主创建筑师:Junsekino Architect and Design
室内设计:Junsekino Interior Design
客户:Suchada Navakitpaitoon

BIM建筑网





评论前必须登录!
注册