
▲ 场地鸟瞰
Cafe Infinity学生中心坐落于大诺伊达ITS牙科学院内(Greater Noida),旨在为学生、教职工和前来就诊的市民提供一处休闲娱乐的场所。建筑师以设计一个可持续性的建筑结构为目标,来挑战传统的建筑建造思维,并试图突破既有的设计和建筑形态定式。回收的运输集装箱,作为主要的可持续建造材料,凭借其优异的模块化特性和经济上的可行性成为了本次设计的核心焦点。建筑师不光在学生中心的外形设计上下了不小的功夫,其还通过该中心的设计,试图去打破既有场地的僵硬格局。而在学生中心的室内设计上,建筑师则尽可能地将其保持中性,不和外在的显著特征和工业特质产生过多的冲突。

▲ 景观鸟瞰
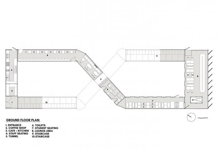
建筑师在这个学生中心的前部设计了两个咖啡促销点,还设计了两座楼梯来作为室外的休憩大台阶和前往屋顶平台的通道。同时,建筑师还将包括厕所在内的基础服务设施设置在了中央的集装箱里,还利用剩余的空间配备了教职工的休憩座椅和来访者的休息区。建筑师将座椅的朝向设置为面对庭院,以提供观赏内部庭院的最佳视角。此外,这个中央的内部庭院,还可以为所在的学院提供各类体育运动和文娱活动的举办场所。

▲ 鸟瞰图

▲ 正立面

▲ 楼梯

▲ 楼梯外部

▲ 庭院
新设计的有机景观平面对场地原有的僵硬格局以及集装箱的硬朗线条产生了一定程度上的活化,并为学生中心提供了一条富有动感的流线。而大型露台楼梯更是将刚性的集装箱建筑与外部的景观融为一体。总的来说,学生中心的外部景观,在平衡集装箱建筑浓厚工业感的同时,还为各种活动的举办提供了丰富的空间与场所,从而使这个场地充满了生命与活力。

▲ 建筑侧后方
建筑师对所选择的集装箱箱体进行了充分的处理,以防止其日后的生锈和各种工业方面的问题。无论是在学习中心的服务还是功能方面的考虑,建筑师都时刻关注于其可持续性能方面的表现。建筑师使用了50 毫米的岩棉隔热材料搭配石膏板来应对建筑的被动冷却和隔热问题。同时,建筑师还在屋顶平台的地板设计上选择了纤维水泥板,并给空间搭配了机械冷却系统和有色玻璃,旨在使学习中心可以完美地应对基地的极端气候条件。此外,建筑师还在朝南一侧的立面上采用了百叶窗的设计,以在最大程度减少空间热吸收的同时,提供良好的公共私密性和观景视野。

▲ 百叶窗

▲ 被动降温技术

▲ 机械降温技术
而这个学习中心之所以被命名为Cafe Infinity,是希望借此去强调集装箱搭建,以及其不受限于场地和建筑类型的无限可能。这样的一种灵活、模块化且可持续的建造方式,使得集装箱建筑成为了现有钢筋水泥混凝土建筑结构的一大替代品。其不光可以降低现有的二氧化碳排放量,同时还可以成为一个经济生态可持续的理想应对方案。

▲ “∞”符号的由来
内部空间






项目图纸
▲ 总平面图

▲ 景观平面图

▲ 一层平面图

▲ 二层平面图

▲ 屋顶平面图

▲ 立面图和背立面图

▲ 侧立面图

▲ 局部剖面

▲ 形体生成
项目信息
项目类型:咖啡馆
建筑师:RJDL
面积:约267.5平方米
项目年份:2019
摄影师:Rahul Jain
厂家:Saint-Gobain, Asian Paints, Parryware
主创建筑师:Rahul Jain
项目团队:RJDL
业主:ITS College,Greater Noida
景观设计:MAP Consultants

BIM建筑网





评论前必须登录!
注册