

坐落在首尔江南区中心的树屋拥有72个住房单元,它是一个共同生活的综合体。大楼内的微型工作室和微型电梯都是为单身专业人士和他们的宠物专门设计的。树屋的中央是一个室内花园,这里还有公共工作空间、休息厅、公用厨房、洗衣室以及宠物洗澡间。






▲ 剖透视图
花园的上方是六层楼的居住区。每一层都有不同的单元样式,如处在开放式浴缸上的阁楼卧室公寓、具备猫砂梯子的公寓、适合情侣居住的顶层大空间。最主要的建筑细节则体现在和房间一样宽的倾斜窗户上,从下往上升起的百叶窗在保护隐私的同时也能让人看到外面的天空。




细节还有能形成储藏空间的双层移门、便于个性化的正面磁性墙面和模块化的储物柜以及在阁楼单元内增加额外通向中庭的通风窗口来增加室内通风。该项目的美感在于它如何在空间构成上反映了公共的生活方式。中庭既是住房楼的空间中心,同时也是构成空间的私人单元的堆积。



社区没有办法脱离个体存在,个体又通过社区来固定。住户们能够从两个角度看到中间的花园,分别是在底层的入口和进入单元之后。社区并非是一个强制的概念,它是在潜移默化中形成。每一个带有独立卫浴和厨房的单元都是为一个个体设计的,住户们只有在使用更大型适合公共体验的设施才共享空间。






项目图纸

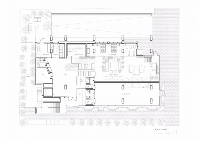
▲ 一层平面图

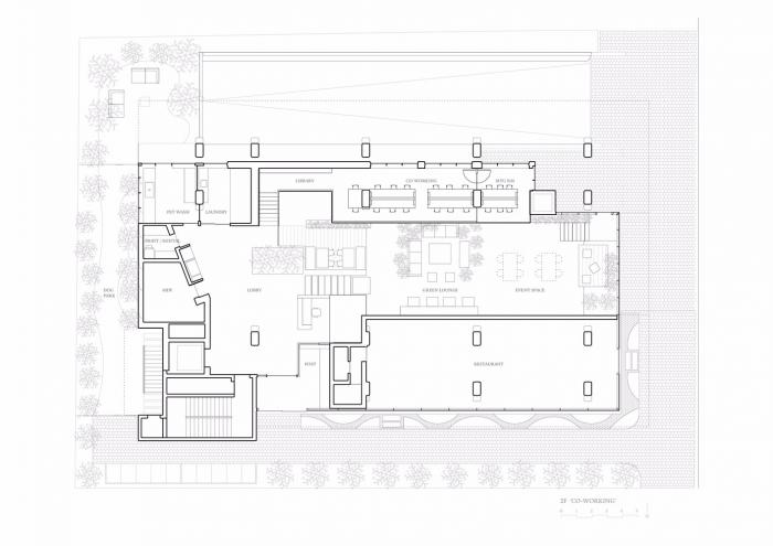
▲ 二层平面图

▲ 三层平面图

▲ 四层平面图

▲ 五层平面图

▲ 六层平面图

▲ 七层平面图

▲ 八层平面图

▲ 屋顶平面图

▲ 东立面图

▲ 西立面图

▲ 南立面图

▲ 北立面图

▲ 剖面图1

▲ 剖面图2
项目信息
项目类型:公寓,公寓室内
项目地点:GANGNAM-GU,韩国
建筑设计:Bo-DAA
面积:4810.0m²
项目年份:2018
摄影师:Rohspace
厂家:Marmoleum
主创建筑师:Melody Song, Xinyi Wang, Dionysus Cho
设计团队:Xiao Wu, Hayeon Kim, Nam Yong Kim
客户:Kolon Global Common Life
顾问:Kolon Global, Hanki Engineering and Architecture, Kidea Partners

BIM建筑网





评论前必须登录!
注册