
▲ 西北鸟瞰

▲ 顶部鸟瞰
项目位于华北平原和黄土高原的边界——太行山脉东部的东太行景区,依托当地独特壮观的红砂岩山脉景观。景区特色在于几乎全部路线均为悬崖高处的空中栈道,在此高度上穿行于奇峰怪石之间,是一种全新的视觉体验。

▲ 东北鸟瞰

▲ 东南鸟瞰
本项目是栈道线路上的主要餐饮服务点,坐落在一处陡峭山崖之上,俯瞰苍茫群山,落差近两百米,险峻异常。

▲ 西北侧立面

▲ 正立面
设计首先考虑的是对景区影响,因为用地非常醒目。最初的意向是在壮丽的群山中雄踞于悬崖之上的苍鹰——既是观察者,也是点睛之笔。考虑到景区建设的索道、玻璃栈道等主要设施的风格均为现代主义甚至工业风格,景区也并非自然或风貌保护区,因而没有选取传统建筑形式,而是结合景区调性和用地特征,选择了现代风格的飞行器意向,以工业美学呼应雄壮的北方山岳和厚重的红砂岩,形成人工和自然的对比,与山下的索道下站遥相呼应。

▲ 山坡上西望夜景

▲ 西南鸟瞰夜景
项目平面为长十字形,以适应山崖形状并强调景观朝向。双坡屋面经过切削,中部隆起,在悬崖之上蓄势待发。正脊实为半通透的金属格栅,以隐藏下部平整的天窗,也柔化了建筑轮廓,如同鱼鳍。

▲ 屋顶

▲ 东北透视
建筑主体为钢结构,以钛锌板金属屋面和夹板玻璃幕墙围合,屋面内侧和室内用实木以平衡外部金属和玻璃的冷感。

▲ 北侧逆光

▲ 屋顶细节

▲ 北侧檐下

▲ 西侧大厅

▲ 二层大厅东望

▲ 结构分解图

▲ 东北夜景

▲ 入口门厅夜景

▲ 北侧咖啡厅

▲ 一层大厅楼梯
山顶的建筑施工非常困难,不但大型机械无法上山,大尺寸材料也无法运送,只能选择较小尺寸的玻璃和钢材,以货索运输。即便如此,玻璃的损坏率也非常惊人。场地开挖和基础处理非常复杂,地下室设计完全是根据开挖后的实际情况做了全新设计。

▲ 施工中的室内
虽然采用了现代建筑语言,但项目的选址和意象却基于传统的中国山水美学。如宗白华所言:“中国人爱在山水中设置空亭一所……群山郁苍,群森荟蔚,宁亭翼然,吐纳云气。”这正是本项目的根本立意。

▲ 南立面
项目图纸

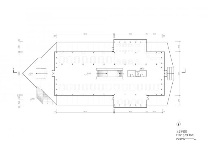
▲ 一层平面图

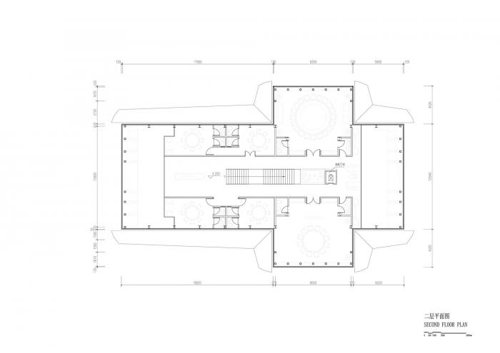
▲ 二层平面图

▲ 地下一层平面图

▲ 屋顶平面图

▲ 西立面图

▲ 北立面图

▲ 剖面图
项目信息
项目类型:餐厅
项目地点:邯郸,中国
建筑设计:北京天地都市建筑设计
面积:1227.0m²
项目年份:2018
厂家:法国VMZINC
主创建筑师:袁牧
施工图设计:中国建筑科学研究院
室内设计:河南林建装饰工程有限公司 姜大伟,高瞻,吕胜斌
装配式全过程工程咨询:北京中技金谷集成房屋科技有限公司
施工方:河北允正建筑有限公司
业主:武安市东太行旅游开发有限公司
摄影师:肖凯雄

BIM建筑网





评论前必须登录!
注册