引言
“越名教而任自然”的江南,以超越功利的审美气质与诗性精神,那独特的精细坚韧、柔美温婉的审美气质,蕴含和催生了历代文人、工匠的无穷想象力和创造潜能。


江南文化的气质和北方中原的伦理文化比较就更容易显现出来,江南文化体现在人的感性审美,现实诉求与清丽秀美的自然环境的和谐统一。

本案设计过程中重新思考江南文化乃至中国传统美学在现代生活场景的切入。不仅仅在形制上寻找传统文化的碎片,更是出于对现代性的内在需要,承历史的积淀演化,并揉入时代的情愫,演绎现代的江南文化气质。
创作过程
本项目的设计中,重新提取江南文化气质,通过解构与重组的手法体现苏州的地域文化传承。在地块区域内,合零为整,将建筑所有功能体块围合成一个内向性的庭院空间。表现中国传统建筑的庭院文化。


▲ 概念生成

在其造型设计上将建筑的一角压弯至水面,与周围的景观混为一体。表现了天地合一这中国传统文化。使整个建筑的风姿轻盈淡雅。



▲ 屋顶分析图
面向开放空间的立面设计上采用通透的落地玻璃,以及比较密集且进深比较大的幕墙立柱,希望表现传统的木格栅形式,同时室内空间和周围开放空间达到内外一体化的效果。


站在内院环视四周屋檐,青石板瓦屋顶高低起伏,天只有一长条,一种与世外隔绝的寂静弥漫其中。

材料与节点
外墙屋顶采用南方常见青石板材料作为屋面材料使用,表现江南地区灰瓦的建筑语言形式的同时,天然肌理的古朴大方与轻盈剔透的玻璃幕墙形成对比,不锈钢立柱形成主立面的秩序。


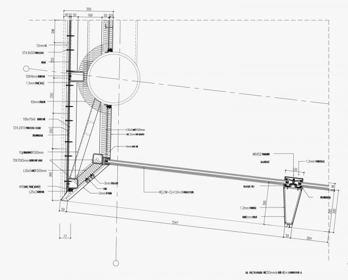
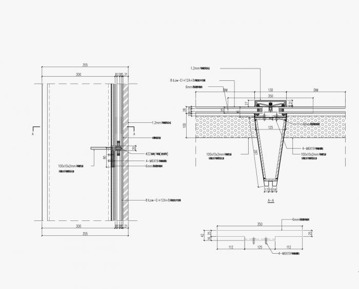
▲ 节点图
为了降低造价,对主立面的玻璃进行切分,对分缝的位置做了仔细推敲,并在分缝的位置增加不锈钢穿孔板薄片,使得立面更精致、丰富。


▲ 玻璃分割示意图
为了使主立面的不锈钢立柱看起来更纤细,不锈钢立柱采用梯形截面。最外侧宽度只有5cm,并且在5cm的平面上又做了凹槽处理,让立柱看起来更薄更精致。

精致的节点,素雅明净的色调,倒映在水中,柔和幽静。干净利落的线条将建筑的轻灵的体态展现的淋漓尽致。

室内空间
建筑的外立面采用超白玻,巨大而通透。白天,内部空间融在阳光下建筑里,黄昏,内部灯光亮起,生动柔美的的内部空间逐渐从外立面显现。




内部硬朗的工业金属板面与柔美的曲线相结合,各种水纹形态的引入,让人感觉到水乡江南的风情。在传承江南美学的同时,通过运用新的材料,新的技法重新阐述江南文化气质,使空间蕴含更深层的东方禅意。

项目图纸

▲总平面图

▲一层平面图

▲南立面图

▲西立面图
▲节点图1

▲节点图2

▲节点图3

▲节点图4

▲节点图5

▲分析图
项目信息
项目名称:苏州天鹅港·华庭
项目位置:苏州太湖新城挹紫街(地铁苏州湾北站)
业主单位:富力集团 合景泰富
建筑设计:上海日清建筑设计有限公司
设计总负责:宋照青 金光贤
设计团队:尚玉乐 张翼 琚轶聪 刘晓燕
业主设计团队:杨晔 陈强 胡云 嵇清 聂海明 冯家生 张思琛
建筑施工图设计:启迪设计
幕墙设计:嘉威幕墙设计
幕墙设计团队:桂祖宝 盛安琪 王祎博
室内设计:WJID 维几设计
景观设计:上海问道景观设计
建筑面积:1200m²
设计时间:2018.12
竣工时间:2019.09
建筑摄影:是然建筑摄影 Schran Images & 裴浩

BIM建筑网





评论前必须登录!
注册