

当一对年轻夫妇登门委托我们在他们即将永久居住的地方设计建造一栋住宅时,我知道我拥有一个继续开展祖先流传而来的当代建筑研究的巨大机会。在那一刻,我决定专门花费时间去阐释他们的梦想,以创造一个“生活的容器”。

当我第一次勘察场地看到场地上有一座该夫妇与其两个孩子居住的老房子时,我对于独特住宅的构想就确定了。然后我们的任务就是拆除原有材料但是保持其精神,用“永久住宅”取代老建筑。
设计隐喻是:我们想象在场地上发现一块祖先留下的巨大的岩石,尚待被雕刻以容纳生活空间。



这座“黑色的雕刻岩石”将包括位于地下层的拥有四个车位的车库、服务庭院、保姆房和游泳浴池;位于一层的厨房、餐厅和生活空间等。空间的雕琢将会生成有趣的带有强烈纹理的“内置”家具,以与其他的自然和人工材料相协调,使这块带有寓意的岩石保持尽可能自然的状态,最终成为业主心目中的花园的一部分。









为了完成这项作品,黑色的石头基座支撑着四个拥有私密空间的悬挑体量,因为业主追求“漂浮的白色石头”住宅。



项目图纸

▲ 地下一层平面图

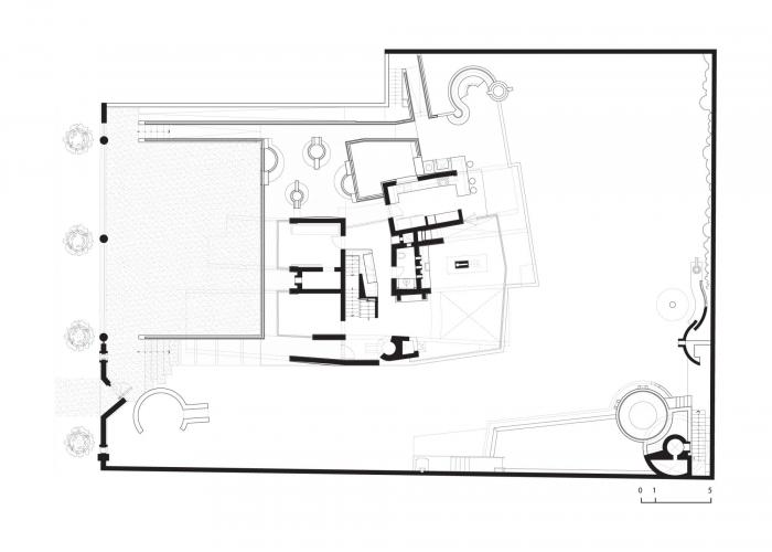
▲一层平面图

▲二层平面图

▲立面图

▲剖面图1

▲剖面图2

▲剖面图3

▲剖面图4
项目信息
项目类型:独立住宅
项目地点:利马,秘鲁
建筑设计:Longhi Architects
面积:550.0m²
项目年份:2013
施工方:Arch. Hector Suasnabar
监理:Longhi Arquitectos
摄影师:Juan Solano
微信公众号:xuebim
关注建筑行业BIM发展、研究建筑新技术,汇集建筑前沿信息!
← 微信扫一扫,关注我们+

BIM建筑网





评论前必须登录!
注册