

这栋房子被设想为一座坚固的庇护所,一处家中的孩子茁壮成长的避风港。它拥有大面积的阴影区以抵御该地区酷热的阳光,同时,房子拥有宽敞的开口以增强与景观的紧密联系,使家成为瞭望城市轮廓并勾勒周围景观构图的视觉装置,使景观融入房子,将一切都沐浴在金色的自然光里。



该项目从2012末、2013年初开始实施,但是却只能在2018和2019年建造。它位于圣保罗州的内陆城市巴雷托斯南部的一个农场里,处在城镇和乡村的交界处。在项目从实施到建造的几年里,周围发生了巨大的变化,一部分土地被用于建设通往新房子的道路。然而保留原始项目以应对新的现场情况是有可能的。

设计的起点是一块方形的广场——一个聚会和游乐的场地,作为乡村景观里的城市策略,它被用以定义空间的秩序,并作为新房子与场地上的原有建筑、游泳池之间的纽带。新房子的空间是线性组织的,面朝广场:一侧是四间卧室,另一侧是多功能空间,而在中间则是家庭的重要场所——起居室、餐厅和厨房,被高大的天花和与外部的视觉联系层次化地突显出来,面向场地外部,将广场与周围的道路统一起来。








为了控制房子内部的温度,设置了一个高高的提供永久通风的屋顶,双层天花板减少了屋顶瓦片与房间的热量转换。因此,建造用来观赏日落、树梢和城市天际线的露台是可行的,它由清水砖打造的液压体块上方的屋顶花园调节,面向平面的前方以捕捉更多的光线。






有着确定可控的来源的柱子和经过处理的大量的加拉帕木梁结构使得建造合理化,并收益于巨大的支撑屋檐的保护。结构很快被搭建起来,它允许屋顶的即时安装固定以保护施工中的工人。建筑的结构与圣保罗乡村木质支撑结构的建筑传统并不相斥,本地的建筑传统受黄金周期结束以后米纳斯吉拉斯州(Minas Gerais State)人迁入的影响。


砖墙的镂空图案充分利用了工人的技能和材料的可能性,成为内部天井的视觉过滤器。


最后,由建筑师设计的一组陶瓷装潢艺术品被放置在客厅的显著位置。它展示了巴西艺术学科关系中的传统,同时致敬了奥斯卡·尼梅耶设计的伊塔马拉提宫。


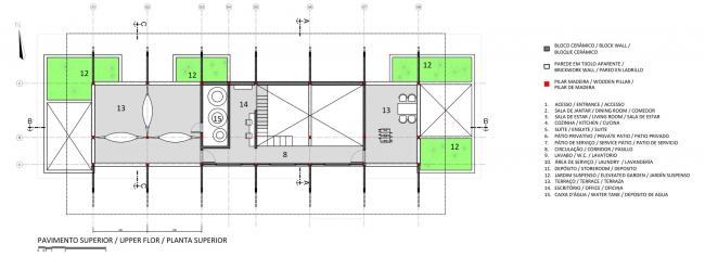
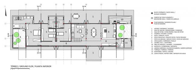
项目图纸

▲ 平面图

▲ 平面图

▲ 剖面图A-A

▲ 剖面图B-B

▲ 剖面图C-C
项目信息
项目类型:独立住宅
项目地址:巴西
建筑设计:Corato Arquitetura
面积:540.0m2
项目年份:2019
摄影师:Favaro Jr.
制造商:Trimble Navigation, Adobe Systems Incorporated, Autodesk
主创建筑师:Aline Coelho Sanches, Lucas Corato
合作者:Laylah Raeder, Vanessa Damasceno
项目执行:Corato Arquitetura & Design
工程:Fernando Machado – Ipê-Amarelo Arquitetura e Engenharia

BIM建筑网





评论前必须登录!
注册