位于瑞士洛桑的新使徒教堂扩建在设计上汲取了现有建筑的内在品质。我们认为设计必须遵从清晰的对角线,因为这可以支撑它的空间组织和流线,也成为它明确的特征。
在设想当中,我们在寻求某种方式,使新建筑能够纪念和保留现有的空间概念,同时增加具有当代感的亮度和开放性。扩建与现有结构的更新联系起来,以结合老建筑的品质和前瞻性的愿景。



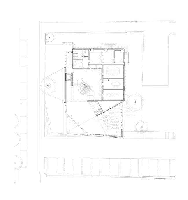
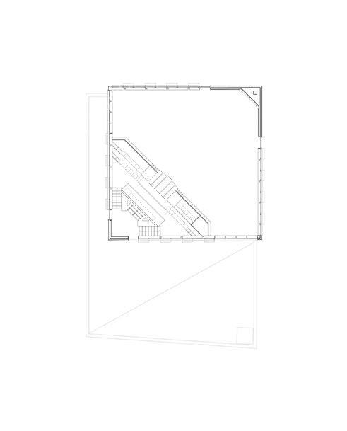
位于一层的现有的门厅被保留和扩大。为了保存现有建筑的空间精神,保留主要流线以及建筑角落的楼梯间就显得尤为重要;这些楼梯间被修复,并安装上了更轻盈、更透明的扶手。新的入口被设置在西南角。宽敞的新门厅给人清晰的视野,可以看到各种活动的发生,迎接社区的人们来到一个对外开放的活跃空间。





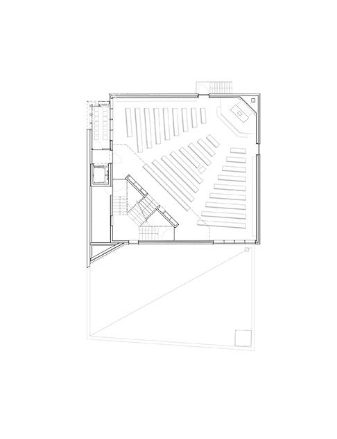
建筑的新形式包含了从教堂的角落向外扩建的两翼,将一层的门厅向着新入口的方向扩大。其中一片三角形的侧翼合并了现有的电梯,并且与另一个侧翼的端头相连,形成新的多功能大厅。这个位于角落的交汇点,在教堂前面创造了一个屋顶覆盖的广场,新的入口也被设置在那里。教堂看起来像被翅膀高高举起,而翅膀形成了开孔,迎接来访者。这幅建筑图景象征性地表现出开放和飞行,连接了大地与天堂。

外立面被重新设计,以满足当下实施的新能源效率标准,同时向建筑的使用者提供最佳的热舒适度。旧的立面已经被外露的混凝土结构取代,带有轻盈的颜色和材质:建筑表现出简单直接的材料性,以体现强烈的个性特点。


项目信息

▲ 平面图

▲ 平面图

▲ 平面图

▲ 立面图

▲ 剖面图
项目信息
项目类型:教堂
项目地址:洛桑,瑞士
建筑师:LOCALARCHITECTURE
面积:624.0m2
项目年份:2019
摄影师:Matthieu Gafsou
厂家:Tschopp-Zwissig
施工管理:LOCALARCHITECTURE
结构工程师:INGPHI SA
能源工程师:Effin’art
灯光设计:Etienne Gillabert

BIM建筑网





评论前必须登录!
注册