在雷泽克内有一个古老的传说,国王的女儿罗兹仍然生活在雷泽克内城堡之下,等待着那个把她带到这个世界的人……而一个巫师却将土高高地堆砌起来。为了让每个雷泽克内的孩子成长为高大、智慧和特别的人,这里留下了一片自由的空间。巫师将一支铅笔插入大地。少年们来到此地,爬上那里,展示自我,并向人们炫耀他们的才能。让里加有识之士敬佩 !
项目的概念来自于为雷泽克内城堡丘地旁的一片地块进行的建筑竞赛的提案,旨在为雷泽克内市的儿童和青年创造一个创新的、有活力的环境,吸引年轻的毕业生们毕业后回到雷泽克内工作和生活。为小城镇的发展增添一股新鲜的血液,注满全新的动力。

▲ 效果图
空间体量根据雷泽克内堡丘地的高低地形产生扭转。项目坐落在一块梯地上,视野开阔,能眺望到城堡丘地和教堂。"铅笔"插入绿地中,成为了现存苏联时期建筑的前景。

作为小镇边缘的一个戏剧性的景观,其对面是一座中世纪古城堡与现存的废墟,已成为该市的主要旅游景点。地块本身的特点决定了建筑应该深入地下,使第五立面——几何三角绿色屋顶——成为项目的主要特征。整个建筑是一个面层抹灰的裸露混凝土构造。




尽管如此,大部分的房间都是长方形设计。引人注目的混凝土天花和各种几何形状的天窗戏剧性地创造出难以想象的多样性和独特的空间感。

▲ 平面图


屋顶的形状不仅创造一种安全感,并且能保护儿童。同时允许充足的的自然光线尽可能地流入所有的房间、大厅和走廊,从外面看它在黑暗中闪耀着神秘。一楼的天井地面把光带入位于建筑深处的活动室。

项目的地面景观分混凝土和绿化层两方面组成,在每一个细节仍运用与屋顶产生令人惊叹的雕塑感与艺术感的相同的几何原则。新的结构成为了现有的戏剧性景观的有机组成部分,还迎合了当地的传说,扩展了最受欢迎的富于想象力的童话故事的元素。它是当代设计汲取周围环境灵感,从当地的精神和传统建筑出发为孩子提供一个温暖和友好的新环境的典范。尽管项目占地 6000 m2,却使人感觉温馨如家,一如市中心的小型历史建筑。





项目图纸

▲ 总平面图

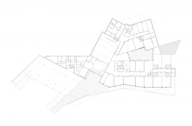
▲ 平面图

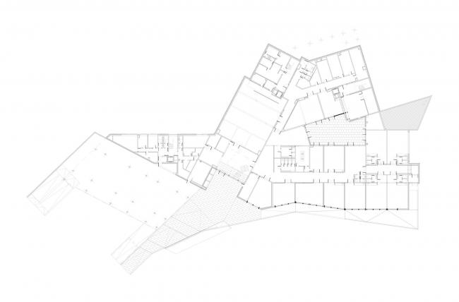
▲ 平面图

▲ 平面图

▲ 平面图

▲ 平面图

▲ 平面图

▲ 平面图

▲ 平面图

▲ 平面图

▲ 平面图

▲ 剖面图

▲ 剖面图
项目信息
项目类型:青年活动中心,文化中心
项目地址:RĒZEKNE,拉脱维亚
建筑师:SAALS Architecture
面积:4400.0m2
项目年份:2014
摄影师:Jevgenij Nikitin, Janis Mickevics, Ingus Bajars
项目负责建筑师:Rasa Kalnina, Maris Krumins
设计团队:Ansis Auzins
建造咨询:Maris Igavens
室内建造咨询:Arturs Igovens
室内设计师:Vita Skapare
技术设计:Ilze Geca, Martins Reinbergs, Vineta Strauta
土木工程:IG-KURBADS, Renars Felcs, Lauris Tirans, Normunds Tirans
工程:INNA PROJEKTS
委托人:Rezekne City Counsil
占地面积:12,080 m2

BIM建筑网



评论前必须登录!
注册