

业主一家四口对他们在洛杉矶地区的避暑别墅所处的海滨小镇位置感到非常满意,但对其90年代建筑风格却不太满意。所以他们找到 Blue Truck 工作室,希望能将建筑改造得低调。这座房子具有极不规则的几何形状空间,例如八角形的房间和三角形的空间。他们想要一座具有简单形式和质朴感的房屋,就像北加州 Sea Ranch 社区的房屋那样。




在外部,Blue Truck 工作室重新设置了窗户,并添加了壁板,将其包裹在房屋周围,以简化其形式并提供隐私。定制的磨光壁板采用阿拉斯加黄色雪松,考虑到它们会随着时间的推移逐渐变灰而形成一种光泽感,能让人联想到 Sea Ranch 的美感。Blue Truck 工作室创造了一个全新的宁静、开放的空间,具有流动感。


他们拆除了客厅一侧的壁炉。落地窗朝家中两个露台打开,使室内到室外融为一体。旋转门和两个大滑门为室内带来充足的光线。雪松板漆成白色,环绕着房屋楼梯间,与房屋外墙的雪松壁板呼应。











这座位于加州曼哈顿海滩(Manhattan Beach)、3770平方英尺的房子整修历时14个月。这个家庭起源于洛杉矶地区,他们希望这个房子既能方便接待朋友和家人,又可以让人安静地放松。这套四居室的房子既有大型的娱乐区,也有私密的居住区。还有许多用来休闲娱乐的空间和细节。车库改建后容纳了一个游戏区和艺术工作室。同时,一条车道变成了足球场,还有一个板条户外淋浴房,可以在去海滩回来后冲洗,反映出这家人对户外的热爱。



项目图纸

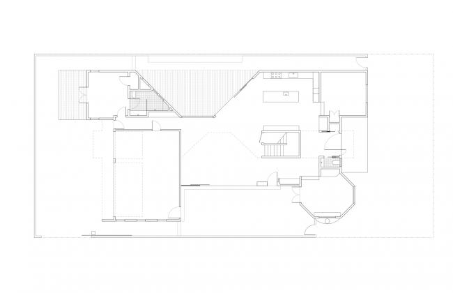
▲ 一层平面图

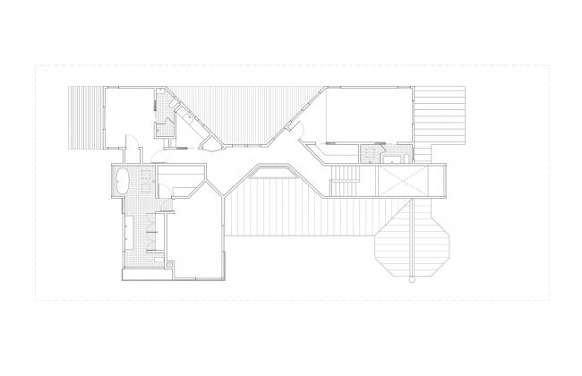
▲ 二层平面图

▲ 立面图

▲ 立面图和剖面图

▲ 大样节点

▲ 正门材质研究

▲ 侧面研究
项目信息
项目类型:独立住宅
项目地址:曼哈顿海滩,美国
建筑设计:Blue Truck Studio
项目年份:2019
摄影师:Gregg Segal
厂家:Hansgrove, Graphisoft, Nemetschek, Exquisit Surfaces, Marvin, Duravit, Emtek, NakNak
设计团队:Eric Reeder, John Flaherty, Xuhan (Ben) Shi
工程师:Palos Verdes Engineering
景观设计:Romana di Suvero
施工方:Bryan Bethem/Rough Workshop
室内设计:Mary Valaika

BIM建筑网





评论前必须登录!
注册