
Nithurst 农场是一座为 Adam Richards建筑事务所创始人新建的家庭住宅。这座建筑位于一片开阔地带,坐落于南唐斯国家公园内一名农场工人的小屋原址之上。这座建筑由混凝土结构建造而成,并覆盖着一层厚砖质表皮以及黑色锌质屋顶。

▲ 总平面图

这座建筑的轮廓呈阶形上升,自北立面一单层高的入口升至三层楼高的塔楼,并从南立面看起来呈网格状。拱形砖窗开口及其深处的窗槽给建筑的长向侧立面带来了韵律,并与此同时展现了墙体的厚重感。砖墙表皮的光泽强调了由建筑轮廓的阶梯状形态所呈现的动感;拱形砖窗开口四周被染黑的砖块则创造了一种随着空间移动的错视效果。


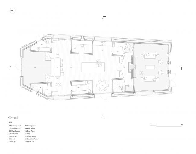
对这座建筑的期待随着进入入口后而变得神秘:访客从农场的院子进入一个四周都外露着混凝土墙的昏暗的门厅,这个门厅向着一个4.5米高的厨房、餐厅、和家庭活动室方向打开,并洋溢着一种受文艺复兴时期的画作及帕拉第奥所作的巴巴罗别墅平面图影响的特质。内部混凝土结构的墙体和天花板像刚从模子里取出一般,被故意潦草地保留与矫饰的砖立面形成巧妙的对比,并通过选择白色的木蜡油松木地板、再生石、剑麻地毯和黄铜家具使环境变得柔和。

▲ 一层平面图





在这个开阔的空间里一共包含六座内部混凝土塔楼,其中每一座都容纳了一个如衣帽间、书房、和食物储藏室的次级房间。建筑平面沿南北轴呈锥形状,由此营造一种错误的透视感,旨在增强抵达作为这座房子里最重要的目的地的朝南起居室的旅途感。一段昏暗的、曲折的走廊则增加了进入一间光线充盈的、装饰着当现代艺术品和挂毯藏品的房间的到达感。

▲ 一层夹层平面图
塔内的楼梯通向位于二楼的儿童卧室和客房。两扇大门冲着一座通向主卧房的气派的中央楼梯打开,开阔的乡村景色作为沿楼梯上行的奖励,通过朝南的全高式窗户一览无余。呈镜像布局的卧房/更衣室通向一个共用的卫生间,其中鹅独立浴室则控制着可见的横跨开阔农田的景色。



这座建筑看起来既古老又现代——建筑沉甸甸的、有触感的材质将它和周围的农场建筑相连,与此同时,建筑阶形的抽象概念引人联想起极简主义的雕塑作品。建筑所受的影响范围从范布勒的建筑形式到俄国电影艺术家塔科夫斯基,他的电影《潜行者》启发了这座建筑营造的目的地感。Nithurst 农场包含着诸多层次的引用与结合,层层递进预示着整体,在增强建筑寓意的同时创造了一个优美的居住环境。

▲ 立面图

▲ 立面图

项目图纸

▲ 二层平面图

▲ 三层平面图

▲ 立面图

▲ 剖面图A-A

▲ 剖面图B-B
项目信息
项目类型:独立住宅
项目地址:英国
建筑师:Adam Richards Architects
面积:397.0m2
项目年份:2019
摄影师:Brotherton Lock
厂家:Bette, Ibstock, Weinerberger Bricks, Velfac, Spark and bell, VMZINC, Crosswater
客户:Adam and Jessica Richards
结构工程师:Structure Workshop
服务工程师:P3R
主施工方:Garsden Pepper
工料测量师:MPA

BIM建筑网





评论前必须登录!
注册