
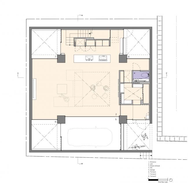
这座住宅位于高松市中心,是一对拥有一个孩子的夫妇的家。这对夫妇要求房子尽可能完全占据场地,要确保隐私,还要有一个内置车库以展示他们的小汽车,并且要采用混凝土结构,墙面简洁干净,而不是具有木材和其他材质纹理的室内效果。我们提出一种方案以回应业主的需求,即将客厅、餐厅和厨房空间置于场地的中心,其他的空间围绕着它们展开至整座房子。

房子由四面完全包围着空间的外墙构成,在四个墙角以及房子中央均有一处空白的空间。这五处空白的空间为室内带来均匀的光线,带给客厅、餐厅、厨房空间一种宽敞、明亮的氛围——尽管它们位于一层。这四个角落的空白区域在保持房子隐私性的同时,将外部环境融合进来,创造了与外部紧密联系的具有开放感的空间。

▲ 总平面图






为了保证室内空间的简洁,我们只用了四根结构柱。从这些柱子水平延伸出来的悬挑支撑着一层、二层墙体和屋顶。由于这种规划,外墙无需支撑二层和屋顶结构,这使得创造360°采光的狭长切口窗户成为可能,允许视线在不泄露隐私的情况下向外延伸。

▲ 一层平面图

▲ 二层平面图






该设计也显著地节约了建造成本。建筑下方的地面相当柔软。如果采用普通板式基础,则可能会需要广泛的地基稳定性。然而,在我们的设计里,只需在四根柱子下方叠放,则可将地基稳定成本降低至板式基础的四分之一。

▲ 概念分析
项目图纸

▲ 南立面图

▲ 东立面图

▲ 北立面图

▲ 西立面图

▲ 剖面图A-A

▲ 剖面图B-B
项目信息
项目类型:独立住宅
项目地址:高松市,日本
建筑设计:Fujiwaramuro Architects
面积:131.68m2
项目年份:2019
摄影师:Katsuya. Taira
制造商:Delta Light,Revigres, SK Kaken

BIM建筑网





评论前必须登录!
注册