一、外墙与地面连接



二、彩钢泛水板

三、墙角,彩钢包角板

四、外墙与柱连接


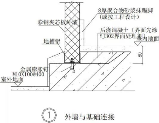
五、外墙与基础连接


六、内墙与基(装配式住宅)础连接


七、墙与砖墙连接

八、外墙转角






九、外墙纵向连接

十、外墙纵向拼接


微信公众号:xuebim
关注建筑行业BIM发展、研究建筑新技术,汇集建筑前沿信息!
← 微信扫一扫,关注我们+
一、外墙与地面连接



二、彩钢泛水板

三、墙角,彩钢包角板

四、外墙与柱连接


五、外墙与基础连接


六、内墙与基(装配式住宅)础连接


七、墙与砖墙连接

八、外墙转角






九、外墙纵向连接

十、外墙纵向拼接




评论前必须登录!
注册