特点及适用范围
预制混凝土外挂板,利用混凝土的可塑性强的特点,可充分表达建筑师的设计意愿,使大型公共建筑外墙具有独特的表现力。饰面混凝土外挂板,是采用反打成型工艺制作带有装饰面层的钢筋混凝土外墙板。装饰混凝土外挂板是在普通的(一体化装修)混凝土表层,通过色彩、色调、质感、款式、纹理、肌理和不规则线条的创意设计、图案与颜色的有机组合,创造出各种天然大理石、花岗岩、砖、瓦、木等天然材料的装饰效果。清水混凝土的质朴与厚重感,体现建筑古朴自然的独特风格。在工厂采用工业化生产,具有施工速度快、质量好、维修费用低的特点。根据工程需要可设计成集外装饰、保温、墙体围护于一体的复合保温外墙挂板,也可以作为复合墙体的外装饰挂板。
饰面种类
■ 面砖饰面

■ 石材饰面

■ 清水混凝土饰面

■ 彩色混凝土饰面

技术性能指标及执行标准
■ 保温性能
普通混凝土中间夹50~80mm聚苯板,传热系数小于0.60W/(m2•K),较好满足《民用建筑节能设计标准》。
■ 结构性能
满足GB50010《混凝土结构设计规范》和GB50204《混凝土结构工程施工质量验收规范》。
■ 装饰性能
符合GB50210《建筑装饰装修工程质量验收规范》。
■ 抗震性能
饰面混凝土外挂板与主体结构采用柔性节点连接,地震时适应结构层间变位性能好,可在抗震设防烈度为8度的地区应用。
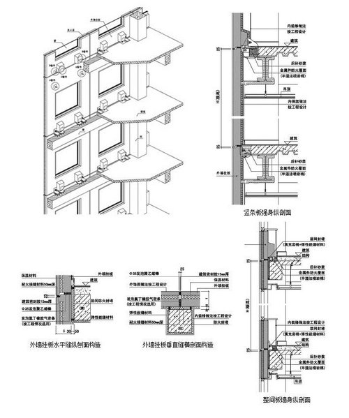
外墙挂板的板型划分及设计参数要求

外墙挂板连接构造

安装方式
■ 安装与连接方式
预制混凝土外挂板与主体结构连接宜采用下支上拉式柔性连接节点。目前柔性连接节点主要有:弹性滑移节点及弹塑性变形节点。
■ 接口尺寸
板与主体结构间距30~50mm,板与板之间的接口尺寸为15~25mm。
板缝防水
■ 建筑密封
根据外饰面选用相应的建筑密封胶,其性能应符合国家或行业的相关标准要求。
住宅产业化民间智库群:147874495
工业化建筑设计师群:138517101
工业化建筑学生群:199516367

BIM建筑网




评论前必须登录!
注册