

深化设计是指在原设计方案、条件图基础上,结合现场实际情况,对图纸进行完善、补充、绘制成具有可实施性的施工图纸,深化设计后的图纸满足原方案设计技术要求,符合相关地域设计规范和施工规范,并通过审查,图形合一,能直接指导现场施工。
深化设计服务,分为具体项目深化设计和深化设计咨询培训两项内容。
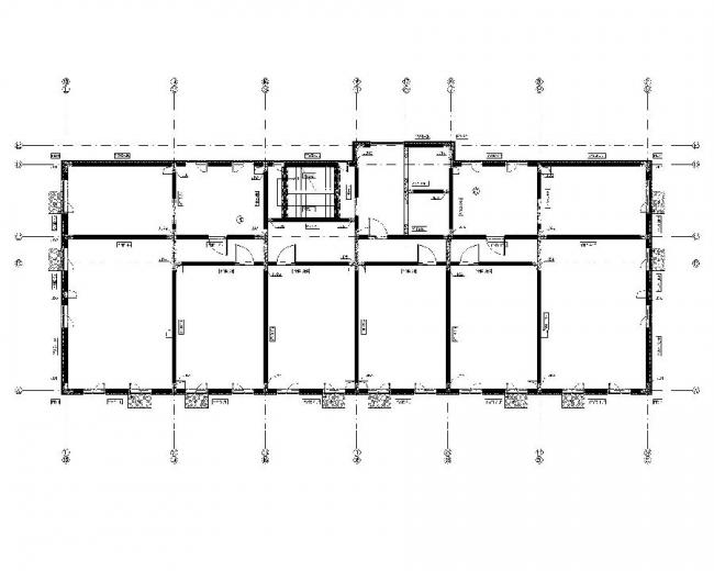
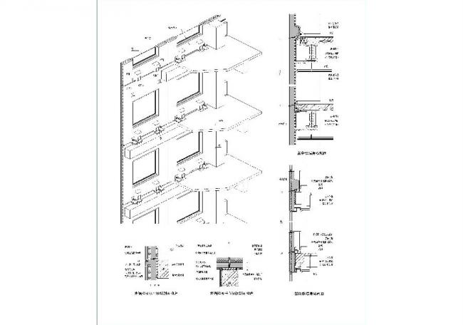
具体项目深化设计,是根据甲方提供建筑结构图进行PC构件拆分设计,根据甲方提供的专业设计院所设计的建筑、结构、电器图纸,进行构件拆分,并出具拆分设计图纸,主要包括构件拆分深化设计说明、项目工程平面拆分图、项目工程拼装节点详图、项目工程墙身构造详图、项目工程量清单明细、构件结构详图、构件细部节点详图、构件吊装详图、构件预埋件埋设详图。
根据工程结构特点及甲方要求,主要拆分构件产品有预制混凝土外墙板、预制混凝土内墙板、预制混凝土梁、预制混凝土叠合板、预制混凝土PCF板、预制混凝土楼梯板、预制混凝土阳台板、预制混凝土空调板、预制混凝土女儿墙;
(一体化装修)
深化设计咨询培训,是依托PC构件生产实践进行相关拆分设计要点、方法的培训,包括拆分设计原则依据培训、PC构件拆分培训、相关拆分设计软件培训、拆分设计图纸培训。
a.拆分设计原则依据培训:主要指装配式混凝土结构拆分设计相关标准、规范、规程及规定学习;
b.PC构件拆分培训:根据剪力墙结构特点,主要拆分构件产品有预制混凝土外墙板、预制混凝土内墙板、预制混凝土梁、预制混凝土叠合板、预制混凝土PCF板、预制混凝土楼梯板、预制混凝土阳台板、预制混凝土空调板、预制混凝土女儿墙;
c.相关拆分设计软件培训:通过三维软件更为直观准确的进行构件设计;
d.拆分设计图纸培训:主要包括构件拆分深化设计说明、项目工程平面拆分图、项目工程拼装节点详图、项目工程墙身构造详图、项目工程量清单明细、构件结构详图、构件细部节点详图、构件吊装详图、构件预埋件埋设详图。
设计事务所
沈阳卫德住宅工业化科技有限公司
深圳市华阳国际工程设计有限公司
设计软件
内梅切克工程有限公司(Nemetschek Engineering GmbH)

BIM建筑网




评论前必须登录!
注册