特点及适用范围等
主要特点:标准化设计、工业化建造、工厂化部品、成品化房屋、集成化技术、规模化项目、长期化实施。
涉及专业:建筑、结构、施工、材料、设备、装修等多专业集成配合的完整产业链系统。
饰面种类:具有多样化装饰效果,饰面可采用面砖石材装饰混凝土等,施工质量高,耐久性好。
保温性能(建筑工业化):可复合保温材料提高保温性能,减少施工环。


适用范围:主要适用于抗震设防等级及抗震烈度要求较低地区的多层居住建筑,7、8度设防地区,一般多在6层以下(20米以内),6度及以下的设防可适当提至12层~16层(30~45米)。在现阶段我国剪力墙体系建筑设计仍应以现浇为主导,预制为辅助的指导思想,主要是由于预制墙板水平连接构造比较难于处理,很难达到与现浇等效的效果。
实施手段:主要是通过采用专业化集成管理,达到提高品质,缩短建设周期的目的。
技术性能指标及执行标准
■ 保温性能
普通混凝土中间夹50~80mm聚苯板,传热系数小于0.60W/(m2•K),较好满足《民用建筑节能设计标准》。
■ 结构性能
满足GB50010《混凝土结构设计规范》、GB50204《混凝土结构工程施工质量验收规范》和《装配式混凝土
结构技术规程》报批稿。
■ 装饰性能
符合GB50210《建筑装饰装修工程质量验收规范》。
■ 抗震性能
饰面混凝土外挂板与主体结构采用柔性节点连接,地震时适应结构层间变位性能好,可在抗震设防烈度为8度的地区应用。
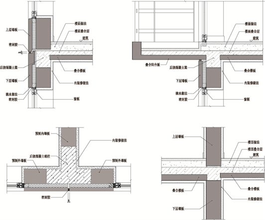
结构布置
装配整体式剪力墙结构的布置应符合下列要求:
1、平面形状宜简单、规则,平面布置宜对称,应沿两个方向布置剪力墙;
2、剪力墙的截面宜简单、规则。预制墙的门窗洞口宜上下对齐、成列布置。

连接设计
1、楼层内相邻预制剪力墙板之间应采用整体式接缝连接。
2、剪力墙顶部设置现浇钢筋混凝土圈梁。
3、上、下层相邻预制剪力墙的竖向钢筋采用灌浆套筒连接。

住宅产业化民间智库群:147874495
工业化建筑设计师群:138517101
工业化建筑学生群:199516367

BIM建筑网




评论前必须登录!
注册