
建筑师最初的想法是让居民的行为主导空间设计,将一个住宅空间雕刻成一整个大理石雕塑。建筑物主体看起来如此坚实,却又如此轻盈,看似反重力地悬浮在空中,而在大理石体块底下设有中央庭院,将户外景观引入建筑内部。“雕塑过程中残余的大理石碎片”零落地散布在地上,形成景观的一部分。因为它们曾是大理石巨石的一部分,在视觉上呈现了强烈的关联性。

通过改动建筑的平衡面和非平衡面,产生了独特的空间形体。大理石之家位于一块矩形土地的一端,另一端则有一棵巨大的‘雨树’。建筑物的现代风格突出了‘雨树’的存在。最简约的结构和自然成熟的雨树,在游泳池表面上反射形成对比,为建筑创造了难忘的场景。


事实上,使用的大理石饰面是大型、轻重量的大理石图案印花的墙砖。由于砖墙上覆盖了室外饰面材料,因此也有防水的功能,为建筑遮阴、避免太阳直射、阻挡了曼谷夏季的炎热,有助于白天冷却室内。



建筑和景观之间的关系微妙的展示在各处。整体方形形状的平面,围绕中心的开放式庭院,让自然光和通风到达屋里所有角落。竹子在中央庭院随风移动和摇摆。






“私人阳台”这个概念对于被邻居包围的城市居民住宅非常有用。封闭的露天露台提供了隐私,但仍然保有自然光线和通风。在露台之上的挖空,成为一个很大的特色,就像建筑师命名的“私人天空”一样。

有些窗户必须放在靠近邻居的一侧。将窗户倾斜面向更开放的角落,也助于形成建筑最后的形式。毕竟,这一切始于让居民的生活习惯和景观喜好能够自然地塑造这个建筑。材料、空间和形态的设计无缝地贯穿了内外空间,让建筑、景观、室内——三者之间建立了强烈的联系。


夜景:



项目图纸

▲ 地下一层平面图

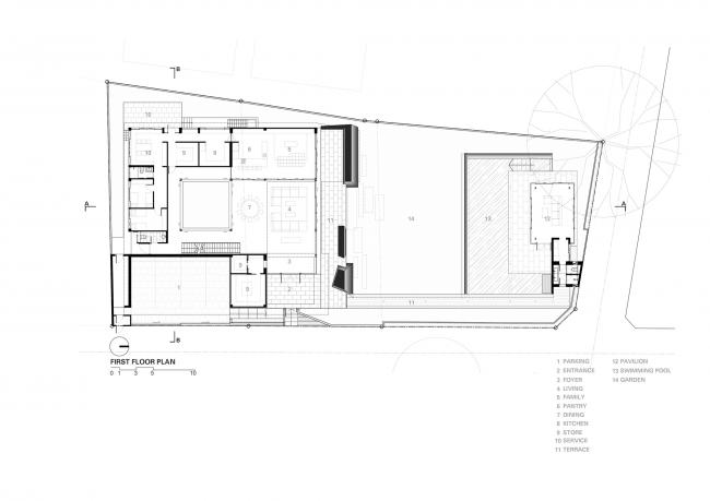
▲一层平面图

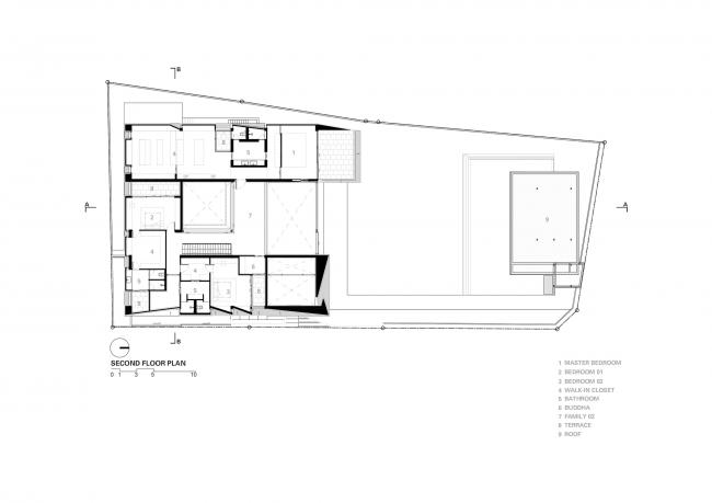
▲二层平面图

▲屋顶平面图

▲立面图

▲剖面图

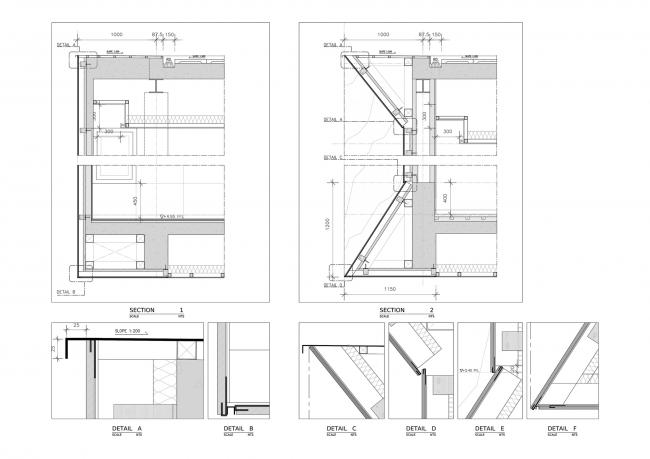
▲大样节点
项目信息
建筑设计事务所:Openbox Architects
地址:Bangkok,泰国
类别:独立住宅
主创建筑师:Ratiwat Suwannatrai
设计团队成员:Nattawan Supanan, Sudatip Pipatthakorn, Nonglak Boonsaeng
建筑面积:1000.0 平方米
项目年份:2017
摄影师:Wison Tungthunya
厂家:Hafele, Porcelanosa Grupo, LifeStyle Furniture, Boonthavorn
景观主创建筑师:Wannaporn Suwannatrai
景观设计团队:Chawannuch Jirasukprasert
室内主创建筑师:Wannapat Jenpani(BIM教程)chkarn
室内设计团队:Pichaya Sampanvejsobha, (BIM工程师)Chitchaya Klinkhum
灯光设计师:FOS Lighting
制造商:Boonthavorn Facade Technology

BIM建筑网





评论前必须登录!
注册