
▲ 温润——傍晚中心庭院和生活服务中心 ©存在建筑-建筑摄影
一段时间以来,在传统经济增长模式的导向下,全国各地的产业新城纷纷拔地而起。这些产业园区遵循着几乎相同的底层逻辑——以最低的成本和最高的效率来围绕生产组织的需求进行空间布局和建筑营造,大面积“兵营化”布局和“火柴盒式”空间成了最为有效的回应模式。

▲ 钱塘江畔水天一色下的园区©存在建筑-建筑摄影

▲ 鸟瞰顶视©存在建筑-建筑摄影
浙江普利斐特,作为一家在汽车科技领域的创新型企业,在委托对这一位于海宁尖山新区、毗邻钱塘江入海口的用地进行设计的同时,提出了期望跳脱遍布其用地周围的传统产业园区空间模式的要求。这一期望与建筑师自身对于传统产业园区的反思不谋而合,使得我们得以将更多的精力投入在探索实现这一共同诉求的路径可能性上。

▲ 场地肌理分析©gad ·line+ studio

▲ 内院一角——屋宇和山径©存在建筑-建筑摄影
在效率要求过剩、反思精神需求的现在,我们尝试探索与周边封闭化管理的园区形成差异化的方向,参照传统村落集体性劳作与日常生活的群居模式,挖掘其与周边陆续入驻的企业的互动可能。以建筑、室内、景观一体化设计,通过“流线重构”打造似游园般的空间体验,重塑一场“山舍”生活的集体记忆。

▲ 厂房室内 ©wen studio
01. 内向稳定的建筑布局

▲ 体块生成©gad ·line+ studio
在深入了解了业主企业的生产工艺要求、踏勘了场地和进行了反复多轮的推演之后,建筑师决定将设计的主要切入点回归到最为基本的要素——“流线”上。在此,流线的含义不仅在于实现产业生产所需的工艺流程和货运流线,也包括了即将在此生活工作的产业工人与管理者的生活行为流线。

▲ 功能分析©gad ·line+ studio

▲ 东南鸟瞰——与周边形成差异化的产业园区©存在建筑-建筑摄影
从基于生产的物流考虑,建筑师将沿场地边四栋体量最大程度地外推贴边布置,并与外围环形车道连接以实现高效物流进出,在场地中央的剩余空间形成了一个回归生活的内院。

▲ 从排洪渠望向西侧的连绵山形建筑体量©存在建筑-建筑摄影
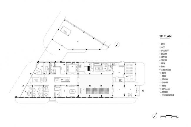
东侧贴临道路布置对外服务车间;北侧布置基本生产车间,并与后续的二期用地相邻;西侧沿泄洪渠布置无尘车间和实验室;南侧面向钱塘江的景观界面则用于建造研发办公和生活配套综合楼,场地中央布置第五组体量——食堂及生活服务中心,并将其作为生活行为流线的汇聚节点。

▲ 夜晚的内院U玻立面©存在建筑-建筑摄影

▲ 从研发中心架空层看向西侧排洪渠 ©存在建筑-建筑摄影
这一布局所形成的中心放射性的功能组织结构,为工人的日间生产和工余生活都提供了最为高效的路径连接。理顺园区效率这一底层逻辑后,一种关于限定及围合的空间构图已然呈现,以自然山水为中心,具有一定封闭性的内向空间,在人的心理上也建立起一种聚居环境的安全感、庇护感和认同感。

▲ 员工食堂的后勤入口©存在建筑-建筑摄影
02. 本土叙事语境的传统聚落
当西方舶来的工业文明与设计相遇,机械生产场景使得劳作陷入单调枯燥的流程循环之中,建筑师尝试将其转换为一种更具本土叙事语境的传统聚落图景,重拾人文意趣。
还原到具体的图景切换策略,建筑师则借用中国传统绘画的经典著作《芥子园画谱》作为这一切换的逻辑线索,即以一种“类型化”的视野来拆解传统山水绘画中的元素——山、石、屋宇、水、篱、台阁、门径等要素,并以当代的建筑语汇与之相对应:

▲ 从水池望向西侧员工宿舍©存在建筑-建筑摄影
山——贴合场地周边的四组建筑通过体量的连接及屋盖的处理构成了基本的山势,并面向东南角打开“拗口”,形成围而不合的袋型空间。
石——以预制的混凝土几何砌块进行堆叠,取叠石之意而重构。
水——在场地中心生活配套建筑边,面向开敞拗口设一浅塘,有水则灵。
屋宇——为避免食堂和生活服务中心对本身不大的山院产生压迫,打散其形体,将之转化为三个互相连接的小体量山舍群组,临水而置。
篱——摒弃了传统工业园区的实体或铁艺围墙,而以规格模数化的白色打点渐变彩釉玻璃构筑线性序列,限定了场地边界的同时,仍从管理上保持着对于整个周边区域的视觉、资源共享借用的开放度。
台阁——在办公研发的主楼顶层西南角设一观潮台,潮来时凭栏望江。
径——我们将红色栈道作为要素抽取出来,颜色鲜明的曲桥和栈道是建筑视觉上的核心表现元素,也是山水画中自在的空间语言,也进一步构成了串联以上所有图景的核心线索。

▲ 内院一角——屋宇和山径©简直建筑-空间摄影

▲ 彩釉玻璃构筑线性序列限定场地边界©存在建筑-建筑摄影
03. 红色栈道作为要素的流线重构
建筑师抽取了车间的疏散楼梯、屋顶太阳能板的检修马道、跨越水池的小径、办公楼的室内楼梯,覆以统一的耐候钢板,或将之外化可视,或将之下沉消隐,又或使之穿层飞楼,还原了中国传统的山水绘画中的若隐若现、似断实连、曲折回绕的山径,并进一步构成了串联所有图景要素的核心线索——不仅是可视的,也是可游和堪用的。

▲ 外置的耐候钢板疏散楼梯 ©存在建筑-建筑摄影
疏散楼梯和走道辅助流线布置在车间功能区块外侧,使得内部空间的再划分变得更加自由。墙面外挂的廊道和楼梯为工人通向食堂、宿舍提供了便捷路径,也是工人短暂工间休息的场所。屋顶上的楼梯为顶部太阳能板的检修提供了便利,也是工余登高望远的户外活动空间。

(BIM学习)
▲ 屋顶马道和疏散楼梯的连接©存在建筑-建筑摄影
与此共生的还有丰富的线性体验:观岸、攀山、走崖、渡桥、游水。水中相望为观岸,匍匐上行为攀山、建筑立面为走崖、串联通道为渡桥,水中曲折为游水。与江南建筑情、趣、神的园林意境不谋而合。

▲ 栈道的路径体验 ©gad ·line+ studio

▲ 屋顶光伏板检修马道 ©存在建筑-建筑摄影
04. 透明性的材料表达
面对钱塘江畔,项目周边时常水天一色的奇景,设计上选用了白色瓦楞钢板和超白U玻作为外墙的主材,在使之融入大场景的同时,又通过这两种对比强烈的材料营造了园区面向外界和内部的不同质感。

▲ 面向园区外部的山形立面©存在建筑-建筑摄影
面向外部,建筑外墙通体饰以白色瓦楞钢板,纵向的条窗、瓦楞纹理及折面屋顶构成了“山体”的干练、简洁的“实面”肌理。

▲ 内院U玻立面与外置的疏散楼梯——山径©存在建筑-建筑摄影
面向园区内部,连续的U玻构成了一种连续的半透明状态,并在白天与夜间形成了完全不同的质感——日间的清冷与夜间的温润。建筑以轻盈姿态依水而立,隐隐透过立面映射出建筑内日常的工作和活动。

▲ 夜晚的内院U玻立面©存在建筑-建筑摄影
05. 室内:建筑叙事的内部延续
建筑、景观、室内一体化的设计模式是我们一贯的理念,也贯穿了本项目的设计始终。line+设计师在介入项目后,延续了原有的建筑空间理念,并进一步结合园区的使用模式和具体要求,展开了针对性的建筑空间改造和室内重构。

▲ 综合楼形体生成 ©gad ·line+ studio

▲ 综合楼功能分解图 ©gad ·line+ studio
室内设计作为建筑叙事的延续,同时塑造融合山水意境的现代办公空间新体验,以“偶遇”,“初探”,“登高”,“望远”四个阶段循序展开。

▲ 入口©wen studio



▲ 多功能厅©wen studio

▲ 会议室©wen studio
偶遇,耐候钢折边门厅突显仪式感,呼应外立面的特质同时缓冲内外空间转换。顶面引入半通透的金属拉网板作为主要的元素,结合T8灯管和线性条形灯,与裸露的原始建筑结构,使得顶部空间具有丰富的可读性和延展性。

▲ 办公空间 ©wen studio



▲ 室内“庭院”©wen studio
再探是公共区域放置的“村院”。在办公室区域中间设置由轻质的金属网的半围合空间,介入温暖的颜色,既是共享工作空间也是提供小憩的室内“庭院”。

▲ 钢板楼梯©wen studio
登高。延续贯穿整个建筑的红色栈道,室内的钢板楼梯层层相连,盘旋而上,呼应建筑外立面栈道的趣味性。


▲ 员工宿舍©wen studio
望远,到达建筑的至高层,是业主的私人接待及办公空间。入口区域吊顶和墙面用整木方实现水波纹的效果,呼应远处钱塘江浪潮。


▲ 入口吊顶“水波纹”©wen studio
平面设计打破原有的楼板结构,形成室内外空间相互穿插,相互贯通的灰空间,用现代的设计手法演绎半屋半院、半石半林的传统民居布局。


▲ 黑盒子©wen studio

▲ “黑盒子”将室内空间向外延伸 ©wen studio
最后在东南角戏剧性地外置入一个黑色盒子“阁楼”,既是对建筑外立面上红色楼阁的一种对话与致敬,也是山水画中的台阁意象,纵览江景。

▲ 综合楼功能图解 ©gad ·line+ studio
06. 景观:简洁抽象的山水精神
景观的设计同样与建筑概念一脉相承,用简洁抽象的形式来传达山水精神。

▲ 景观功能分析 ©gad ·line+ studio
庭院虽小,五脏俱全。前庭处与篮球场区提供了消防疏散的应急聚集区;院墙之后,是工人搬运货物的堆积点;叠石处可安静观景亦可坐下闲聊;浅水池是厂区内的虚空间,在枯水期时也是工厂举办市集活动的下沉广场。

▲ 岸石与花木 ©简直建筑-空间摄影

▲ 岸石形态演变 ©gad · line+ studio
暗红色锈板的曲桥采用下沉式设计,让人更加亲近水面,连同建筑屋顶上弯曲的亮红色栈道,在场地上盘桓贯连,让人有如山行,如水游的感受。


©简直建筑-空间摄影
究问山水文化,运用创新材料,我们重新定义生产村落,重构山水画意境,赋活新的生产空间,将山水对话关系在园中解读。对于工人而言,这里不止现代乏味的流水线工作,而是一个劳动时尽情挥洒汗水,闲暇时饱含自然召唤和有趣生活的口袋式山水景观。


▲ 曲桥与栈道 ©简直建筑-空间摄影
07. 结语
历经多番周折,项目已悄然建成并投入使用,在保持产业项目基本设计逻辑和实际效率的同时,建筑师所设想的产业园区的差异化表达,最终通过了这种基于传统绘画图景转译的方式得以呈现。

▲ 从无尘车间通向食堂的山径 ©存在建筑-建筑摄影
个体的实践、感受和认知是阐释空间和地方性意义的组成部分。当工人们走上屋顶,在池边戏水,在下沉广场里举办热闹的市集,工业园已不再是装载冰冷机器的厂房,而是紧密结合的群体在其内部活动发挥各自功能的聚落。

▲ 屋顶光伏板检修马道 ©存在建筑-建筑摄影

©简直建筑-空间摄影
江畔游园“山舍”这一通过平面的传统绘画技法来映射深度可游场景的尝试,仍在潜移默化地影响着在这里生活、工作的产业工人们,并持续地吸引着周边的好奇行人们,而至于业主——似乎正打算将家搬至此间与工人同住。
闻之而欣然。

▲ 清冷——早晨的中心庭院和生活服务中心©存在建筑-建筑摄影
项目图纸

▲ 餐厅一层平面©gad ·line+ studio

▲ 餐厅二层平面©gad ·line+ studio

▲ 综合楼一层平面©gad ·line+ studio

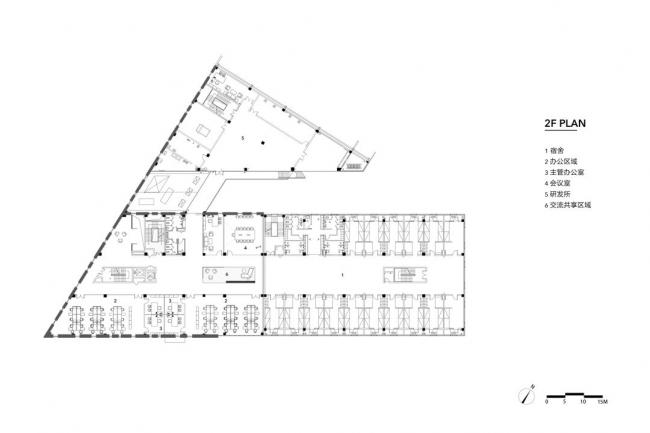
▲ 综合楼二层平面©gad ·line+ studio

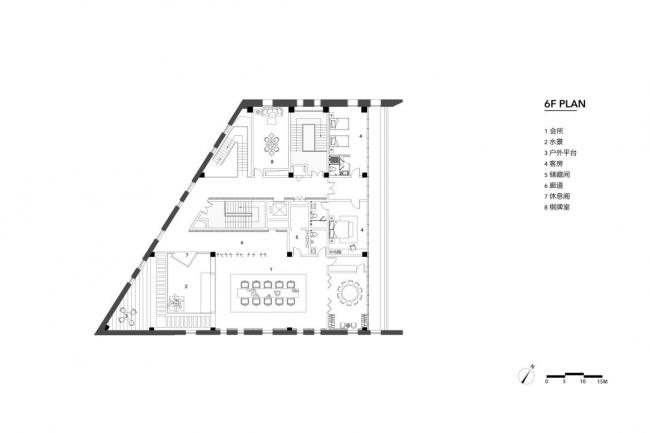
▲ 综合楼六层平面©gad ·line+ studio
项目信息
项目名称:浙江普利斐特生产基地一期组团
设计单位 :
原建筑设计:GLA建筑设计
建筑整体改造&室内设计&景观设计:gad · line+ st(BIM建筑)udio
主持建筑师:朱培栋
设计团队(GLA):
建筑:朱培栋、沈晓峰、王雨非、龚悦、陈智航、谢道清、周剑、丰建华、黄国华
设计团队(gad · line+ studio):
建筑:朱培栋、孙啸宇
室内:金煜庭、刘甲、蔡肖愚、史建国、刘茉然、陈威龙、顾传杰
景观:李上阳、金剑波、苏陈娟、汤睿娴
地点:浙江海宁尖山新区
设计时间:2015-2018年
竣工时间:2019年
业主:浙江普利斐特汽车科技有限公司
基地面积:20716平方米
建筑面积:26004.2平方米
结构:钢结构、钢筋混凝土框架结构
摄影:存在建筑-建筑摄影、wen studio、简直建筑-空间摄影

BIM建筑网





评论前必须登录!
注册