
美洲大道是一条双车道的大道,位于从卡塔尼亚到达该市的主要通道沿线。到达拉古萨的人可以在该省巴洛克风格的首府小镇上找到一个欢迎的标志,那里有几个历史中心的纪念碑被列入了联合国教科文组织的名单。项目位于外围扩建处的一片无名之地,处于一堆建于世纪末与千禧初之间的平庸的建筑群里。

在所有这一切中,游客未发现小路。没有最低限度的城市设计,道路是车道,只为汽车而不是为人们去连接不同部分的混乱的(BIM设计)集群,它缺乏身份。在这种情况下,我们在2010年底找到了自己,开始了一个为两个家庭提供住所的项目。我们的客户的想法是建造一座现代化的建筑,放弃先前计划建造一座具有各种古典元素的传统建筑的项目。从那一刻开始,我们研究的项目身份特征就有了,并有了自己的形象,这要归功于许多当代项目的实现。


在设计这栋建筑的时候,主要的想法是通过在四周建造一级悬挑并有相当部分悬挑朝向大街的方式,将它从周围的建筑中解放出来。第二个想法是考虑材料、混凝土,这决定了模板的设计。建筑采用整体设计,将内外部整合起来。在内外部空间规划上,尽管是两个不同的住户,但材料的使用具有共同的特点。你从后面的内部通道进入大楼,在那一侧,建筑的特点是一个结构网格,从那里凸显出来,并带有一个非常轻的嵌入式钢楼梯,与混凝土结构形成了对比。


建筑夜景



室内







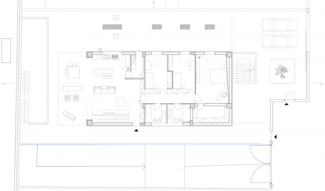
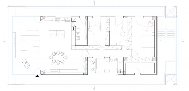
项目图纸

▲ 一层平面图

▲ 二层平面图
项目信息
建筑师:Architrend Architecture
地点:意大利,拉古萨
类别:住宅
主创建筑师:Gaetano Manganello, Carmelo Tumino
项目面积:730.0平方米
项目年:2014年
摄影师:More(BIM建筑)no Maggi
制造商:EAMES,160Makro,160Mutina,Le Corbusier,Bulthaup,Eero Saarinen,Antonio Citterio;
合同商:Baglieri&Ottaviano
合作者:Marco Garfi
客户:Nativo Giorgio

BIM建筑网





评论前必须登录!
注册