
▲ 北立面-存在建筑摄影
清华大学图书馆是校园的重要标志性建筑物,始建于1919年,由美国建筑师亨利•墨菲设计。其后经历两次扩建:1930年代由杨廷宝设计了二期扩建;1980年代由关肇邺设计了三期扩建。

▲ 分期总图关系示意
本项目是对图书馆建筑群的第四期扩建,位于清华大学校园核心区,本设计提供了延续校园历史文脉,满足当代教学与学科发展的建筑范例。
扩建部分与原图书馆内外联通,形成有机的整体。收进的四层外墙向下延伸,形成了1-3层平面中内、外层空间之间的分隔界面,内、外两层之间通过墙体上的开洞实现相互流通。在被该墙体所包裹的内层空间中,布置了学术型图书馆常见的藏阅一体阅览空(BIM工作)间;而在该墙体与气候边界外墙之间的外层空间中,设计了交通空间、休闲阅览等公共性更强的功能,与外部景观形成更强的互动性。

▲ 东立面和三期建筑的衔接-李炎

▲ 三期四期之间内院(西)-存在建筑摄影

▲ 三期四期之间内院(东)-存在建筑摄影
建筑基于上部逐层内收的形体处理,在平面组织上发展出内、外两层的空间嵌套关系。形体与平面的设计逻辑,被真实地表现在建筑立面上:在最外沿3层高的通透表皮之内,包裹着保持了分隔与渗透平衡的、更具实体感的4层高的墙体。图书馆内部空间的嵌套关系,在华灯初上的夜景中被两层墙体的叠加效果表现得淋漓尽致。立面上更具构成感的红砖构架、大面积的玻璃幕墙、抽象的细部处理等,都在追求与既有馆舍相协调的前提下,清晰而明确地表达出更加当代的特色。

▲ 下沉庭院入口门廊-存在建筑摄影

▲ 下沉庭院入口门廊-存在建筑摄影

▲ 下沉庭院及西立面-存在建筑摄影

▲ 北立面西侧四期和三期建筑的衔接-存在建筑摄影

▲北入口(夜景)-存在建筑摄影
设计充分体现了当代高校图书馆(BIM工程师)发展的趋势,在功能上补充了图书馆大开间阅览室的不足,增加展厅、咖啡厅、开放书店、小组讨论空间、研修间、古籍修复区等新功能。同时在不同标高层设置若干贯通数层的公共空间,串联起整个室内外空间流线。

▲ 门厅-存在建筑摄影

▲ 大厅休息区-存在建筑摄影

▲ 大厅休息区-李炎

▲ 主楼梯-李炎

▲ 主楼梯-存在建筑摄影

▲ 二层阅览区-存在建筑摄影

▲ 四五层阅览休息区-李炎

▲ 四五层阅览休息区-存在建筑摄影

▲ 五层阅览室-存在建筑摄影
项目图纸

▲ 地下二层平面图

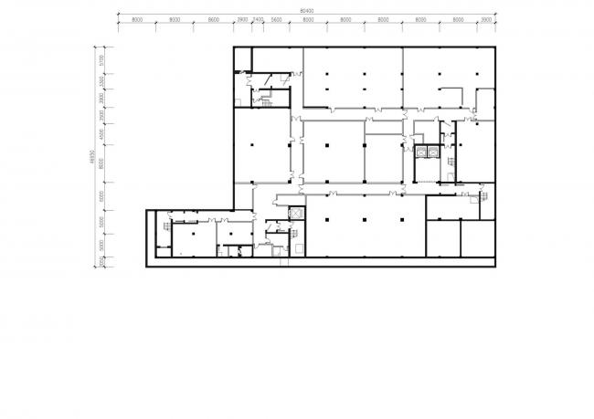
▲ 地下一层和一层平面

▲ 二层和三层平面

▲ 四层和五层平面

▲ 立面图一

▲ 立面图二

▲ 剖面图
项目信息
建筑事务所:清华大学建筑设计研究院
地址:清华大学,北京,中国
类别:加建项目
主创建筑师:关肇邺
设计团队:关肇邺、刘玉龙、韩孟臻、程晓喜、姚红梅、王彦、姜娓娓、经杰、蔡为新、徐青、刘福利、于丽华、任健凯、崔晓刚、张松
结构设计:经杰、蔡为新
建筑面积:14959.0 m2
项目年份:2016
摄影师:存在建筑

BIM建筑网





评论前必须登录!
注册