
▲ 图书馆一角
在延安这座革命老区,有着深厚历史文化积淀的大学设计新校区是一个充满挑战的命题。既要连接过去又要通向未来,既要有“地域特色”又要体现”时代精神”,既要让厚重的历史感和荣耀感焕发出新的时代魅力,又要体现不忘初心的人文气息,是设计者必须深入思考的问题。(BIM)

▲校园入口
我们希望和以往的新校园设计范式产生区别,回归初心,更深刻地挖掘这片土地的内涵,探寻出一条体现延安精神内涵及地域文化的大学之道。

▲鸟瞰实景

▲鸟瞰实景正面
延安地域建筑特色鲜明,层层退台的窑洞随处可见。延安大学以长期以来最具标志性和延续性的建筑符号——退台窑洞,作为新校区建筑设计源泉,以此来还原和连接过去,强化地域元素,传承历史文脉。

▲全景
校前区主要建筑体量均采用退台变化,作为延大新校区的标志性特色元素。

▲全景


▲图书馆

▲图书馆入口大台阶

▲图书馆立面层层退台

▲图书馆一角

▲ 广场
窑洞符号作为延安最具特色的建筑元素,贯穿于整个校园的设计之中。但不是简单的模仿和照搬,而是跟校园文化和实际功能需求相结合,运用窑洞符号塑造拱廊空间,既作为建筑基座,增强厚重感。

▲校前区中轴台阶及文汇讲堂实景

▲文汇讲堂

▲博物馆

▲运用窑洞符号的拱廊

▲拱廊细部

▲连续的拱廊呈现出极其丰富的空间表情及光影变化
同时拱廊形成舒适的半室外空间,夏天遮阳、冬天挡雪,有效应对延安夏天暴晒、冬天气候特点,为师生提供绝佳的交流场所,也作为联系不同功能区的步行廊道。

▲图书馆拱廊望校史馆实景


▲校史馆拱廊望图书馆实景

▲从图书馆拱廊看博物馆
室内

▲图书馆南侧中庭实景

▲图书馆南侧中庭实景

▲图书馆北侧中庭实景

▲图书馆三层中庭实景

▲展馆室内
项目图纸

▲总平面图

▲图书馆、博物馆、校史馆一层平面图

▲图书馆、博物馆、校史馆二层平面图

▲图书馆、博物馆、校史馆三层平面图

▲图书馆四层平面图

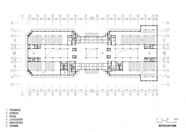
▲图书馆五层平面图

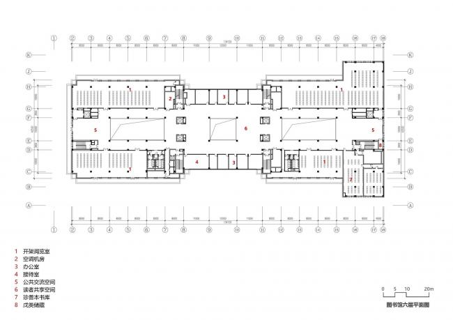
▲图书馆六层平面图

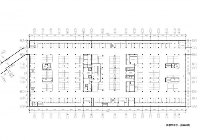
▲图书馆地下一层平面图

▲图书馆东立面图

▲图书馆南立面图

▲图书(BIM建筑)馆1-1剖面图

▲图书馆2-2剖面图

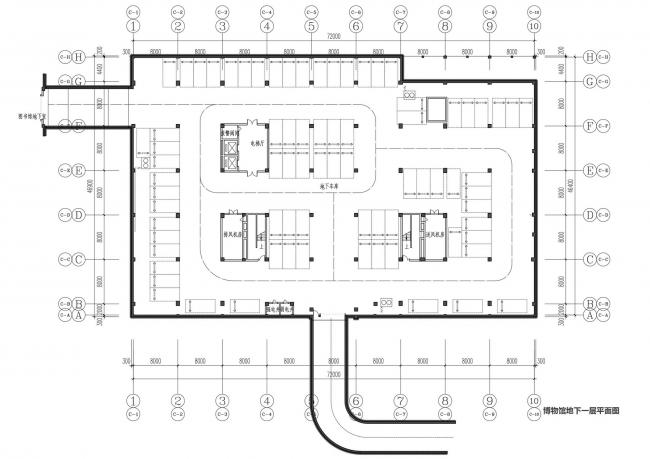
▲博物馆地下一层平面图

▲博物馆东立面图

▲博物馆1-1剖面图

▲校史馆地下一层平面图

▲校史馆1-1剖面图

▲节点大样图
项目信息
设计方:清华大学建筑设计研究院
地址:延安,西安,中国
类别:大学
主创建筑师:庄惟敏
设计团队:庄惟敏,李匡,唐鸿骏、盛文革、张翼、许腾飞、陈蓉子、丁浩、曾琳雯等
结构设计:蒋炳丽、杨霄等
景观设计:周易、张雪雷等
建筑面积:575000.0 平方米
项目年份:2018
摄影师:姚力

BIM建筑网





评论前必须登录!
注册