
作为印(BIM工程师)度组织和居住的主要部分,村庄在一段时间内已经成为“印度身份”的同义词。印度各地村庄的文化和建筑多样性可能会令人着迷,但全球化浪潮下侵入性材料和技术的影响也得以彰显。



这种入侵的优点和缺点继续激发人们在城市化中的印度寻找设计解决方案。其本身的肌理与各种村落般的聚落紧密地交织在一起。


当我们从客户那里得知咖啡馆/酒吧的名字时,这些问题突然浮出水面。研究学派关于村庄所代表的事物和对其相关性的解释的二分法,以及不断变化的状态是我们构思的起点。空间的肌理和体量被设计成一种可供参考的体验,让人想起印度村庄的聚落。





遮荫的聚集空间从较大的休息区中被半隔离出来,不受直接视线的(BIM)影响。各种行走路线的可能性,给人一种定居的亲密感——这里的常客能找到很少被新访客踏及的,属于自己的路线。

精心调整的植物种类和墙壁形式给人一种不真实的的乡村定居印象。经过各种尝试制成的赤陶土灰泥,以给空间带来温暖和自然饱和度。而暴露在外的铁板混凝土环刺穿了这些墙壁,露出了一些缝隙。这种植物是在当地精心培育的,以确保它们能够存活下来。





这座城市有着繁荣的黄铜手工艺品产业,因此被称为Pital Nagri(“黄铜之城”)。不同大小的黄铜器皿被纳入装饰,以呼应当地的贸易。室内吊灯是定制的,使用了木柱与雕刻,从天花板悬挂下来。中庭地板由印度当地发现的粗糙黑色石材碎块拼成,目的是为今天居住在城市中的印度人设计一个彰显过去村庄记忆的空间。










项目图纸

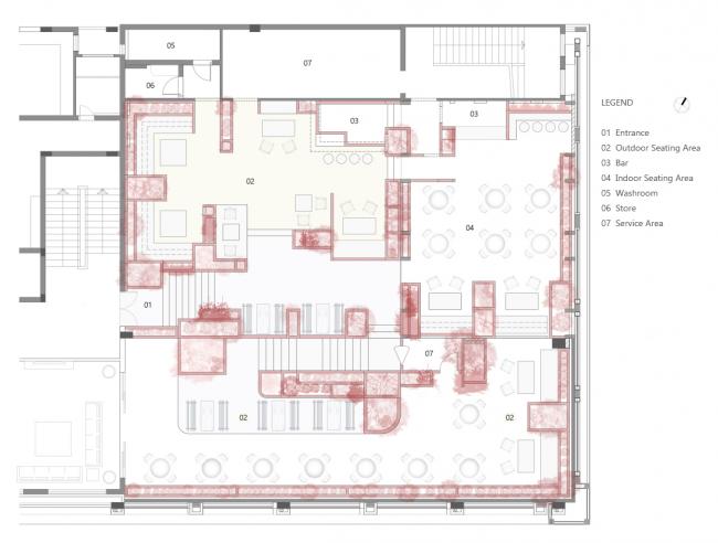
▲ 平面图

▲剖透视图

▲剖透视图

▲鸟瞰图

▲轴测图
项目信息
设计方:Portal 92
地址:Moradabad, Uttar Pradesh,印度
类别:咖啡馆
主创建筑师:Aanchal Sawhney, Sagar Goyal
设计团队:Aanchal Sawhney, Sagar Goyal, Praneet Singh, Varsha Rath, Astha Verma
建筑面积:600.0 m2
项目年份:2019
摄影师:Niveditaa Gupta
厂家:Trimble, Adobe, Autodesk, Hybec, Amit marbles, VITRA
客户:Prateek Ahuja

BIM建筑网





评论前必须登录!
注册