设计位于云南省西部的瑞丽市——中缅国界线接壤区域,其西北、西南、东南三面与缅甸山水相连,村寨相望,独特的地理区位,让这座偏远的城市同时拥有两个国家的民族文化特色,成为中国通向东南亚、南亚最为活跃的内陆口岸。横断山脉穿截而过,湿润的南亚热带季风气候给这个地方带来了丰沛的雨水和茂盛的森林资源,这片土地因此而辽阔,带点大自然的神秘色彩,发人探索,也就引申出此次项目的设计理念:秘境——如置身深水洞穴,去探索山水之奥秘,使身心有如焕然一新的感受。它是每一位光顾美容会所客人的精神诉求,也是会所改善客人精神面貌的宗旨所在。

▲ 隧道视角
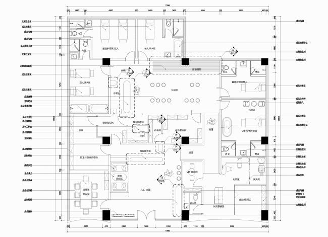
业主希望在有限空间实现多功能复合以满足顾客的需求。因此如何在300m²的原始空间内组织高效的流线并且合理安排空间布局,又能在满足功能空间面积需求的前提下打造足够的公共空间,是这个项目设计的最大挑战。
设计师选取采用枝状空间布局,仅用一个“T”字形的过道作为交通过渡空间,最大程度地缩短交通流线,减少交通空间的占用面积,释放空间,从而为大厅接待、等候、休闲等公共功能提供更为充裕的面积条件,在各个功能区块形成集中式开敞空间,整体空间组织秩序井然。

▲ 设计平面图
结合“秘境”的设计理念,我们利用T型的交通空间打造了一个宛如幻境的隧道,客人在通过通道中的穿行实现不同功能区块转换,使之成为接待、等候、休闲三大功能区的连接体。

▲ 员工穿过隧道

▲ 隧道视角
客人由入口至大堂接待区,而后穿过蓝色的通道开启她们的美丽旅程——依次先穿过通道在等候区,进行肤质等等的检测和美容问题的咨询,而后穿越一次通道进入休闲区,护肤理疗休憩功能一应俱全,客人能在这里舒适地享受护理服务、交谈、茶座等,宽敞的休闲区还为沙龙、讲座的公共行为提供了可能性。三处空间私密性递增,通道则是不同功能与空间画面间的转场。

▲ 大堂视角

▲ 大堂隧道入口

▲ 隧道视角

▲ 隧道视角

▲ 隧道走进休闲区

▲ 休闲区隧道入口

▲ 休闲区视角

▲ SPA护理间

▲ 享受护理的客人
空间选材上,整体运用白色木饰面、乳胶漆等作为空间基调,仿古铜拉丝不锈钢、水晶板、浅灰原木等作为点缀。“T”形通道则采用弧形拱顶,并在墙、顶、地三面上都统一使用蓝色的水晶亚克力板来打造“深水冰窟”的沉浸式体验,使得空间充满视觉张力。二者不论在色彩还是形式上都形成鲜明对比,从而突出强调了“秘境”通道的独特冲击力。

▲ 大堂视角


(BIM建筑)
▲ 隧道视角
作为“秘境”的延伸,加强对山水之境的渲染,设计师在休闲区采用了大量的波浪形雕塑,它们有的从天花板上垂挂而下,有的矗立在地面上,层层叠叠,而每一层的线形又富于柔和的起伏变化,极具层次感。它们是山的意象又是水的幻化。


▲ 休闲区视角

▲ 隧道通往休闲区
项目旨在解决最大化功能空间使用面积,保证服务型建筑空间高品质的需求,采用流线更为简明高效,空间层次更为清晰,功能组织更为合理的枝状空间布局模式,创造性地利用了一个“T”字形的过道,连接三个功能分区,主要地来营造秘境空间。

▲ 隧道分别通往大堂和休闲区
行至此间,恍如身处深水密穴,很好地丰富了客人的空间体验感。它巧妙地减少了交通空间的占用面积,从而能留出更多的空间给公共活动,以提升空间使用的舒适度,尽管在色彩与材质上过道空间与其他空间形成了鲜明对比,但通过波浪形的雕塑对这种山水氛围的渲染,使整个空间成为一个整体。

▲ 隧道视角
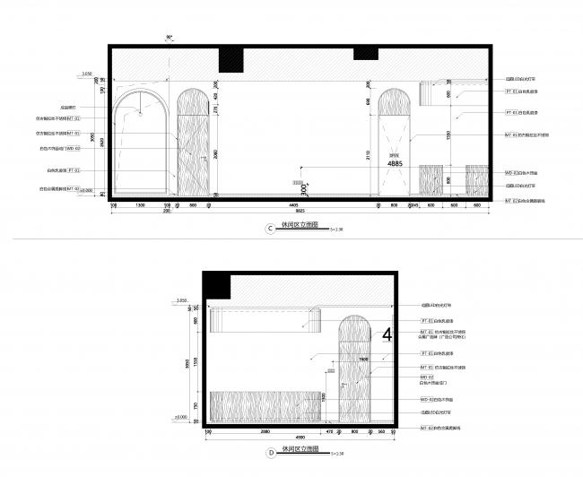
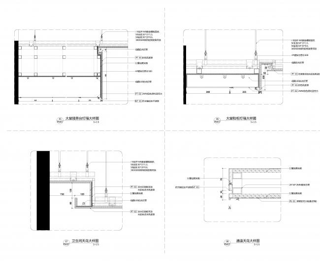
项目图纸

▲ 大堂立面施工图

▲ 隧道分析图

▲ 休闲区立面施工图

▲ 细部大样图1

▲ 细部大样图2
项目信息
项目名称:国界线上的美容会(BIM培训)所
设计公司:平介设计
设计公司网站:www.parallect-design.com
联络邮箱:[email protected]
公司所在地:苏州,中国
项目完成年份:2019
建筑面积:300m2
项目地址:中国云南省德宏州瑞丽市弄莫路149-8栋-101号
主创建筑师: 黄迪
主创建筑师邮箱: [email protected]
设计团队: 杨楠,王乙童,张世杰,陈雪琦
委托方:羽辰美容会所
摄影师:王一翔

BIM建筑网





评论前必须登录!
注册