
©NAARO
由隈研吾建筑事务所在土耳其设计的(BIM学习)大型艺术博物馆现已向公众开放。由隈研吾建筑事务所设计的“Odunpazari现代博物馆”(OMM),是土耳其西北部大学城eskişehir的地标性建筑。这座建筑看起来像一系列木头堆叠起来,与周围的街景及该街区作为木材交易市场的历史相呼应。这所占地4500平方米的艺术博物馆收藏了1000件现当代艺术作品。

©NAARO
“设计OMM的想法是利用建筑来建立人与(BIM设计)艺术之间的联系,”隈研吾解释道”这是隈研吾建筑事务所和项目合作伙伴Yuki Ikeguchi的理念。“我们深受Odunpazar的历史、文化、人和街道景观的启发。我们希望这座建筑能在多个层面上产生共鸣。我们希望博物馆能给eskişehir注入新的活力,成为这座城市的中心和吸引人的聚集点。

©batuhan keskiner
博物馆分为三层,一层是相对大的展览空间,与周围城市景观的节奏和比例相呼应,上层是较小的空间,用于展示小规模的艺术作品。建筑中央的中庭在引入充足的自然光线的同时,建立了不同楼层的联系。建筑在视觉上呈现的最大亮点包括,迄今为止最大的由竹艺术家Tanabe Chikuunsai IV打造的装置,以及两件由棉花糖激光盛宴制作的数字艺术作品。

©batuhan keskiner

© NAARO

©kayhan kaygusuz

© NAARO

© NAARO
“今天的开幕式标志着每一位参与者的富有远见的过程的巅峰时刻,”创立OMM的商人和艺术收藏家埃罗尔·塔班卡补充道,“我们很高兴在这里向社会展示这座独特的建筑,收藏品,以及在我的家乡eskişehir向来自世界各地的游客们进行我们激动人心的开幕式演讲。”

© NAARO

© NAARO

▲ Tanabe Chikuunsai IV打造的竹装置©kemal seçkin

▲ 《沉睡的女孩》作者:汉斯•欧普•德•比克© kayhan kaygusuz

▲ “动物眼中”的棉花糖激光盛宴
项目图纸

▲ 总平面图

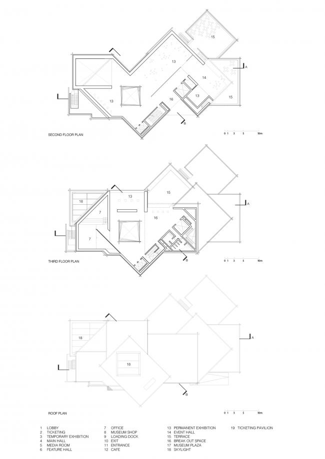
▲ 平面图

▲ 平面图

▲ 剖面图

▲ 剖面图

▲ 立面图

▲ 轴测分析图(流线)

▲ 轴侧分析图(方向)
项目信息
名称:OMM(奥登巴扎里现代艺术博物馆)
客户:Polimeks Holdings,Inc.
设计建筑师:隈研吾建筑事务所(KKAA)
团队:Yuki Ikeguchi;主管合伙人,Yasemin Sahiner
项目建筑师,Man Wai Yiu,Anteo Taro Sanada
结构工程师:SIGMA
立面工程师:Ateknik structural design
机械工程师:TEMA engineering and consulting trade ltd.
总承包商:Polimeks Holdings,Inc.
地点:土耳其,Odunpazari Eskisehir
原则用途:艺术博物馆
结构体系:钢、钢筋混凝土
主要材料:松木、石灰石、橡木地板、石膏
场地面积:16360平方米
总建筑面积:3582平方米

BIM建筑网





评论前必须登录!
注册