
该项目位于在卡斯特伦( Castellón )的老城,在那里,处于非常狭长的地块上的住宅类型是非常常见的。为了实现这个新的项目,设计团队对一个老旧的家庭住宅进行了彻底的拆除。客户关心的问题之一是在房屋的所有楼层都能达到良好的自然采光。这样的结果就是在一个大小为 3.80×24 米的场地中,得到了一个由穿孔的立面将地面层、一层、二层和屋顶覆盖的项目。

场地的狭窄和对于房屋楼层数量的要求让我们得出了一个解决方案,那就是自然光从屋顶照射进来,因为只有这一个立面是与外界相连的。这个项目的想法是基于两个庭院和楼梯上方的天光,这个天光穿过了屋子的三个楼层,让所有空间都沐浴在自然光线当中。虽然主要的庭院被一个玻璃吊顶覆盖了,它仍然在房子的内部进行了一种外部的处理,以加强与自然光的联系。

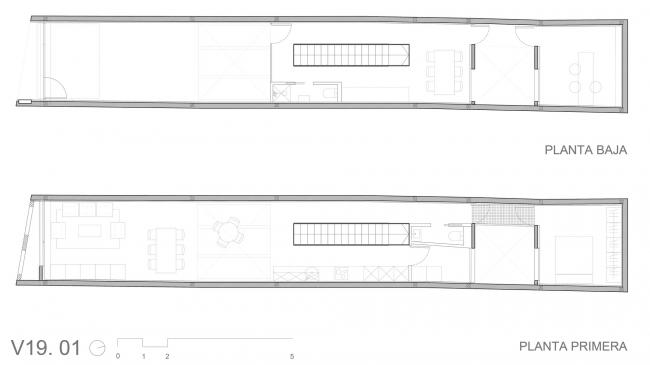
楼梯在平面中起到了主导作用,即使它很窄,它的中央位置仍然让其周围的空间成为使用空间和交通空间。设计团队决定用微型穿孔钢来覆盖这个楼梯,创造透明感,并获得整个房屋的宽度的视觉效果。地面层是专用通道和一个车库。在一层,楼梯与后院提供了自然光线。




一层被用作为日常区域,客厅、餐厅和厨房是通过一个带玻璃地板的有顶盖的露台连接,创造出一个有着气候化外观的空间。二层注定是被用作为卧室的。房子内部连续可见的天光让狭窄的空间看起来没有那么压抑。感谢中庭与天窗的设计,让我们得到了正确的照明和通风,以确保舒适性。



(BIM教程)
(BIM工程师)
该项目中最后一个需要强调的概念是它的主立面。这是唯一一个面对公共街道的立面,通过类似皮肤一样的网状结构来解决,向卡斯特伦( Castellón )省的陶瓷传统致敬。有了它,我们设法将房屋的所有楼层都整合在一起,在内部提供私密性并保护了朝南的房间,参与到房屋的光线游戏当中来。

项目图纸

▲ 平面图

▲平面图

▲立面图

▲剖面图
项目信息
建筑事务所:Viraje arquitectura
地址:Castellón de la Plana,西班牙
类别:独立住宅
面积:257.16 m2
项目年份:2018
摄影师:Germán Cabo

BIM建筑网





评论前必须登录!
注册