“尼岔”在土家语中意为“你好”,这家以土家族美食为特色的餐厅是彦文建筑工作室(Atelier A)的最新项目,设计风格自然质朴,装饰融入民族传统艺术元素。

餐厅所处地点特殊,位于北京前门大栅栏区琉璃厂东街和杨梅竹斜街交接的窄小转角处,老称一尺大街,容易被行人忽略。设计师利用原民宅墙体的红砖,使其在周遭灰色的民国时期建筑群中让人眼前一亮,却又不显突兀。

红砖大量用于该建筑的立面、内墙和地板。为了最大程度还原原始建筑的风貌,保留了大部分的老砖墙,并根据功能需要做少量新砌。这种砖质地优、颜色正,在北京已很难寻觅,设计师特地赴上海找到一批颜色质地相近的红砖,是从老上海建筑上拆除回收的。新砌的砖没有刻意做旧,而是与原砖之间留了一条工艺缝,沿袭了Atelier A一贯坦诚不矫饰的风格。




外立面的红砖为新砌砖,做了镂空拼花效果,以缓和阳光直射,到了晚上,室内灯光隐隐透出,又与白天形成不一样的情调。另外,入口的钢制隔断向内退了一米,与繁忙的街道留出一段过渡空间,让店内客人无需直接面对来往行人,同时方便顾客等位。

餐厅的钢结构材料使用热轧钢板,其氧化成的灰黑色自然淳厚。内墙保留红砖,在上部墙体至天花楼板区域覆暖灰色抹泥,以掩盖电线走线的痕迹,并增加空间亮度。



室内主要装饰语言由线条构成,墙面凿出的自然线条,与穿插于空间中的灯轨曲线和四周点缀的球泡灯形成点、线、面、体的呼应。并且,墙上的装饰画也是由设计师根据土家族服装头饰特点用抽象线条亲笔绘作的人物肖像。


另外,设计师根据不同空间的颜色,请当地民间艺术家制作了土家族特有的织锦——西兰卡普,装饰墙面。

二楼根据建筑原始结构分割成大小两个包间和一个公共就餐区,在装饰上运用绿色瓷砖和红色陶砖分别给两个包间赋予各自装饰主题。


露台地面同样用红砖铺装,与女儿墙保持一致,墙上的球泡灯与室内线条主题呼应。顾客坐在露台上可瞭望大栅栏,或近看杨梅竹斜街热闹的街景。


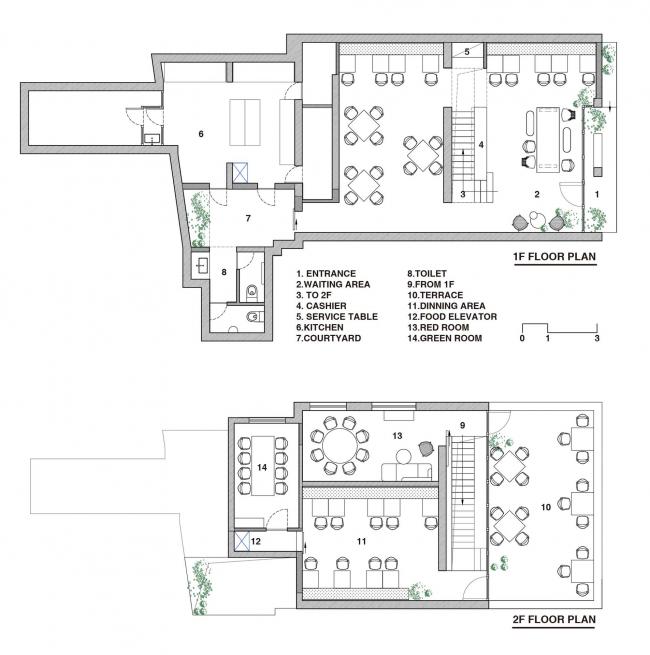
▲ 平面图
项目信息
设计方:上海彦文建筑工作室
地址:杨梅竹斜街,北京,中国
类别:餐厅
项目建筑师:朱彦文
设计团队:田炳珉(Byungmin Jeon)、曾波
建筑面积(BIM教程):235.0(BIM工程师) 平方米
项目年份:2019
摄影师:田炳珉

BIM建筑网





评论前必须登录!
注册