
当我们接受委托,在贵州团结村的大山里建造这个山间餐厅与酒吧时,距离预期的开业时间仅有短短六个月。面对异常紧张的设计施工周期,以及极度有限的预算,我们将设计专注于体量、空间和环境的关系,采用易于获取的材质以及能够短时间施工的钢结构,尽力在有限的时间和资源之内完成这个看似不可能的任务。
项目场地位于高差很大的陡坡上,背靠竹林,面向河谷和群山。因此我们在入口标高设置酒吧,餐厅则沿山坡设置在低处。错落的布局能够弱化建筑体在环境中的体量感,保留邻近的篝火广(BIM学习)场的开阔视野,同时使餐厅及酒吧互不遮挡,室内空间都能够获得良好的景观。两个主体量的外立面采用相似但有区别的设计,深色的立面材质使建筑体量与周围的自然景观相融合。

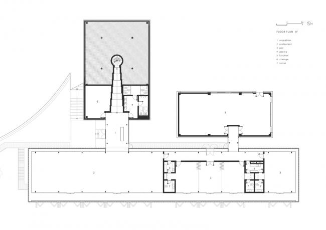
入口厅位于较低标高的餐厅层。餐厅外立面采用玻璃与竖向百叶结合的方式,外部形成简洁的(BIM工作)体量,内部则引入柔和的自然光线,同时保留置身于山景之中的通透感。在面向山谷一侧,设置了通长的半室外走廊;走廊外侧的竖向百叶可调节开启,巍然厚重的山体和山间的云雾尽收眼底,使就餐环境随着天气、季节的变化产生不同的氛围。






酒吧与入口厅由一个旋转楼梯相连。酒吧体量约6m高,尺度与后方竹林相协调,整体结构采用四根钢柱支撑。酒吧采用双层立面,在玻璃隔断之外保留连廊空间,最外层采用可开启百叶门扇,在需要时可向景观面敞开,与外部的广场、露台相连通,将室内的休闲空间向室外延伸。

▲ 剖面图





在项目的建造过程中,当地村民加入施工队成为乡村的建设者,开业之后村民又成为这里的运营者。山间餐厅与酒吧作为扶贫项目的一环,在极短的时间内成为当地农业旅游经济中的重要角色,在满足接待游客功能的同时,也逐渐改变着当地村民的生活。

▲ 总平面图

▲ 一层平面图

▲ 二层平面图
项目信息
设计事务所:休耕建筑
地址:大发天渠旅游景区,贵州,中国
类别:餐饮建筑
主创建筑师:蔡玉盈, 沈洪良, 陈宣儒
业主:贵州大发旅游发展有限公司
合作地方设计院:贵阳建筑勘察设计有限公司
建筑面积:1150.0 平方米
项目年份:2018
摄影师:Laurian Ghinitoiu
厂家:DAaZ 幕友家具, 飞利浦灯具

BIM建筑网





评论前必须登录!
注册