“全国诗人半在湘”,湖(BIM建筑)湘文化所具有的最鲜明的特征即是其内涵的“诗性”。双溪书院则以其独特的山水人居的方式——依山取势,临溪而居,分合布局,错落有序——来重新诠释这一诗性。在这里,似乎建筑设计中所有物理空间的构想都应当被赋予某种情境:游山、访古、寻幽、高卧、倚竹、观鱼、濯足、鼓琴、品茶、焚香,这些诗意的片段都自然的再现,并又被自然而然的重新置入当代人文精神与生活之中,展现出新的“诗性”。正如海德格尔所倡导的:“正是诗意首先使人进入大地,使人属于大地,并因此使人进入居住。”在此地,诗意成为最自然的生活,也成为禅境与超然的场景。
这一诗意的诉求使建筑设计在一开始就被赋予了一种明确的画面感。一方面,如何让建筑真正的融入环境,从而加强这种场景感而不会破坏它,成为前期“规划”的一条基本准则。说是规划,实则更像一种随地形变化的自然的“安排”——几条枝杈状的11-14米宽的溪谷向不同的方向蜿蜒,建筑就被契入山谷之中,只呈现出谷口的一个立面。于是,双溪书院的七个单体建筑,除了接待大堂(也做餐厅)和茶室两个公共功能的建筑外,都被分别隐藏在四条张开的山谷内,互不相望,各自以各自独特的视角存在,这种关系有些像传统山水画中的散点透视,每个局部自成一体,又能够“拼贴”成一幅完整的画面。

▲ 双溪书院鸟瞰图汇总
另一方面,在建筑的风格样式上,双溪书院的建筑是运用现代的建筑材料和结构技术来体现地域传统建筑意向的尝试。从内天井的结构布局,到木构构架与高耸的白墙,连续的灰瓦坡顶,到石、木、瓦等材料肌理,这些建筑设计的形象生成既来源于当地的传统民居建筑,同时也是对更广义的中国南方民居的建筑符号的片段提取和抽象提炼。在建造上,除了常规的混凝土框架作为基础结构,还使用了大量的竹钢,铝板金属屋面,和一部分GRC(玻璃纤维加强混凝土)材料,这些材料的组合也对施工工艺提出了新的要求。在风格上,双溪书院的七个单体建筑,总体有相似的元素,但又因山势而样貌迥异,各有特点。

▲ 关系示意图
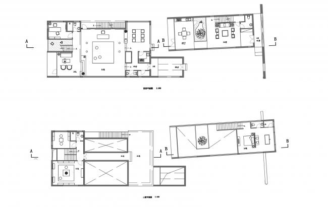
接待堂
山谷的场地限定了人的视线,这使人在游览建筑时只能从特定的角度开(BIM工作)始。在这些特定视角形成的“画面”中,近景可能是几棵树或一丛竹林,远景则是向两侧蜿蜒升高的山脊,这使建筑自然成为画面中的中间层次,也使其立面的平面形态超越了体量本身,变的更加重要。
接待堂的设计,顶部是一条向下弧的屋檐线,立面是被概括的竖向的线条。尽管传统建筑的典型的灰瓦的大坡屋顶被取消了,但檐口以下由层层的椽子向立柱传力的基本结构意向还能够表达出和传统结构的一种关系。其他侧立面则是正立面的直接复制,最终形成一个围绕“天井”的正方形布局。总体形态上,这个“回”字形的结构是启发自传统平江地区的民居内天井的布局形态的。接待堂向四周翘起的屋檐是对周边天际线的最好呼应,也为室内带来更好的光线和更通透的观景效果。
西侧连接接待大堂的部分,是一个几乎完全契入山体的部分,主要布置了厨房、餐厅包间、小展厅等辅助功能。一个巨大的单坡屋顶顺山势倾斜,与接待大堂的屋顶形成叠落的关系。为了达到更轻薄的形体效果,建筑主体采用竹钢搭建,竖向的立柱每根都为承重住,从而达到均匀受力的效果。“柱”与“梁”的连接部分采用简单的交错堆叠起来进行构造的方法,使其在形式上产生出类似斗拱结构的效果。而屋顶则采用GRC预制板,直接“平落”在竹钢框架上;屋顶面层采用金属瓦,而非传统瓦,这些做法都极大的减轻了屋顶重量,使整体结构轻量化,更传达出一种具有现代气质的南方建筑的秀美。



▲ 接待堂

▲ 接待堂结构分析

▲ 接待堂1

▲ 接待堂2
茶室
茶室东侧立面在布局上与接待堂东侧立面形成一条轴线,以求得在主要视点透视线上的连贯性。茶室的总面积为109平方米,是一个“L”形的半围合院落,一端契入山体,另一端延伸并挑出到池塘上空。转折处的屋角约8米高,指向东南向的天空。这个“屋角”成为三条山谷会合处的空场的标识物,也成为和接待堂呼应的轴线上的制高点。屋面连续向两端陡降,形成一个狭长的内斜屋顶。立面通高的玻璃幕墙不仅带来了更宽阔的视觉体验,还给室内提供了充足的自然光线。



▲ 茶室

▲ 茶室

▲ 茶室
书院与先生房
书院与先生房位于西侧的谷内,隐藏在一片茂密的竹林之后。随坡而上,一侧是小溪,一侧是茂密的竹林。路尽头是书院的入口大门,位于白色院墙左侧,这和右侧越过白墙挑出的休息室共同形成均衡的构图关系。进入大门,U形的庭院才清晰可见:庭院被台地分成两级,连接两个单体,错落的空间关系形成了更丰富的景观体验。建筑看似由两栋独立的单体构成,但通过相同的结构和材质,使两者之间形成一种整体的关联。书院建筑的屋顶从两侧向内倾斜,并由远及近逐层错落,形成与周边山势轮廓相呼应的轮廓,应对与周边的景观关系。


▲ 书院和先生房

▲ 书院平面图
山谷客房
总体上看,这一 86米长的狭长形体随山谷曲折,只在谷口保留了一个完整而突出的立面,依山势而下的溪水在建筑周围汇聚成水面,将入口的立面映射其中,形成安详而静谧的画面。
这一建筑单体总面积约1100平方米,建筑形态完全契合原有的山谷地形,呈折线形随地势逐级抬高,通过高低错落的坡屋顶围合构成具有南方乡村特征的巷道空间。巷道两侧的客房屋顶成V字形态,从总体的形态上和接待堂,书院建筑是一致的。单坡屋顶相对于客房而言,为室内提供了更好的观山视野。
一层在结构上成为底部架空的附属空间,主要设置为多功能的休闲大厅,咖啡、水吧,以及一个小型会议室,并且一层三分之二的面积是埋入山体之中的。一层在交通组织上和二层是分别设置的,而所有的客房均位于二层,需通过主入口的景观楼梯单独进入二层小巷,这样是二层的客房区相对安静独立。18间客房即沿着小巷分布两侧。

▲ 山谷客房

▲ 山谷客房

▲ 客房平面图
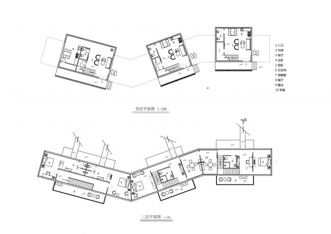
三折别墅
这栋建筑在形态上与山谷客房有着相似之处,即都是迎着谷口的端头立面作为建筑的主立面,而主要的体量则隐匿在谷中。建筑随着山谷地形走势呈现折线关系布置,一层有三个独立的单体“盒子”,主要为公共活动空间,穿插其间的是几处半户外的“亭子”空间。这些空间由一条边廊连接。二层为卧室等私密空间,成线状排布成一条通长的“廊桥”结构,连续的竹钢格栅立面增加了“廊桥”在结构视觉上的整体性。在实际的功能划分上,多数使用状态下二层的卧室等私密功能是独立分割的;只在必要时可以通过二层的走道相连接。屋面三角的折面关系使整体形态更相似与传统坡屋顶的意向。

▲ 三折别墅

▲ 三折别墅

▲ 三折别墅
四分别墅
双溪书院的所有建筑单体都几乎全部采用V字形内倾的屋顶形式,这本身也源自平江传统民居院落的剖面关系。这种剖面关系在四分别墅中反映的更为直接。内倾屋面的四个体块成为四个独立的休息空间,体块与外围墙界定的区域即为巷道和公共区域,这种类似聚落的形式也使整个建筑更适应场地,并避免体量过大带来的突兀感。四个独立的功能体块与一个通透的玻璃盒子相互套嵌,产生了居者在室内外不断交互的空间体验;同时,通过围墙的隔挡形成独立的六个小院子,在室内,透过围墙上局部的取景窗洞,使庭院中的人造景观与户外的自然景观形成一个重叠对景的关系。
通透的玻璃盒子将南侧的自然光引入室内,使建筑形象变得更加柔和。退出室内,从更远的视角看,建筑的整体形象中翘起的屋檐与两侧逐渐升高的山脊线完全是为了达到一种呼应——尽管因此而削弱了正立面的视角应有的体量感。

▲ 九号别墅

▲ 九号别墅

▲ 四分 平面
当建筑契入自然时,一切所谓专业的设计或阐释都应当顺从于自然的某种“力”或“势”。自然的包裹使建筑必然由一种对抗转到顺从,或者更恰当的说是一种融入或共生。就如中国山水画中房子总是若影若现于山水之间,这种画面中的诗意似乎拉近了我们和古人的距离。古人可以卧游,通过这种心历去体悟自然山水中的哲学。今天我们仍然努力在自然与建筑之间创造某种情景,某种我们能通过建筑与自然对话的情景。或许这种情景就隐藏在双溪书院的环境之中吧,游走在这幽邃的山谷之中,小溪之畔,很容易使人想起南宋平江文人邹輗的诗句:花阴不正月将西,欲到溪边步懒移。坐对前山无一语,此心惟有古人知。

▲ 双溪书院鸟瞰图
项目信息
项目地点:湖南省平江县白茅村
开发团队:自在小隐酒店(湖南)有限公司
项目总顾问:王受之
项目策划:崔冬晖
建筑设计:北京多向界建筑设计
主持设计:李亮
设计团队:张必昌黄畅 徐林
建筑面积:3800平方米
建造时间:2014年6月-2018年3月
建筑摄影:金伟琦

BIM建筑网





评论前必须登录!
注册